Onder bod: Keucheniuslaan 21, 1181 XX Amstelveen
€ 650.000,- k.k.
| Type object | Woonhuis, eengezinswoning, hoekwoning |
|---|---|
| Woonoppervlakte | 78 m² |
| Status | Onder bod |
| Perceeloppervlakte | 104 m² |
|---|---|
| Aanvaarding | In overleg |
Beschrijving
English text below..
Uniek in Amstelveen: Hier vindt u een nieuw gebouwd hoekhuis, met 3 slaapkamers, twee badkamers, eigen parkeerplaats en tuin, op 3 minuten lopen van het Stadshart en het busstation. Het huis heeft woonkamer en keuken op de begane grond en twee slaapkamers, toilet, badkamer en wasmachine ruimte op de eerste en tweede verdieping. Tevens is een studio gebouwd aan het einde van de tuin. De bestemming van dit huis is "wonen en bedrijf aan huis"; dus de studio met eigen opgang en toegang tot de tuin van het huis, heeft een eigen badkamer en is uitermate geschikt voor een bedrijf aan huis, zoals een coach, beauty salon, kapper of een ander bedrijf. Maar ook een mantelzorger of een volwassen kind heeft hier een uitstekende eigen plek! Het huis heeft een eigen parkeerplaats aan de voorzijde op eigen terrein, met een laadpaal voor een elektrische auto.
De woonkamer heeft ramen van plafond tot bijna de vloer en men kan met de raambekleding spelen om elke vorm van privacy of licht te bereiken. Deze zijn overal op maat gemaakt en blijven achter. De vele grote ramen hebben uitzicht op de altijd groenblijvende planten in de zij tuin. Aan de achterzijde vindt u een luxe open keuken voorzien van alle gemakken en ingebouwde apparatuur en toegang tot de zonnige tuin met terras. De tuin heeft een achterom, maar ook een toegangsdeur naar de studio, welke ook een eigen opgang heeft naar de straatzijde.
Op de eerste verdieping van het huis is een ruime kamer, nu in gebruik als werk- en logeerkamer. In de hal is een grote garderobe kast met schuifdeuren en een ruimte met wasmachine en droger. Ook de badkamer heeft grote ramen en een inloopdouche en wastafel met meubel. Er is een separaat toilet in de hal.
De master bed room is op de bovenste verdieping geplaatst en heeft vrij uitzicht naar de voor- en achtertuin
Alles is ingericht op comfort en er is een eigen oprit voor uw auto gecreëerd, met een laadpaal.
Kortom een unieke kans ...Kom kijken en u heeft uw (t)huis gevonden!
Bijzonderheden:
- 3 slaapkamers
- 2 badkamers
- taxatierapport 2025 aanwezig
- opgeleverd in 2019
- parkeren op eigen terrein
- fietsenberging in de tuin
- vlakbij het winkelcentrum "het Binnenhof" in het Stadshart
- Busstation ook om de hoek
- snelweg met uitval naar A9 - A2 - A12 - A10 op 3 minuten rijden
- scholen vlakbij
- geschikt voor bedrijf aan huis
- geschikt voor mantelzorg of als kangaroe-huis.
- Broersepark en Amsterdamse Bos op loop afstand.
Deze informatie is door ons met de nodige zorgvuldigheid samengesteld. Onzerzijds wordt echter geen enkele aansprakelijkheid aanvaard voor enige onvolledigheid, onjuistheid of anderszins, dan wel de gevolgen daarvan. Alle opgegeven maten en oppervlakten zijn indicatief. Geïnteresseerde heeft zijn/haar eigen onderzoek plicht naar alle zaken die voor hem of haar van belang zijn. Met betrekking tot deze woning is de makelaar adviseur van verkoper. Wij adviseren u een deskundige makelaar in te schakelen die u begeleidt bij het aankoopproces.
Stunning Corner House in Amstelveen - Your Dream Home Awaits…
Discover this exceptional newly built corner house in Amstelveen, boasting 3 bedrooms, two bathrooms, private parking, and a garden. Situated just a 3-minute walk from the vibrant Stadshart and bus station, this property offers unparalleled convenience and comfort.
Living Space: The ground floor features a spacious living room and kitchen, while the upper floors house two bedrooms, a toilet, a bathroom, and a laundry room.
Gorgeous Interiors: Floor-to-ceiling windows in the living room allow for ample natural light and stunning views of lush greenery in the side garden. Tailor-made window coverings provide privacy and ambiance. The luxurious open kitchen comes fully equipped with modern amenities and leads to the sunny terrace in the garden.
Multi-Functional Studio: Additionally, a studio in the garden is perfect for a home business setup or a private retreat. With its own entrance and bathroom, it's ideal for a variety of uses such as a coaching space, beauty salon, or even for accommodating a caregiver or adult child.
Parking: The property includes a dedicated parking space in the front garden, with an electric car charging point right at the front, ensuring convenient and eco-friendly transportation options.
This house offers a unique opportunity to own a versatile property that perfectly blends residential and business functionalities. With a prime location and modern amenities, this corner house in Amstelveen is more than just a home - it's a lifestyle. Book your viewing now and make this exceptional property yours!
Unique Selling Points: this property stands out with its:
- 3 bedrooms and 2 bathrooms
- 2019 build with a 2025 tax report available
- Close proximity to Stadshart's "het Binnenhof" shopping center
- Easy access to major highways (A9, A2, A12, A10) within a quick 3-minute drive
- Nearby schools and public transport links
- Ideal for a home-based business or a multi-generational living setup
- Access to green spaces like Broersepark and Amsterdamse Bos within walking distance
- Own parking facilities
- Bike storage in the garden
Don't let this dream house slip away – schedule your viewing today! Don't Miss Out!
This information has been compiled by us with the necessary care. On our part, however, no liability is accepted for any incompleteness, inaccuracy or otherwise, or the consequences thereof. All specified sizes and surfaces are indicative. An interested party has his own duty to investigate all matters that are important to him or her. With regard to this property the agent is advisor to owner. We advise you to engage an expert agent who will guide you through the process
Uniek in Amstelveen: Hier vindt u een nieuw gebouwd hoekhuis, met 3 slaapkamers, twee badkamers, eigen parkeerplaats en tuin, op 3 minuten lopen van het Stadshart en het busstation. Het huis heeft woonkamer en keuken op de begane grond en twee slaapkamers, toilet, badkamer en wasmachine ruimte op de eerste en tweede verdieping. Tevens is een studio gebouwd aan het einde van de tuin. De bestemming van dit huis is "wonen en bedrijf aan huis"; dus de studio met eigen opgang en toegang tot de tuin van het huis, heeft een eigen badkamer en is uitermate geschikt voor een bedrijf aan huis, zoals een coach, beauty salon, kapper of een ander bedrijf. Maar ook een mantelzorger of een volwassen kind heeft hier een uitstekende eigen plek! Het huis heeft een eigen parkeerplaats aan de voorzijde op eigen terrein, met een laadpaal voor een elektrische auto.
De woonkamer heeft ramen van plafond tot bijna de vloer en men kan met de raambekleding spelen om elke vorm van privacy of licht te bereiken. Deze zijn overal op maat gemaakt en blijven achter. De vele grote ramen hebben uitzicht op de altijd groenblijvende planten in de zij tuin. Aan de achterzijde vindt u een luxe open keuken voorzien van alle gemakken en ingebouwde apparatuur en toegang tot de zonnige tuin met terras. De tuin heeft een achterom, maar ook een toegangsdeur naar de studio, welke ook een eigen opgang heeft naar de straatzijde.
Op de eerste verdieping van het huis is een ruime kamer, nu in gebruik als werk- en logeerkamer. In de hal is een grote garderobe kast met schuifdeuren en een ruimte met wasmachine en droger. Ook de badkamer heeft grote ramen en een inloopdouche en wastafel met meubel. Er is een separaat toilet in de hal.
De master bed room is op de bovenste verdieping geplaatst en heeft vrij uitzicht naar de voor- en achtertuin
Alles is ingericht op comfort en er is een eigen oprit voor uw auto gecreëerd, met een laadpaal.
Kortom een unieke kans ...Kom kijken en u heeft uw (t)huis gevonden!
Bijzonderheden:
- 3 slaapkamers
- 2 badkamers
- taxatierapport 2025 aanwezig
- opgeleverd in 2019
- parkeren op eigen terrein
- fietsenberging in de tuin
- vlakbij het winkelcentrum "het Binnenhof" in het Stadshart
- Busstation ook om de hoek
- snelweg met uitval naar A9 - A2 - A12 - A10 op 3 minuten rijden
- scholen vlakbij
- geschikt voor bedrijf aan huis
- geschikt voor mantelzorg of als kangaroe-huis.
- Broersepark en Amsterdamse Bos op loop afstand.
Deze informatie is door ons met de nodige zorgvuldigheid samengesteld. Onzerzijds wordt echter geen enkele aansprakelijkheid aanvaard voor enige onvolledigheid, onjuistheid of anderszins, dan wel de gevolgen daarvan. Alle opgegeven maten en oppervlakten zijn indicatief. Geïnteresseerde heeft zijn/haar eigen onderzoek plicht naar alle zaken die voor hem of haar van belang zijn. Met betrekking tot deze woning is de makelaar adviseur van verkoper. Wij adviseren u een deskundige makelaar in te schakelen die u begeleidt bij het aankoopproces.
Stunning Corner House in Amstelveen - Your Dream Home Awaits…
Discover this exceptional newly built corner house in Amstelveen, boasting 3 bedrooms, two bathrooms, private parking, and a garden. Situated just a 3-minute walk from the vibrant Stadshart and bus station, this property offers unparalleled convenience and comfort.
Living Space: The ground floor features a spacious living room and kitchen, while the upper floors house two bedrooms, a toilet, a bathroom, and a laundry room.
Gorgeous Interiors: Floor-to-ceiling windows in the living room allow for ample natural light and stunning views of lush greenery in the side garden. Tailor-made window coverings provide privacy and ambiance. The luxurious open kitchen comes fully equipped with modern amenities and leads to the sunny terrace in the garden.
Multi-Functional Studio: Additionally, a studio in the garden is perfect for a home business setup or a private retreat. With its own entrance and bathroom, it's ideal for a variety of uses such as a coaching space, beauty salon, or even for accommodating a caregiver or adult child.
Parking: The property includes a dedicated parking space in the front garden, with an electric car charging point right at the front, ensuring convenient and eco-friendly transportation options.
This house offers a unique opportunity to own a versatile property that perfectly blends residential and business functionalities. With a prime location and modern amenities, this corner house in Amstelveen is more than just a home - it's a lifestyle. Book your viewing now and make this exceptional property yours!
Unique Selling Points: this property stands out with its:
- 3 bedrooms and 2 bathrooms
- 2019 build with a 2025 tax report available
- Close proximity to Stadshart's "het Binnenhof" shopping center
- Easy access to major highways (A9, A2, A12, A10) within a quick 3-minute drive
- Nearby schools and public transport links
- Ideal for a home-based business or a multi-generational living setup
- Access to green spaces like Broersepark and Amsterdamse Bos within walking distance
- Own parking facilities
- Bike storage in the garden
Don't let this dream house slip away – schedule your viewing today! Don't Miss Out!
This information has been compiled by us with the necessary care. On our part, however, no liability is accepted for any incompleteness, inaccuracy or otherwise, or the consequences thereof. All specified sizes and surfaces are indicative. An interested party has his own duty to investigate all matters that are important to him or her. With regard to this property the agent is advisor to owner. We advise you to engage an expert agent who will guide you through the process
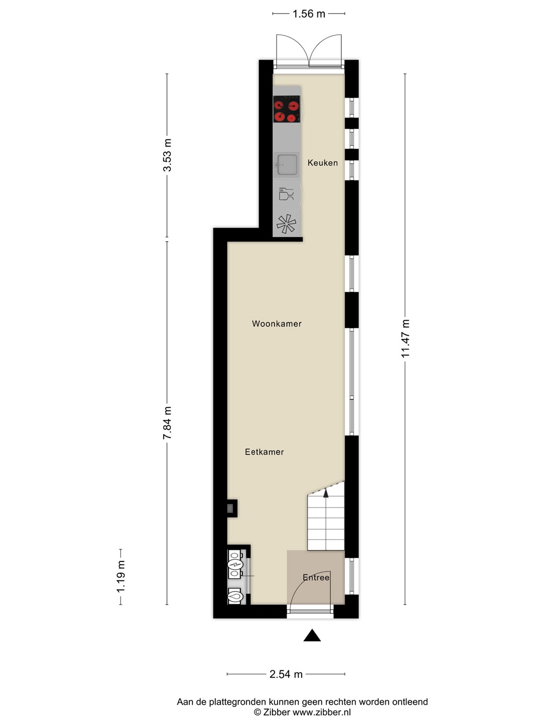
Indeling
Uniek in Amstelveen: Hier vindt u een nieuw gebouwd hoekhuis, met 3 slaapkamers, twee badkamers, eigen parkeerplaats en tuin, op 3 minuten lopen van het Stadshart en het busstation. Het huis heeft woonkamer en keuken op de begane grond en twee slaapkamers, toilet, badkamer en wasmachine ruimte op de eerste en tweede verdieping. Tevens is een studio gebouwd aan het einde van de tuin. De bestemming van dit huis is "wonen en bedrijf aan huis"; dus de studio met eigen opgang en toegang tot de tuin van het huis, heeft een eigen badkamer en is uitermate geschikt voor een bedrijf aan huis, zoals een coach, beauty salon, kapper of een ander bedrijf. Maar ook een mantelzorger of een volwassen kind heeft hier een uitstekende eigen plek! Het huis heeft een eigen parkeerplaats aan de voorzijde op eigen terrein, met een laadpaal voor een elektrische auto.
De woonkamer heeft ramen van plafond tot bijna de vloer en men kan met de raambekleding spelen om elke vorm van privacy of licht te bereiken. Deze zijn overal op maat gemaakt en blijven achter. De vele grote ramen hebben uitzicht op de altijd groenblijvende planten in de zij tuin. Aan de achterzijde vindt u een luxe open keuken voorzien van alle gemakken en ingebouwde apparatuur en toegang tot de zonnige tuin met terras. De tuin heeft een achterom, maar ook een toegangsdeur naar de studio, welke ook een eigen opgang heeft naar de straatzijde.
Op de eerste verdieping van het huis is een ruime kamer, nu in gebruik als werk- en logeerkamer. In de hal is een grote garderobe kast met schuifdeuren en een ruimte met wasmachine en droger. Ook de badkamer heeft grote ramen en een inloopdouche en wastafel met meubel. Er is een separaat toilet in de hal.
De master bed room is op de bovenste verdieping geplaatst en heeft vrij uitzicht naar de voor- en achtertuin
Alles is ingericht op comfort en er is een eigen oprit voor uw auto gecreëerd, met een laadpaal.
Kortom een unieke kans ...Kom kijken en u heeft uw (t)huis gevonden!
Bijzonderheden:
- 3 slaapkamers
- 2 badkamers
- taxatierapport 2025 aanwezig
- opgeleverd in 2019
- parkeren op eigen terrein
- fietsenberging in de tuin
- vlakbij het winkelcentrum "het Binnenhof" in het Stadshart
- Busstation ook om de hoek
- snelweg met uitval naar A9 - A2 - A12 - A10 op 3 minuten rijden
- scholen vlakbij
- geschikt voor bedrijf aan huis
- geschikt voor mantelzorg of als kangaroe-huis.
- Broersepark en Amsterdamse Bos op loop afstand.
Deze informatie is door ons met de nodige zorgvuldigheid samengesteld. Onzerzijds wordt echter geen enkele aansprakelijkheid aanvaard voor enige onvolledigheid, onjuistheid of anderszins, dan wel de gevolgen daarvan. Alle opgegeven maten en oppervlakten zijn indicatief.
De woonkamer heeft ramen van plafond tot bijna de vloer en men kan met de raambekleding spelen om elke vorm van privacy of licht te bereiken. Deze zijn overal op maat gemaakt en blijven achter. De vele grote ramen hebben uitzicht op de altijd groenblijvende planten in de zij tuin. Aan de achterzijde vindt u een luxe open keuken voorzien van alle gemakken en ingebouwde apparatuur en toegang tot de zonnige tuin met terras. De tuin heeft een achterom, maar ook een toegangsdeur naar de studio, welke ook een eigen opgang heeft naar de straatzijde.
Op de eerste verdieping van het huis is een ruime kamer, nu in gebruik als werk- en logeerkamer. In de hal is een grote garderobe kast met schuifdeuren en een ruimte met wasmachine en droger. Ook de badkamer heeft grote ramen en een inloopdouche en wastafel met meubel. Er is een separaat toilet in de hal.
De master bed room is op de bovenste verdieping geplaatst en heeft vrij uitzicht naar de voor- en achtertuin
Alles is ingericht op comfort en er is een eigen oprit voor uw auto gecreëerd, met een laadpaal.
Kortom een unieke kans ...Kom kijken en u heeft uw (t)huis gevonden!
Bijzonderheden:
- 3 slaapkamers
- 2 badkamers
- taxatierapport 2025 aanwezig
- opgeleverd in 2019
- parkeren op eigen terrein
- fietsenberging in de tuin
- vlakbij het winkelcentrum "het Binnenhof" in het Stadshart
- Busstation ook om de hoek
- snelweg met uitval naar A9 - A2 - A12 - A10 op 3 minuten rijden
- scholen vlakbij
- geschikt voor bedrijf aan huis
- geschikt voor mantelzorg of als kangaroe-huis.
- Broersepark en Amsterdamse Bos op loop afstand.
Deze informatie is door ons met de nodige zorgvuldigheid samengesteld. Onzerzijds wordt echter geen enkele aansprakelijkheid aanvaard voor enige onvolledigheid, onjuistheid of anderszins, dan wel de gevolgen daarvan. Alle opgegeven maten en oppervlakten zijn indicatief.
Kenmerken
| Overdracht | |
|---|---|
| Referentienummer | 00839 |
| Vraagprijs | € 650.000,- k.k. |
| Elektra | € 74,- |
| Gas | € 100,- |
| Water | € 40,- |
| Inrichting | Ja |
| Inrichting | Gestoffeerd |
| Status | Onder bod |
| Aanvaarding | In overleg |
| Laatste wijziging | Maandag 26 mei 2025 |
| Bouw | |
|---|---|
| Type object | Woonhuis, eengezinswoning, hoekwoning |
| Soort bouw | Bestaande bouw |
| Bouwperiode | 2019 |
| Dakbedekking | Dakpannen |
| Type dak | Samengesteld |
| Isolatievormen | Dakisolatie Dubbel glas HR-glas Vloerisolatie |
| Oppervlaktes en inhoud | |
|---|---|
| Perceeloppervlakte | 104 m² |
| Woonoppervlakte | 78 m² |
| Woonkameroppervlakte | 18 m² |
| Keukenoppervlakte | 7,7 m² |
| Inhoud | 274 m³ |
| Oppervlakte externe bergruimte | 2,5 m² |
| Oppervlakte gebouwgebonden buitenruimte | 30 m² |
| Indeling | |
|---|---|
| Aantal bouwlagen | 3 |
| Aantal kamers | 4 (waarvan 3 slaapkamers) |
| Aantal badkamers | 2 (en 1 apart toilet) |
| Locatie | |
|---|---|
| Ligging | Aan rustige weg Dichtbij openbaar vervoer Nabij school Vrij uitzicht |
| Tuin | |
|---|---|
| Type | Voortuin |
| Oriëntering | Zuiden |
| Heeft een achterom | Ja |
| Staat | Prachtig aangelegd |
| Tuin 2 - Type | Achtertuin |
| Tuin 2 - Hoofdtuin | Ja |
| Tuin 2 - Oriëntering | Zuid-west |
| Tuin 2 - Heeft een achterom | Ja |
| Tuin 2 - Staat | Prachtig aangelegd |
| Energieverbruik | |
|---|---|
| Energielabel | B |
| CV ketel | |
|---|---|
| Warmtebron | Gas |
| Bouwjaar | 2019 |
| Uitrusting | |
|---|---|
| Aantal parkeerplaatsen | 1 |
| Warm water | CV-ketel |
| Verwarmingssysteem | Centrale verwarming Vloerverwarming (gedeeltelijk) |
| Badkamervoorzieningen Badkamer 1 | Inloopdouche Toilet Wastafel Wastafelmeubel |
| Badkamervoorzieningen Badkamer 2 | Dubbele wastafel Inloopdouche Vloerverwarming Wastafelmeubel |
| Parkeergelegenheid | Parkeerplaats |
| Tuin aanwezig | Ja |
| Kadastrale gegevens | |
|---|---|
| Kadastrale aanduiding | Amstelveen H 18072 |
| Perceeloppervlakte | 32 m² |
| Omvang | Geheel perceel |
| Eigendomsituatie | Eigen grond |
| Kadastrale aanduiding | Amstelveen H 17524 |
| Perceeloppervlakte | 32 m² |
| Omvang | Geheel perceel |
| Eigendomsituatie | Eigen grond |
| Kadastrale aanduiding | Amstelveen H 18373 |
| Perceeloppervlakte | 3 m² |
| Omvang | Geheel perceel |
| Eigendomsituatie | Eigen grond |
| Kadastrale aanduiding | Amstelveen H 18371 |
| Perceeloppervlakte | 37 m² |
| Omvang | Geheel perceel |
| Eigendomsituatie | Eigen grond |