Verkocht onder voorbehoud: Langstraat 1, 4288 JK Uitwijk
€ 375.000,- k.k.
| Type object | Woonhuis, eengezinswoning, twee onder een kap woning |
|---|---|
| Woonoppervlakte | 89 m² |
| Status | Verkocht onder voorbehoud |
| Perceeloppervlakte | 313 m² |
|---|---|
| Aanvaarding | In overleg |
Beschrijving
Aan de Langstraat in het gemoedelijke dorpje Uitwijk ligt deze fijne tweekapper! Hier is het aangenaam wonen op een mooie locatie waar je nog kunt genieten van rust en ruimte.
Deze woning staat garant voor jarenlang woonplezier. Het biedt alles wat je nodig hebt. Een lichte woonkamer, 3 slaapkamers en een tuin waar je heerlijk tot rust kunt komen.
Blikvanger in dit pittoreske dorpje is het historische kerkje met zijn dikke toren. Op korte loopafstand van de woning ligt het riviertje de Alm. Langs de Alm lopen wandel- en fietspaden, een uniek stukje natuur voor ontspanning en recreatie. Voorzieningen vind je in het nabijgelegen Rijswijk of Almkerk. Ook ligt op fietsafstand het leuke vestingstadje Woudrichem. Hoewel Uitwijk rustig en landelijk is, ligt het gunstig. Door de goede wegverbindingen sta je zo in Gorinchem, Breda, Utrecht of ’s-Hertogenbosch.
Het bouwjaar van deze woning is 1957 en het heeft een inhoud van 350 m³ en een woonoppervlak van 89m². De kaveloppervlakte is 313 m².
Kortom: een leuke woning in een rustige, groene omgeving, klaar om jouw startpunt te worden voor een nieuw hoofdstuk! Bel meteen om een afspraak te maken voor een bezichtiging.
Indeling
Begane grond
De woning beschikt aan de voorzijde over een voortuin met oprit, zodat je je auto altijd voor de deur kunt parkeren. Binnenkomst in de hal met inbouwkast, meterkast en trapopgang naar de eerste verdieping. Vanuit de hal kom je in de keuken welke netjes is ingericht en voorzien van diverse apparatuur. De keuken staat in open verbinding met de lichte woonkamer welke een gezellige zithoek heeft met fijn uitzicht op de tuin en aan de voorzijde bevindt zich de eethoek. Achter de keuken is het toilet en een praktische bijkeuken met witgoedaansluiting en vanuit hier bereik je een overdekt terras – ideaal om het hele jaar door van buiten te genieten.
Eerste verdieping
Via de trap in de hal bereik je de overloop op de eerste verdieping welke toegang geeft tot 3 slaapkamers, een badkamer voorzien van een douche en wastafel en een separaat toilet.
Zowel de gehele beneden- als bovenverdieping is afgewerkt met een laminaatvloer.
Zolder
Via een vlizotrap in de slaapkamer aan de voorzijde bereik je de ruime bergzolder.
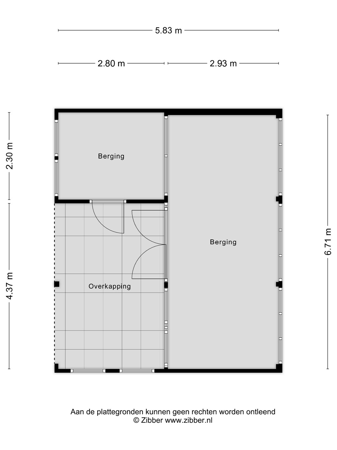
Berging
Achter in de tuin bevindt zich een praktische berging met overkapping. Het heeft voldoende ruimte voor fietsen en een werkbank en biedt daarnaast een gezellige, beschutte plek om te zitten of te werken aan hobby’s.
Tuin
Bij lekker wonen hoort ook lekker buiten zijn op zijn tijd. De achtertuin is netjes en onderhoudsvriendelijk en heeft een heerlijke jacuzzi waardoor je optimaal kunt genieten van het buitenleven. Of je nu wilt ontspannen in het warme water of van een heerlijke barbecue, het kan hier allemaal!
De kenmerken:
Bouwjaar : 1957
Verwarming : C.V.-ketel van Vailant; bouwjaar 2016
Woonoppervlakte : 89 m2
Perceeloppervlakte : 313 m2
Inhoud : 350m³
Bouwaard : traditioneel in spouw
Isolatie : isolatieglas
Vloeren : beton
Ramen, deuren en kozijnen : houten kozijnen, deuren en ramen.
Energielabel : D
Elektra : 6 groepen 16A en 2 aardlekschakelaar
Aanvaarding en oplevering : in overleg
Vigerende Bestemmingsplan : woonbestemming
Aanvaarding en oplevering in overleg.
Volgens het vigerende bestemmingsplan heeft het object een woonbestemming.
Van de koper wordt een waarborgsom of bankgarantie gevraagd van 10% van de koopsom, binnen 5 weken na het ondertekenen van de koopovereenkomst.
De door Pullen Makelaardij o.g. verstrekte informatie dient uitsluitend te worden gezien als een uitnodiging tot nadere informatie, bezichtiging of het uitbrengen van een bod. Wijzigingen in uitvoering voorbehouden. Aan onvolkomenheden in de vermelde gegevens en schaal kunnen geen rechten worden ontleend.
Deze woning staat garant voor jarenlang woonplezier. Het biedt alles wat je nodig hebt. Een lichte woonkamer, 3 slaapkamers en een tuin waar je heerlijk tot rust kunt komen.
Blikvanger in dit pittoreske dorpje is het historische kerkje met zijn dikke toren. Op korte loopafstand van de woning ligt het riviertje de Alm. Langs de Alm lopen wandel- en fietspaden, een uniek stukje natuur voor ontspanning en recreatie. Voorzieningen vind je in het nabijgelegen Rijswijk of Almkerk. Ook ligt op fietsafstand het leuke vestingstadje Woudrichem. Hoewel Uitwijk rustig en landelijk is, ligt het gunstig. Door de goede wegverbindingen sta je zo in Gorinchem, Breda, Utrecht of ’s-Hertogenbosch.
Het bouwjaar van deze woning is 1957 en het heeft een inhoud van 350 m³ en een woonoppervlak van 89m². De kaveloppervlakte is 313 m².
Kortom: een leuke woning in een rustige, groene omgeving, klaar om jouw startpunt te worden voor een nieuw hoofdstuk! Bel meteen om een afspraak te maken voor een bezichtiging.
Indeling
Begane grond
De woning beschikt aan de voorzijde over een voortuin met oprit, zodat je je auto altijd voor de deur kunt parkeren. Binnenkomst in de hal met inbouwkast, meterkast en trapopgang naar de eerste verdieping. Vanuit de hal kom je in de keuken welke netjes is ingericht en voorzien van diverse apparatuur. De keuken staat in open verbinding met de lichte woonkamer welke een gezellige zithoek heeft met fijn uitzicht op de tuin en aan de voorzijde bevindt zich de eethoek. Achter de keuken is het toilet en een praktische bijkeuken met witgoedaansluiting en vanuit hier bereik je een overdekt terras – ideaal om het hele jaar door van buiten te genieten.
Eerste verdieping
Via de trap in de hal bereik je de overloop op de eerste verdieping welke toegang geeft tot 3 slaapkamers, een badkamer voorzien van een douche en wastafel en een separaat toilet.
Zowel de gehele beneden- als bovenverdieping is afgewerkt met een laminaatvloer.
Zolder
Via een vlizotrap in de slaapkamer aan de voorzijde bereik je de ruime bergzolder.
Berging
Achter in de tuin bevindt zich een praktische berging met overkapping. Het heeft voldoende ruimte voor fietsen en een werkbank en biedt daarnaast een gezellige, beschutte plek om te zitten of te werken aan hobby’s.
Tuin
Bij lekker wonen hoort ook lekker buiten zijn op zijn tijd. De achtertuin is netjes en onderhoudsvriendelijk en heeft een heerlijke jacuzzi waardoor je optimaal kunt genieten van het buitenleven. Of je nu wilt ontspannen in het warme water of van een heerlijke barbecue, het kan hier allemaal!
De kenmerken:
Bouwjaar : 1957
Verwarming : C.V.-ketel van Vailant; bouwjaar 2016
Woonoppervlakte : 89 m2
Perceeloppervlakte : 313 m2
Inhoud : 350m³
Bouwaard : traditioneel in spouw
Isolatie : isolatieglas
Vloeren : beton
Ramen, deuren en kozijnen : houten kozijnen, deuren en ramen.
Energielabel : D
Elektra : 6 groepen 16A en 2 aardlekschakelaar
Aanvaarding en oplevering : in overleg
Vigerende Bestemmingsplan : woonbestemming
Aanvaarding en oplevering in overleg.
Volgens het vigerende bestemmingsplan heeft het object een woonbestemming.
Van de koper wordt een waarborgsom of bankgarantie gevraagd van 10% van de koopsom, binnen 5 weken na het ondertekenen van de koopovereenkomst.
De door Pullen Makelaardij o.g. verstrekte informatie dient uitsluitend te worden gezien als een uitnodiging tot nadere informatie, bezichtiging of het uitbrengen van een bod. Wijzigingen in uitvoering voorbehouden. Aan onvolkomenheden in de vermelde gegevens en schaal kunnen geen rechten worden ontleend.
Kenmerken
| Overdracht | |
|---|---|
| Referentienummer | VGP3000488 |
| Vraagprijs | € 375.000,- k.k. |
| Inrichting | Niet gestoffeerd |
| Inrichting | Niet gemeubileerd |
| Status | Verkocht onder voorbehoud |
| Aanvaarding | In overleg |
| Laatste wijziging | Donderdag 5 februari 2026 |
| Bouw | |
|---|---|
| Type object | Woonhuis, eengezinswoning, twee onder een kap woning |
| Soort bouw | Bestaande bouw |
| Bouwperiode | 1957 |
| Dakbedekking | Dakpannen |
| Type dak | Zadeldak |
| Isolatievormen | Dakisolatie Dubbel glas Muurisolatie Spouwmuren |
| Oppervlaktes en inhoud | |
|---|---|
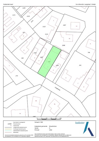
| Perceeloppervlakte | 313 m² |
| Woonoppervlakte | 89 m² |
| Inhoud | 315 m³ |
| Oppervlakte externe bergruimte | 42 m² |
| Oppervlakte gebouwgebonden buitenruimte | 19 m² |
| Indeling | |
|---|---|
| Aantal bouwlagen | 3 |
| Aantal kamers | 4 (waarvan 3 slaapkamers) |
| Aantal badkamers | 1 (en 2 aparte toiletten) |
| Locatie | |
|---|---|
| Ligging | In centrum |
| Tuin | |
|---|---|
| Type | Achtertuin |
| Hoofdtuin | Ja |
| Oriëntering | Noord west |
| Heeft een achterom | Ja |
| Staat | Normaal |
| Energieverbruik | |
|---|---|
| Energielabel | D |
| CV ketel | |
|---|---|
| CV ketel | Vaillant |
| Warmtebron | Gas |
| Bouwjaar | 2016 |
| Combiketel | Ja |
| Eigendom | Eigendom |
| Uitrusting | |
|---|---|
| Aantal parkeerplaatsen | 2 |
| Warm water | CV-ketel |
| Verwarmingssysteem | Centrale verwarming |
| Ventilatie methode | Mechanische ventilatie |
| Keukenvoorzieningen | Inbouwapparatuur |
| Badkamervoorzieningen | Douche Wastafel |
| Glasvezelaansluiting aanwezig | Ja |
| Tuin aanwezig | Ja |
| Heeft schuur/berging | Ja |
| Heeft ventilatie | Ja |
| Kadastrale gegevens | |
|---|---|
| Kadastrale aanduiding | Woudrichem G 1462 |
| Perceeloppervlakte | 313 m² |
| Omvang | Geheel perceel |
| Eigendomsituatie | Eigen grond |