Te koop: Gorecht-Oost 7D, 9603 AB Hoogezand
Prijs op aanvraag
| Type object | Appartement, portiekflat |
|---|---|
| Aanvaarding | In overleg |
| Woonoppervlakte | 102,7 m² |
|---|
Beschrijving
Levensloopbestendig 4-kamer appartement
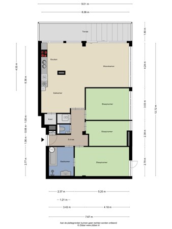
Levensloopbestendig, driekamer appartement met balkon, ruim 100 m² gebruiksoppervlakte wonen en inpandige (fietsen)berging. Het appartement is voorzien van airconditioning, zonwering en screens. Gelegen op de tweede etage en op loopafstand van het overdekte winkelcentrum "de Hoge Meren", het medisch centrum en een bushalte.
Indeling
o Begane grond.
Portiek met video-intercom, gemeenschappelijke hal met liftinstallatie en trappenhuis,
o Derde verdieping:
In 2015 geheel gemoderniseerd appartement met hal/garderobe met meterkast, toilet met fonteintje, toegang tot drie slaapkamers, ± 12,7 m², ± 9,8 en ± 14,5 m², en badkamer met een oppervlakte van ± 6,6 m².
De slaapkamer van ± 14,5 m2 met nooduitgang naar het trappenhuis.
De woonkamer met eetgedeelte en open keuken, totaal ± 43 m², heeft een vaste provisiekast en een schuifpui naar het balkon op het zuiden van ± 15 m².
De open keuken is voorzien van hedendaagse, gangbare inbouwapparatuur uit 2015 zoals een vierpits inductie kookplaat, magnetron, koelkast met vriesgedeelte, keukenboiler en wasemkap.
In de inpandige berging bevindt zich een wasmachine-aansluiting en aansluiting voor een wasdroger. Badkamer met douche, whirlpool ligbad en wastafel.
De kunststof kozijnen hebben HR-isolerende beglazing.
o Berging.
Eigen berging voor fietsen onder het complex aanwezig, ± 1,89 m x ± 4,49 m, totaal ± 8,5 m2.
Bijzonderheden
o Portiekflat/appartement, bouwjaar 1975,
o Het complex is in 2024 voorzien van een nieuw bitumen dak met 43 zonnepanelen,
o Lift aanwezig,
o Toegankelijk voor mensen met een beperking en senioren,
o Voldoende partkeergelegenheid bij het complex aanwezig,
o Uitstekende ligging bij voorzieningen en op korte afstand van uitvalswegen,
o Appartement met airconditioning, zonwering, screens, kunststof ramen, HR-isolerende beglazing, elektrische (huur)boiler en centraal geregelde blokverwarming,
o Actieve VvE, VvE Zirkoonflat,
o Bijdrage VvE € 225,- per maand,
o Meerjaren Onderhoudsplan aanwezig,
o Energielabel: het energielabel is aangevraagd, verwacht wordt energielabel B,
o Aanvaarding in overleg.
Bestemming. Het appartement heeft een woonbestemming.
Levensloopbestendig, driekamer appartement met balkon, ruim 100 m² gebruiksoppervlakte wonen en inpandige (fietsen)berging. Het appartement is voorzien van airconditioning, zonwering en screens. Gelegen op de tweede etage en op loopafstand van het overdekte winkelcentrum "de Hoge Meren", het medisch centrum en een bushalte.
Indeling
o Begane grond.
Portiek met video-intercom, gemeenschappelijke hal met liftinstallatie en trappenhuis,
o Derde verdieping:
In 2015 geheel gemoderniseerd appartement met hal/garderobe met meterkast, toilet met fonteintje, toegang tot drie slaapkamers, ± 12,7 m², ± 9,8 en ± 14,5 m², en badkamer met een oppervlakte van ± 6,6 m².
De slaapkamer van ± 14,5 m2 met nooduitgang naar het trappenhuis.
De woonkamer met eetgedeelte en open keuken, totaal ± 43 m², heeft een vaste provisiekast en een schuifpui naar het balkon op het zuiden van ± 15 m².
De open keuken is voorzien van hedendaagse, gangbare inbouwapparatuur uit 2015 zoals een vierpits inductie kookplaat, magnetron, koelkast met vriesgedeelte, keukenboiler en wasemkap.
In de inpandige berging bevindt zich een wasmachine-aansluiting en aansluiting voor een wasdroger. Badkamer met douche, whirlpool ligbad en wastafel.
De kunststof kozijnen hebben HR-isolerende beglazing.
o Berging.
Eigen berging voor fietsen onder het complex aanwezig, ± 1,89 m x ± 4,49 m, totaal ± 8,5 m2.
Bijzonderheden
o Portiekflat/appartement, bouwjaar 1975,
o Het complex is in 2024 voorzien van een nieuw bitumen dak met 43 zonnepanelen,
o Lift aanwezig,
o Toegankelijk voor mensen met een beperking en senioren,
o Voldoende partkeergelegenheid bij het complex aanwezig,
o Uitstekende ligging bij voorzieningen en op korte afstand van uitvalswegen,
o Appartement met airconditioning, zonwering, screens, kunststof ramen, HR-isolerende beglazing, elektrische (huur)boiler en centraal geregelde blokverwarming,
o Actieve VvE, VvE Zirkoonflat,
o Bijdrage VvE € 225,- per maand,
o Meerjaren Onderhoudsplan aanwezig,
o Energielabel: het energielabel is aangevraagd, verwacht wordt energielabel B,
o Aanvaarding in overleg.
Bestemming. Het appartement heeft een woonbestemming.
Kenmerken
| Overdracht | |
|---|---|
| Referentienummer | 00196 |
| Prijs | Prijs op aanvraag |
| Inrichting | Optioneel |
| Aanvaarding | In overleg |
| Laatste wijziging | Vrijdag 31 oktober 2025 |
| Bouw | |
|---|---|
| Type object | Appartement, portiekflat |
| Woonlaag | 3e woonlaag |
| Soort bouw | Bestaande bouw |
| Toegankelijkheid | Mindervaliden Senioren |
| Bouwperiode | 1975 |
| Dakbedekking | Bitumen |
| Type dak | Platdak |
| Isolatievormen | Dubbel glas HR-glas Volledig geïsoleerd |
| Oppervlaktes en inhoud | |
|---|---|
| Woonoppervlakte | 102,7 m² |
| Inhoud | 339 m³ |
| Oppervlakte externe bergruimte | 8,5 m² |
| Oppervlakte gebouwgebonden buitenruimte | 15,9 m² |
| Balkonoppervlakte | 16,2 m² |
| Indeling | |
|---|---|
| Aantal bouwlagen | 1 |
| Aantal kamers | 4 (waarvan 3 slaapkamers) |
| Aantal badkamers | 1 |
| Locatie | |
|---|---|
| Ligging | Dichtbij openbaar vervoer In centrum Nabij school Nabij snelweg Nabij winkelcentrum |
| Energieverbruik | |
|---|---|
| Energielabel | B |
| CV ketel | |
|---|---|
| CV ketel | Via de VvE |
| Warmtebron | Gas |
| Uitrusting | |
|---|---|
| Warm water | Elektrische boiler Zonnecollectoren |
| Verwarmingssysteem | Airconditioning Centrale verwarming Zonnecollectoren |
| Ventilatie methode | Mechanische ventilatie |
| Badkamervoorzieningen | Douche Ligbad Wastafel Wastafelmeubel |
| Heeft airco | Ja |
| Heeft een balkon | Ja |
| Heeft een lift | Ja |
| Glasvezelaansluiting aanwezig | Ja |
| Telefoonaansluiting aanwezig | Ja |
| Beschikt over een internetverbinding | Ja |
| Heeft rolluiken | Ja |
| Heeft schuur/berging | Ja |
| Heeft zonnepanelen | Ja |
| Heeft ventilatie | Ja |
| Vereniging van Eigenaren | |
|---|---|
| Ingeschreven bij de KvK | Ja |
| Jaarlijkse vergadering | Ja |
| Periodieke bijdrage | Ja |
| Reservefonds | Ja |
| Meer jaren onderhoudsplan | Ja |
| Onderhoudsverwachting | Ja |
| Opstal verzekering | Ja |
| Kadastrale gegevens | |
|---|---|
| Kadastrale aanduiding | Hoogezand-Sappemeer B 2890 |
| Omvang | Appartementsrecht of complex |
| Eigendomsituatie | Eigen grond |