Te huur: Kievit 12B537, 5111 HD Baarle-Nassau
€ 1.150,- /mnd
| Type object | Woonhuis, bungalow, vrijstaande woning |
|---|---|
| Perceeloppervlakte | 272 m² |
| Aanvaarding | In overleg |
| Recreatie object | |
| Woonoppervlakte | 37,9 m² |
| Status | Nieuw in verhuur |
Beschrijving
Let op: U kunt zich niet inschrijven op dit adres.
In het groene en rustige Parc de Kievit in Baarle-Nassau, op de grens met België, vindt u deze moderne recreatiewoning (bouwjaar 2018) met stijlvolle afwerking, twee slaapkamers en een badkamer. De woning is instapklaar en voorzien van een voortuin, zijtuin en achtertuin. Geniet van comfort en rust op een unieke locatie.
In het groene en rustige Parc de Kievit in Baarle-Nassau, op de grens met België, vindt u deze moderne recreatiewoning (bouwjaar 2018) met stijlvolle afwerking, twee slaapkamers en een badkamer. De woning is instapklaar en voorzien van een voortuin, zijtuin en achtertuin. Geniet van comfort en rust op een unieke locatie.
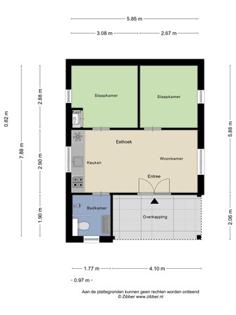
Indeling
De woning straalt karakter uit dankzij de hoge plafonds en de houten afwerking. De openslaande deuren naar het terras zorgen voor een natuurlijke overgang tussen binnen en buiten, waardoor het buitenleven altijd dichtbij is.
De open keuken is van alle gemakken voorzien, met hoogwaardige inbouwapparatuur zoals een combimagnetron, vaatwasser en kookplaat met afzuigkap. De eettafel vormt het kloppend hart van de woning – een plek voor lange gesprekken, goede maaltijden en fijne momenten met familie en vrienden.
Op de begane grond bevinden zich twee comfortabele slaapkamers en een badkamer met douche, wastafelmeubel en toilet.
De open keuken is van alle gemakken voorzien, met hoogwaardige inbouwapparatuur zoals een combimagnetron, vaatwasser en kookplaat met afzuigkap. De eettafel vormt het kloppend hart van de woning – een plek voor lange gesprekken, goede maaltijden en fijne momenten met familie en vrienden.
Op de begane grond bevinden zich twee comfortabele slaapkamers en een badkamer met douche, wastafelmeubel en toilet.
Tuin
De openslaande deuren geven toegang tot het zonnige terras en de onderhoudsarme tuin, waar u optimaal kunt genieten van de rust en privacy. Parkeren kan direct bij de woning.
Bijzonderheden
Park De Kievit beschikt over verschillende voorzieningen waar u gebruik van kunt maken. Zo is er een zwembad, een tennisbaan en een brasserie.
- Bouwjaar 2018;
- NEN 2580 meetrapport beschikbaar;
- Recreatiewoning is te bereiken via de 2de inrit van het Parc;
- Gelegen op het Parc de Kievit.
- Bouwjaar 2018;
- NEN 2580 meetrapport beschikbaar;
- Recreatiewoning is te bereiken via de 2de inrit van het Parc;
- Gelegen op het Parc de Kievit.
Kenmerken
| Overdracht | |
|---|---|
| Referentienummer | 00029 |
| Huurprijs | € 1.150,- per maand (incl. servicekosten, incl. gas, incl. water, incl. elektriciteit, gemeubileerd, gestoffeerd, geïndexeerd) |
| Borg | € 1.150,- |
| Servicekosten | € 250,- per maand |
| Inrichting | Ja |
| Inrichting | Gemeubileerd |
| Status | Nieuw in verhuur |
| Aanvaarding | In overleg |
| Bouw | |
|---|---|
| Type object | Woonhuis, bungalow, vrijstaande woning |
| Soort bouw | Bestaande bouw |
| Bouwperiode | 2018 |
| Type dak | Zadeldak |
| Isolatievormen | Volledig geïsoleerd |
| Oppervlaktes en inhoud | |
|---|---|
| Perceeloppervlakte | 272 m² |
| Woonoppervlakte | 37,9 m² |
| Inhoud | 141 m³ |
| Oppervlakte externe bergruimte | 4,1 m² |
| Oppervlakte gebouwgebonden buitenruimte | 8,5 m² |
| Indeling | |
|---|---|
| Aantal bouwlagen | 1 |
| Aantal kamers | 3 (waarvan 2 slaapkamers) |
| Aantal badkamers | 1 |
| Locatie | |
|---|---|
| Ligging | Buiten bebouwde kom In bosrijke omgeving |
| Tuin | |
|---|---|
| Type | Achtertuin |
| Oriëntering | Oosten |
| Staat | Normaal |
| Tuin 2 - Type | Voortuin |
| Tuin 2 - Hoofdtuin | Ja |
| Tuin 2 - Oriëntering | Zuid-west |
| Tuin 2 - Staat | Normaal |
| Tuin 3 - Type | Zijtuin |
| Tuin 3 - Oriëntering | West |
| Tuin 3 - Staat | Normaal |
| CV ketel | |
|---|---|
| Warmtebron | Gas |
| Combiketel | Ja |
| Eigendom | Eigendom |
| Uitrusting | |
|---|---|
| Aantal parkeerplaatsen | 1 |
| Warm water | CV-ketel |
| Verwarmingssysteem | Centrale verwarming |
| Ventilatie methode | Natuurlijke ventilatie |
| Badkamervoorzieningen | Douche Toilet Wastafelmeubel |
| Heeft kabel-tv | Ja |
| Tuin aanwezig | Ja |
| Beschikt over een internetverbinding | Ja |
| Heeft schuur/berging | Ja |
| Kadastrale gegevens | |
|---|---|
| Kadastrale aanduiding | Baarle-Nassau F 1382 |
| Perceeloppervlakte | 272 m² |
| Omvang | Geheel perceel |
| Eigendomsituatie | Erfpacht en opstal |