Te koop: Heltenbosdijk, 6006 RZ Weert
Vraagprijs
| Type object | Losse grond |
|---|
| Status | Nieuw in verkoop |
|---|
Beschrijving
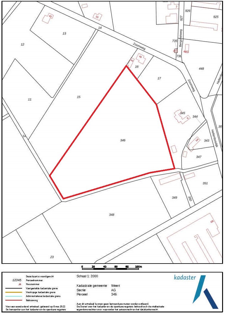
Nabij de Heltenbosdijk in Weert is dit perceel cultuurgrond gelegen met een oppervlakte van ca. 02.70.10 ha. Het perceel is toegankelijk middels een recht van overpad (deze loopt tussen de bijgebouwen van Heltenbosdijk 6a) welke aansluit op de Dijkerpeelweg, een onverharde weg gelegen nabij de Heltenbosdijk. Het perceel is de afgelopen jaren in gebruik geweest als grasland en middels een reguliere pachtovereenkomst verpacht.
De omgeving kenmerkt zich door een agrarisch buitengebied met agrarische gronden en natuur. Het betreft een mooie kans voor een belegger om dit perceel in eigendom te verwerven.
Kadastrale situatie
Gemeente Weert, sectie AG, nummer 346, groot 02.70.10 ha
Bodem en gebruik
De grondsoort betreft zandgrond waardoor er voldoende mogelijkheden zijn om er diverse akkerbouw- en tuinbouwgewassen te telen.
Het perceel is de laatste jaren in gebruik geweest voor de teelt van gras en heeft daarmee de status 'blijvend grasland'.
Bijzonderheden
- Het jachtrecht op het perceel is verhuurd.
- Het perceel wordt verkocht in verpachte staat (reguliere pacht). De pachtovereenkomst en de bijbehorende stukken zijn bij ons kantoor op te vragen.
Bestemmingsplan
De percelen zijn gelegen in het bestemmingsplan 'Buitengebied 2011', vastgesteld door de gemeente Weert en deels onherroepelijk in werking per 26-06-2013.
Op het perceel rusten de bestemmingsvlakken:
- 'Agrarisch'
- 'Waarde - Archeologie hoog'
- 'Waarde - Beekdallandschap'
de functieaanduiding:
- 'specifieke vorm van agrarisch - open gebied/heideontginning'
en de gebiedsaanduiding:
- reconstructiewetzone - extensiveringsgebied'
Aanvaarding
In overleg.
Vraagprijs
€ 5,75 per m² k.k.
Voor meer informatie kunt u contact opnemen met:
Timon Dols (makelaar)
t: 06-51225838
e: tdols@arvalis.nl
Arvalis kantoor Roermond
Steegstraat 5
6041 EA ROERMOND
t: 0475 355700
De omgeving kenmerkt zich door een agrarisch buitengebied met agrarische gronden en natuur. Het betreft een mooie kans voor een belegger om dit perceel in eigendom te verwerven.
Kadastrale situatie
Gemeente Weert, sectie AG, nummer 346, groot 02.70.10 ha
Bodem en gebruik
De grondsoort betreft zandgrond waardoor er voldoende mogelijkheden zijn om er diverse akkerbouw- en tuinbouwgewassen te telen.
Het perceel is de laatste jaren in gebruik geweest voor de teelt van gras en heeft daarmee de status 'blijvend grasland'.
Bijzonderheden
- Het jachtrecht op het perceel is verhuurd.
- Het perceel wordt verkocht in verpachte staat (reguliere pacht). De pachtovereenkomst en de bijbehorende stukken zijn bij ons kantoor op te vragen.
Bestemmingsplan
De percelen zijn gelegen in het bestemmingsplan 'Buitengebied 2011', vastgesteld door de gemeente Weert en deels onherroepelijk in werking per 26-06-2013.
Op het perceel rusten de bestemmingsvlakken:
- 'Agrarisch'
- 'Waarde - Archeologie hoog'
- 'Waarde - Beekdallandschap'
de functieaanduiding:
- 'specifieke vorm van agrarisch - open gebied/heideontginning'
en de gebiedsaanduiding:
- reconstructiewetzone - extensiveringsgebied'
Aanvaarding
In overleg.
Vraagprijs
€ 5,75 per m² k.k.
Voor meer informatie kunt u contact opnemen met:
Timon Dols (makelaar)
t: 06-51225838
e: tdols@arvalis.nl
Arvalis kantoor Roermond
Steegstraat 5
6041 EA ROERMOND
t: 0475 355700
Kenmerken
| Overdracht | |
|---|---|
| Referentienummer | 68059/41130 |
| Vraagprijs | Vraagprijs |
| Status | Nieuw in verkoop |
| Bouw | |
|---|---|
| Type object | Losse grond |
| Soort bouw | Bestaande bouw |