Te koop: Op een prachtige locatie bevindt zich aan het akkerbouwbedrijf met een unieke uitstraling op een perc.opp. van ca. 2 HA en uit te breiden tot 15 HA.
Molendijk 9, 4698 PK Oud-Vossemeer
Prijs op aanvraag
| Type object | Akkerbouwbedrijf |
|---|---|
| Aanvaarding | In overleg |
| Perceeloppervlakte | 150.000 m² |
|---|---|
| Status | Nieuw in verkoop |
Beschrijving
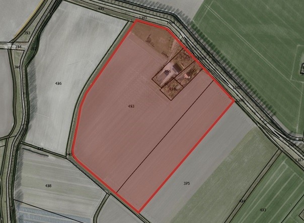
Op een prachtige en karakteristieke historische locatie in het buitengebied bevindt zich het akkerbouwbedrijf “Bagijnhoeve” met een unieke uitstraling op een perc.opp. van 2.00.00 HA en uit te breiden tot een perc.opp. van maximaal 15.00.00 HA.
Indeling
ALGEMEEN:
Het geheel omvat een vrijstaand woonhuis middels een tussenlid verbonden met een wagenschuur (bergruimte / garage), landbouwschuur (garage / werkplaats / opslagruimte), hangar (opslagruimte / werktuigenberging), schapenstal / kippenhok, buiten zwembad en verdere aanhorigheden, ondergrond, erf, royale (sier)tuin, kleine boomgaard met hoogstam fruitbomen, walnoten- en kastanjebomen, mooie oprijlaan met essen en eiken, alsmede landbouwgrond op een perceeloppervlakte van ca. 02.00.00 HA.
Het perceel kan bovendien worden uitgebreid met omliggende landbouwgrond tot een totale perceeloppervlakte van maar liefst maximaal ca. 15.00.00 HA.
Een unieke woon- en werklocatie die landelijk wonen combineert met historische waarde en diverse ontwikkelmogelijkheden.
KOOPOPTIES:
Akkerbouwbedrijf de “Bagijnhoeve” wordt aangeboden middels 2 opties:
Optie A: Een vrijstaand woonhuis middels een tussenlid verbonden met een wagenschuur (bergruimte / garage), landbouwschuur (garage / werkplaats / opslagruimte), hangar (opslagruimte / werktuigenberging), schapenstal / kippenhok, zwembad en verdere aanhorigheden, ondergrond, erf, royale (sier)tuin, kleine boomgaard met hoogstam fruitbomen, walnoten- en kastanjebomen, mooie oprijlaan met essen en eiken, alsmede landbouwgrond op een perceeloppervlakte van maximaal circa 15.00.00 hectaren.
Optie B: Een vrijstaand woonhuis middels een tussenlid verbonden met een wagenschuur (bergruimte / garage), landbouwschuur (garage / werkplaats / opslagruimte), hangar (opslagruimte / werktuigenberging), schapenstal / kippenhok, zwembad en verdere aanhorigheden, ondergrond, erf, royale (sier)tuin, kleine boomgaard met hoogstam fruitbomen, walnoten- en kastanjebomen, mooie oprijlaan met essen en eiken, alsmede landbouwgrond op een perceeloppervlakte van circa 02.00.00 hectaren.
Opmerking: Alleen wanneer Optie B wordt verkocht op een perceeloppervlakte van circa 2.00.00 hectaren, komt de overige landbouwgrond afzonderlijk beschikbaar.
TENNET: tracé Zierikzee- Halsteren:
Zie verder onze verkoopbrochure.
BESTEMMING:
Het object is gelegen in het omgevingsplan / bestemmingsplan “Buitengebied Tholen”, van de gemeente Tholen, vastgesteld door de raad van deze gemeente op 19 december 2013, in werking getreden en onherroepelijk geworden. Het huidige gebruik is toegestaan conform dit bestemmingsplan / omgevingsplan.
Krachtens dit bestemmingsplan / omgevingsplan is de onroerende zaak bestemd als:
Bestemmingsvlakken: Waarde - Archeologie - 3 / Agrarisch
Bouwvlak: circa 01.00.00 ha
Gebiedsaanduidingen: overige zone - karakteristieke of cultuurhistorische waardevolle bebouwing
OMSCHRIJVING:
Woonhuis:
- bjr. 1866.
- de inhoud bedraagt circa 950 m³.
- woonopp. bedraagt circa 208 m².
- goothoogte 3,90 m en nokhoogte 8,70 m.
- opgetrokken in geïsoleerde steense muren van baksteen.
- dak gedekt met steense dakpannen.
- kozijnen van kunststof en hout, voorzien van dubbele beglazing.
- v.v. een cv-installatie en radiatoren.
- vloeren zijn van beton en hout.
- asbest aanwezig: in de woning zijn tussen de steense muur en de betimmering op de begane grond asbestplaten verwerkt.
- isolatie: spouwmuur, vloer en in het verleden zijn de gevels aan de binnenzijde betimmerd. Het plafond op de 1e verdieping is geïsoleerd met glaswoldekens.
De kozijnen zijn voorzien van dubbelglas. Een aantal kozijnen zijn vernieuwd door kunststof kozijnen, deze hebben ook een isolatiewaarde. In de oude
houten kozijnen en stalen kozijnen is dun dubbelglas aangebracht.
Indeling begane grond:
centrale gang met toilet en fonteintje en trapopgang naar de eerste verdieping;
toegang naar kelder (niet altijd volledig droog);
woonkeuken met tegelvloer, openslaande tuindeuren, keukenblok voorzien van spoelbak en inbouwapparatuur, zoals vaatwasser (sept. 2025, Bosch) en inductiekookplaat (2023),
kleine keukenblok met magnetron;
woonkamer (doorzon) met kachel en houten vloer;
slaapkamer met kast;
gang naar badkamer met douche, ligbad, wastafelmeubel met dubbele wastafel en spiegel en aansluiting voor wasmachine en droger;
entree;
slaapkamer met vaste kast en toegang naar de serre / overkapping (2008) en openslaande deuren;
meterkast (volledig gereviseerd in 2022 – 2023);.
Aanbouw:
hal met berging;
gang met vaste kast;
saunaruimte met doucheruimte;
bijkeuken met vaste wastafel (in de bijkeuken is destijds een betonvloer gestort en zijn nieuwe kozijnen geplaatst);
garage met trapopgang naar verdieping (zolderruimte);
garage.
1e Verdieping:
overloop;
4 slaapkamers met vaste kasten;
badkamer met douche, toilet en dubbele wastafel;
bergruimte.
bergruimte.
Zolder:
bereikbaar via vlizotrap, deels beloopbaar.
Bijzonderheden:
De woning is gebouwd in 1866. In de loop der tijd is de woning uitgebreid met een entree en bijkeuken (2008). De serre, inclusief de openslaande tuindeuren, is aangebouwd in 2008. Daarbij zijn de vloeren in de keuken, woonkamer en serre voorzien van vloerverwarming.
Wagenschuur:
- verbonden aan het woonhuis, grootste gedeelte van de schuur is gelijktijdig gebouwd met de woning.
- bjr. 1866 en 1925.
- in 2008 deels gerenoveerd, verstevigd met stalen draagbalk.
- opp. bedraagt ca 80 m², goothoogte 3,50 m, nokhoogte 5,50 m.
- in gebruik als bergruimte / garage, zolder aanwezig.
- fundering van gemetselde steen.
- opgetrokken in steense muren.
- het dak is gedekt met pannen dak en ligt op een houten constructie.
- vloer van ijsselsteen.
- v.v. van een loopdeur, draaideur en elektrische deuren.
- in de wagenschuur is de pompunit en warmtepomp voor het buitenzwembad aanwezig.
Landbouwschuur:
- bjr. 2009.
- opp. bedraagt ca. 300 m², goothoogte 3,50 m, nokhoogte 8 m.
- aan de zijde van de woning: ingericht als garage en werkplaats, gedeeltelijk bezolderd, de zolder is bereikbaar via een vaste houten trap.
- voorzien van een opslagruimte voor aardappelen (300 ton), deze ruimte is drukvast met drukgang. Ventilatie middels bovengrondse luchtkanalen en een halfautomatische besturing van Tolsma.
- het dak is gedekt met geïsoleerde dakpanprofielplaten en ligt op stalen spanten met aluminium roeden.
- gedeeltelijke opgetrokken in geïsoleerde damwandprofielplaten, gedeeltelijk voorzien van gepotdekselde cementplanken. De onderzijde van de gevels bestaat uit betonplint.
- v..v. van 1 elektrische roldeur van 3 m x 3 m, 1 elektrische roldeur van 5 m x 5 m en diverse loopdeuren.
- drinkwater (binnen- en buitenkraan), elektra en krachtstroom voorziening.
- zonnepanelen aanwezig: totaal 56 stuks (10 stuks prive) - 400 kwh per paneel - 18400 kWp totale installatievermogen.
Hangar:
- bjr. 1918.
- in 1965 is een gedeelte dichtgemaakt, in 2009 is de dakbedekking vervangen en het aanwezige asbest gesaneerd. In 2015 is bij het open gedeelte een zo goed als dichte kopgevel gemaakt van gepotdekselde stalen profielplaten.
- opp. bedraagt ca 350 m², goothoogte 4,30 m, nokhoogte 7 m.
- in gebruik voor opslag van werktuigen en kunstmest.
- het dak is gedekt met asbestvrije golfplaten en ligt op ijzeren spanten met ijzeren liggers.
- de wanden zijn opgetrokken in kalkzandsteenblokken. De voorzijde is gedeeltelijk open.
- de hangar is v.v. een onverharde vloer.
- elektra voorziening aanwezig.
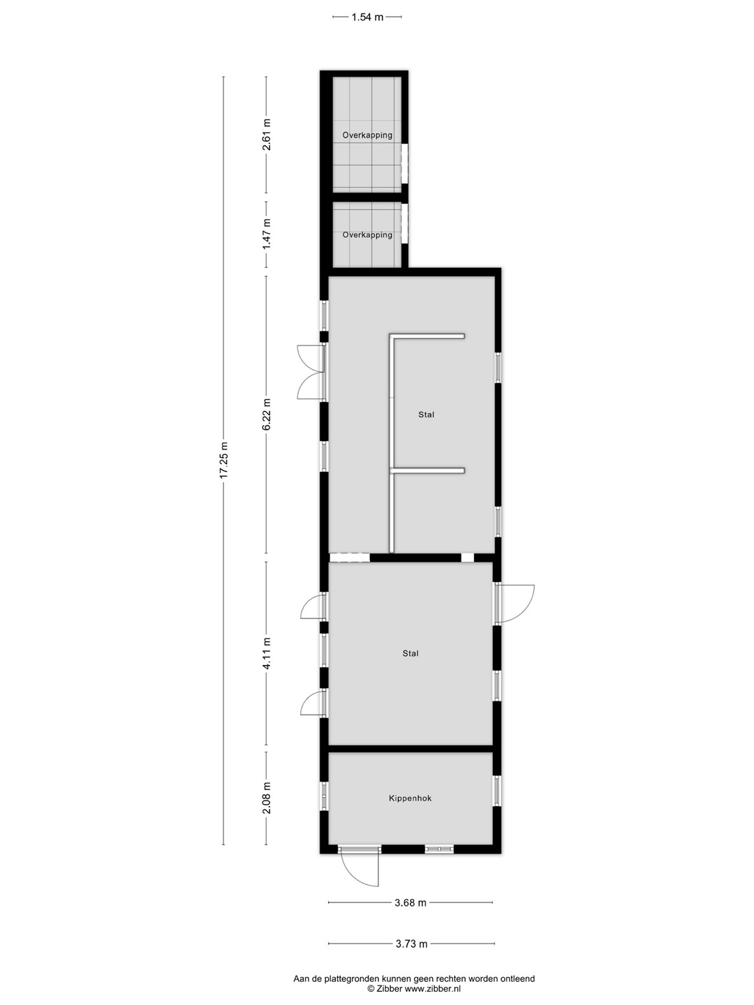
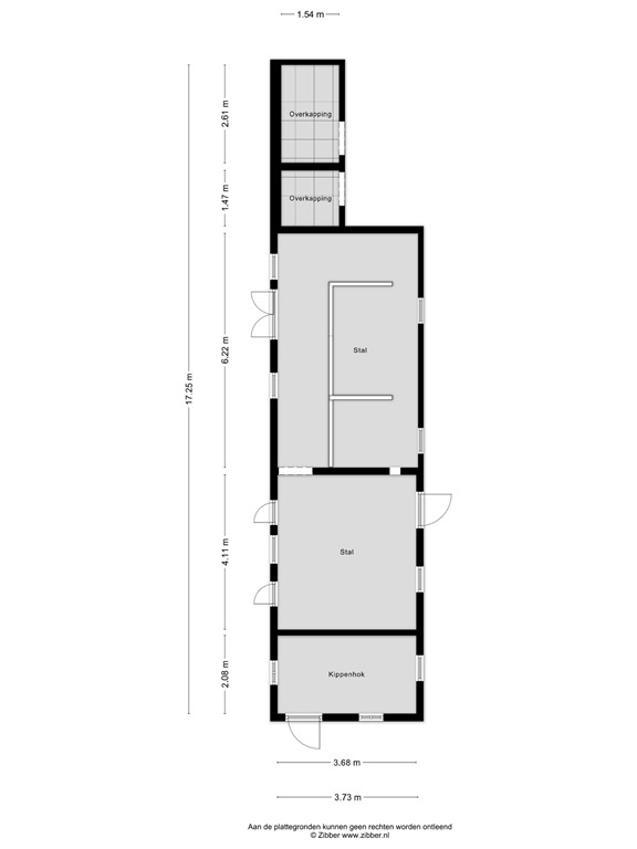
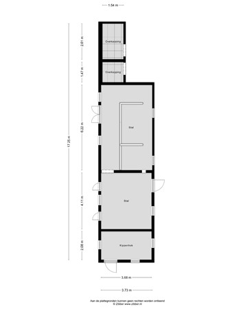
Schapenstal / kippenhok:
- bjr 1866.
- in 2011 gerenoveerd, gebruiksmogelijkheden beperkt.
- opp. ca. 45 m², goothoogte 2 m, nokhoogte 4 m.
- kleine ruimte voor kippen, grootste gedeelte schapenstal.
- de wanden zijn opgetrokken in steense muren van metselwerk.
- het dak is gedekt met pannen en ligt op houten spanten.
- v.v. een gebakken klinkervloer.
- elektra voorziening aanwezig (geen wateraansluiting).
OVERIGE VOORZIENINGEN:
Zwembad: aangelegd in 2008; afm. 4 m x 10 m; met waterpomp / verwarming.
Nutsvoorzieningen: drinkwaterleiding; elektriciteitsnet; aardgas; telefoon; schotelantenne (is nu niet meer in gebruik; kan opnieuw worden aangesloten).
UITRIT NAAR OPENBARE WEG:
Er zijn twee opgangen naar de openbare weg:
• de eerste geschikt voor auto’s en kleine busjes naar de woning en erf, die ook verbonden is met het erf bij de schuren;
• de tweede opgang is de bedrijfsopgang voor zwaar verkeer, die ook geschikt is landbouwvoertuigen en vrachtauto’s, deze opgang is aangelegd in 2005 met toestemming van het Waterschap en Staatsbosbeheer.
HOBBYWEIDE:
Hobbyweide met hoogstamfruitbomen (appel en peer), twee vijvers en knotwilgen.
Drinkput aanwezig.
LANDBOUWGROND:
Kadastrale opp. van circa 13.00.00 ha; lichte zavelgrond.
Perceel is gedraineerd; drainage deels opnieuw uitgevoerd in 2024 en in 2022.
Het jachtrecht is verhuurd tot 31 dec. 2031.
Beregening is mogelijk via oppervlakte water.
Het perceel wordt geleverd vrij van huur, pacht en/of enig ander gebruiksrecht.
BEZICHTIGING:
Mocht u nog vragen hebben of wilt u het object bezichtigen, dan kunt u rechtstreeks contact opnamen met de makelaar Theo van Gendt, te bereiken onder mobiele nummer 06 – 22 66 15 80 of via kantoor 073 - 217 35 80. Theo van Gendt zal u rondleiden.
AANVAARDING: in overleg.
VRAAGPRIJS: op aanvraag.
De koopprijs is K.K., d.w.z. dat de kosten van de overdracht van de eigendom voor rekening van koper komen. De kosten zijn: overdrachtsbelasting, notaris en kadaster. Verkoper stelt uitdrukkelijk dat een verkoop niet eerder tot stand komt dan nadat niet alleen over de hoofdzaken (prijs, object), maar ook over de details (oplevering, roerende zaken e.d.) overeenstemming is bereikt. Wij attenderen u erop dat het bieden van de vraagprijs niet automatisch inhoudt dat een koopovereenkomst tot stand komt.
Informatieplicht: koper heeft een eigen informatieplicht ter zaken alle onderwerpen die voor hem van belang (kunnen) zijn. Dat geldt zeker voor bestemmingen, bestemmingsplannen, bouwverordeningen e.d.
De in deze verkoopinformatie vermelde gegevens zijn zo zorgvuldig mogelijk samengesteld. Worden toch onjuistheden geconstateerd, dan kunnen daar geen rechten of aanspraken aan worden ontleend.
Het geheel omvat een vrijstaand woonhuis middels een tussenlid verbonden met een wagenschuur (bergruimte / garage), landbouwschuur (garage / werkplaats / opslagruimte), hangar (opslagruimte / werktuigenberging), schapenstal / kippenhok, buiten zwembad en verdere aanhorigheden, ondergrond, erf, royale (sier)tuin, kleine boomgaard met hoogstam fruitbomen, walnoten- en kastanjebomen, mooie oprijlaan met essen en eiken, alsmede landbouwgrond op een perceeloppervlakte van ca. 02.00.00 HA.
Het perceel kan bovendien worden uitgebreid met omliggende landbouwgrond tot een totale perceeloppervlakte van maar liefst maximaal ca. 15.00.00 HA.
Een unieke woon- en werklocatie die landelijk wonen combineert met historische waarde en diverse ontwikkelmogelijkheden.
KOOPOPTIES:
Akkerbouwbedrijf de “Bagijnhoeve” wordt aangeboden middels 2 opties:
Optie A: Een vrijstaand woonhuis middels een tussenlid verbonden met een wagenschuur (bergruimte / garage), landbouwschuur (garage / werkplaats / opslagruimte), hangar (opslagruimte / werktuigenberging), schapenstal / kippenhok, zwembad en verdere aanhorigheden, ondergrond, erf, royale (sier)tuin, kleine boomgaard met hoogstam fruitbomen, walnoten- en kastanjebomen, mooie oprijlaan met essen en eiken, alsmede landbouwgrond op een perceeloppervlakte van maximaal circa 15.00.00 hectaren.
Optie B: Een vrijstaand woonhuis middels een tussenlid verbonden met een wagenschuur (bergruimte / garage), landbouwschuur (garage / werkplaats / opslagruimte), hangar (opslagruimte / werktuigenberging), schapenstal / kippenhok, zwembad en verdere aanhorigheden, ondergrond, erf, royale (sier)tuin, kleine boomgaard met hoogstam fruitbomen, walnoten- en kastanjebomen, mooie oprijlaan met essen en eiken, alsmede landbouwgrond op een perceeloppervlakte van circa 02.00.00 hectaren.
Opmerking: Alleen wanneer Optie B wordt verkocht op een perceeloppervlakte van circa 2.00.00 hectaren, komt de overige landbouwgrond afzonderlijk beschikbaar.
TENNET: tracé Zierikzee- Halsteren:
Zie verder onze verkoopbrochure.
BESTEMMING:
Het object is gelegen in het omgevingsplan / bestemmingsplan “Buitengebied Tholen”, van de gemeente Tholen, vastgesteld door de raad van deze gemeente op 19 december 2013, in werking getreden en onherroepelijk geworden. Het huidige gebruik is toegestaan conform dit bestemmingsplan / omgevingsplan.
Krachtens dit bestemmingsplan / omgevingsplan is de onroerende zaak bestemd als:
Bestemmingsvlakken: Waarde - Archeologie - 3 / Agrarisch
Bouwvlak: circa 01.00.00 ha
Gebiedsaanduidingen: overige zone - karakteristieke of cultuurhistorische waardevolle bebouwing
OMSCHRIJVING:
Woonhuis:
- bjr. 1866.
- de inhoud bedraagt circa 950 m³.
- woonopp. bedraagt circa 208 m².
- goothoogte 3,90 m en nokhoogte 8,70 m.
- opgetrokken in geïsoleerde steense muren van baksteen.
- dak gedekt met steense dakpannen.
- kozijnen van kunststof en hout, voorzien van dubbele beglazing.
- v.v. een cv-installatie en radiatoren.
- vloeren zijn van beton en hout.
- asbest aanwezig: in de woning zijn tussen de steense muur en de betimmering op de begane grond asbestplaten verwerkt.
- isolatie: spouwmuur, vloer en in het verleden zijn de gevels aan de binnenzijde betimmerd. Het plafond op de 1e verdieping is geïsoleerd met glaswoldekens.
De kozijnen zijn voorzien van dubbelglas. Een aantal kozijnen zijn vernieuwd door kunststof kozijnen, deze hebben ook een isolatiewaarde. In de oude
houten kozijnen en stalen kozijnen is dun dubbelglas aangebracht.
Indeling begane grond:
centrale gang met toilet en fonteintje en trapopgang naar de eerste verdieping;
toegang naar kelder (niet altijd volledig droog);
woonkeuken met tegelvloer, openslaande tuindeuren, keukenblok voorzien van spoelbak en inbouwapparatuur, zoals vaatwasser (sept. 2025, Bosch) en inductiekookplaat (2023),
kleine keukenblok met magnetron;
woonkamer (doorzon) met kachel en houten vloer;
slaapkamer met kast;
gang naar badkamer met douche, ligbad, wastafelmeubel met dubbele wastafel en spiegel en aansluiting voor wasmachine en droger;
entree;
slaapkamer met vaste kast en toegang naar de serre / overkapping (2008) en openslaande deuren;
meterkast (volledig gereviseerd in 2022 – 2023);.
Aanbouw:
hal met berging;
gang met vaste kast;
saunaruimte met doucheruimte;
bijkeuken met vaste wastafel (in de bijkeuken is destijds een betonvloer gestort en zijn nieuwe kozijnen geplaatst);
garage met trapopgang naar verdieping (zolderruimte);
garage.
1e Verdieping:
overloop;
4 slaapkamers met vaste kasten;
badkamer met douche, toilet en dubbele wastafel;
bergruimte.
bergruimte.
Zolder:
bereikbaar via vlizotrap, deels beloopbaar.
Bijzonderheden:
De woning is gebouwd in 1866. In de loop der tijd is de woning uitgebreid met een entree en bijkeuken (2008). De serre, inclusief de openslaande tuindeuren, is aangebouwd in 2008. Daarbij zijn de vloeren in de keuken, woonkamer en serre voorzien van vloerverwarming.
Wagenschuur:
- verbonden aan het woonhuis, grootste gedeelte van de schuur is gelijktijdig gebouwd met de woning.
- bjr. 1866 en 1925.
- in 2008 deels gerenoveerd, verstevigd met stalen draagbalk.
- opp. bedraagt ca 80 m², goothoogte 3,50 m, nokhoogte 5,50 m.
- in gebruik als bergruimte / garage, zolder aanwezig.
- fundering van gemetselde steen.
- opgetrokken in steense muren.
- het dak is gedekt met pannen dak en ligt op een houten constructie.
- vloer van ijsselsteen.
- v.v. van een loopdeur, draaideur en elektrische deuren.
- in de wagenschuur is de pompunit en warmtepomp voor het buitenzwembad aanwezig.
Landbouwschuur:
- bjr. 2009.
- opp. bedraagt ca. 300 m², goothoogte 3,50 m, nokhoogte 8 m.
- aan de zijde van de woning: ingericht als garage en werkplaats, gedeeltelijk bezolderd, de zolder is bereikbaar via een vaste houten trap.
- voorzien van een opslagruimte voor aardappelen (300 ton), deze ruimte is drukvast met drukgang. Ventilatie middels bovengrondse luchtkanalen en een halfautomatische besturing van Tolsma.
- het dak is gedekt met geïsoleerde dakpanprofielplaten en ligt op stalen spanten met aluminium roeden.
- gedeeltelijke opgetrokken in geïsoleerde damwandprofielplaten, gedeeltelijk voorzien van gepotdekselde cementplanken. De onderzijde van de gevels bestaat uit betonplint.
- v..v. van 1 elektrische roldeur van 3 m x 3 m, 1 elektrische roldeur van 5 m x 5 m en diverse loopdeuren.
- drinkwater (binnen- en buitenkraan), elektra en krachtstroom voorziening.
- zonnepanelen aanwezig: totaal 56 stuks (10 stuks prive) - 400 kwh per paneel - 18400 kWp totale installatievermogen.
Hangar:
- bjr. 1918.
- in 1965 is een gedeelte dichtgemaakt, in 2009 is de dakbedekking vervangen en het aanwezige asbest gesaneerd. In 2015 is bij het open gedeelte een zo goed als dichte kopgevel gemaakt van gepotdekselde stalen profielplaten.
- opp. bedraagt ca 350 m², goothoogte 4,30 m, nokhoogte 7 m.
- in gebruik voor opslag van werktuigen en kunstmest.
- het dak is gedekt met asbestvrije golfplaten en ligt op ijzeren spanten met ijzeren liggers.
- de wanden zijn opgetrokken in kalkzandsteenblokken. De voorzijde is gedeeltelijk open.
- de hangar is v.v. een onverharde vloer.
- elektra voorziening aanwezig.
Schapenstal / kippenhok:
- bjr 1866.
- in 2011 gerenoveerd, gebruiksmogelijkheden beperkt.
- opp. ca. 45 m², goothoogte 2 m, nokhoogte 4 m.
- kleine ruimte voor kippen, grootste gedeelte schapenstal.
- de wanden zijn opgetrokken in steense muren van metselwerk.
- het dak is gedekt met pannen en ligt op houten spanten.
- v.v. een gebakken klinkervloer.
- elektra voorziening aanwezig (geen wateraansluiting).
OVERIGE VOORZIENINGEN:
Zwembad: aangelegd in 2008; afm. 4 m x 10 m; met waterpomp / verwarming.
Nutsvoorzieningen: drinkwaterleiding; elektriciteitsnet; aardgas; telefoon; schotelantenne (is nu niet meer in gebruik; kan opnieuw worden aangesloten).
UITRIT NAAR OPENBARE WEG:
Er zijn twee opgangen naar de openbare weg:
• de eerste geschikt voor auto’s en kleine busjes naar de woning en erf, die ook verbonden is met het erf bij de schuren;
• de tweede opgang is de bedrijfsopgang voor zwaar verkeer, die ook geschikt is landbouwvoertuigen en vrachtauto’s, deze opgang is aangelegd in 2005 met toestemming van het Waterschap en Staatsbosbeheer.
HOBBYWEIDE:
Hobbyweide met hoogstamfruitbomen (appel en peer), twee vijvers en knotwilgen.
Drinkput aanwezig.
LANDBOUWGROND:
Kadastrale opp. van circa 13.00.00 ha; lichte zavelgrond.
Perceel is gedraineerd; drainage deels opnieuw uitgevoerd in 2024 en in 2022.
Het jachtrecht is verhuurd tot 31 dec. 2031.
Beregening is mogelijk via oppervlakte water.
Het perceel wordt geleverd vrij van huur, pacht en/of enig ander gebruiksrecht.
BEZICHTIGING:
Mocht u nog vragen hebben of wilt u het object bezichtigen, dan kunt u rechtstreeks contact opnamen met de makelaar Theo van Gendt, te bereiken onder mobiele nummer 06 – 22 66 15 80 of via kantoor 073 - 217 35 80. Theo van Gendt zal u rondleiden.
AANVAARDING: in overleg.
VRAAGPRIJS: op aanvraag.
De koopprijs is K.K., d.w.z. dat de kosten van de overdracht van de eigendom voor rekening van koper komen. De kosten zijn: overdrachtsbelasting, notaris en kadaster. Verkoper stelt uitdrukkelijk dat een verkoop niet eerder tot stand komt dan nadat niet alleen over de hoofdzaken (prijs, object), maar ook over de details (oplevering, roerende zaken e.d.) overeenstemming is bereikt. Wij attenderen u erop dat het bieden van de vraagprijs niet automatisch inhoudt dat een koopovereenkomst tot stand komt.
Informatieplicht: koper heeft een eigen informatieplicht ter zaken alle onderwerpen die voor hem van belang (kunnen) zijn. Dat geldt zeker voor bestemmingen, bestemmingsplannen, bouwverordeningen e.d.
De in deze verkoopinformatie vermelde gegevens zijn zo zorgvuldig mogelijk samengesteld. Worden toch onjuistheden geconstateerd, dan kunnen daar geen rechten of aanspraken aan worden ontleend.
Kenmerken
| Overdracht | |
|---|---|
| Referentienummer | VGP3900734 |
| Prijs | Prijs op aanvraag |
| Status | Nieuw in verkoop |
| Aanvaarding | In overleg |
| Bouw | |
|---|---|
| Type object | Akkerbouwbedrijf |
| Soort bouw | Bestaande bouw |
| Oppervlaktes en inhoud | |
|---|---|
| Perceeloppervlakte | 15 ha |
| Locatie | |
|---|---|
| Ligging | Buiten bebouwde kom |
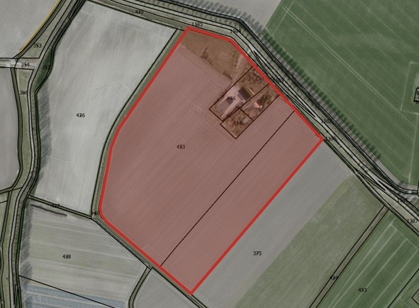
| Kadastrale gegevens | |
|---|---|
| Kadastrale aanduiding | Oud Vossemeer M 454 |
| Perceeloppervlakte | 2.170 m² |
| Omvang | Geheel perceel |
| Eigendomsituatie | Eigen grond |
| Kadastrale aanduiding | Oud Vossemeer M 456 |
| Perceeloppervlakte | 5.439 m² |
| Omvang | Geheel perceel |
| Eigendomsituatie | Eigen grond |
| Kadastrale aanduiding | Oud Vossemeer M 375 |
| Perceeloppervlakte | 42.265 m² |
| Omvang | Deel perceel |
| Eigendomsituatie | Eigen grond |
| Kadastrale aanduiding | Oud Vossemeer M 453 |
| Perceeloppervlakte | 97.315 m² |
| Omvang | Geheel perceel |
| Eigendomsituatie | Eigen grond |
| Kadastrale aanduiding | Oud Vossemeer M 455 |
| Perceeloppervlakte | 2.811 m² |
| Omvang | Geheel perceel |
| Eigendomsituatie | Eigen grond |