Te koop: PAARDENHOUDERIJBEDRIJF, bestaande uit een woonhuis met rijhal, loodsen met paardenboxen, longeer – en opslagruimtes, werktuigenberging met paardenboxen, buitenrijbak, paddocks, etc.
Spitsbergerweg 3, 5346 JK Oss
€ 1.400.000,- k.k.
| Type object | Paardenbedrijf, paardenbedrijf overig |
|---|---|
| Aanvaarding | In overleg |
| Perceeloppervlakte | 13.055 m² |
|---|---|
| Status | Nieuw in verkoop |
Beschrijving
PAARDENHOUDERIJBEDRIJF, bestaande uit een woonhuis met rijhal, loodsen met paardenboxen, longeer – en opslagruimtes, werktuigenberging met paardenboxen, buitenrijbak, paddocks, verdere aanhorigheden, ondergrond, erf, tuin en landbouwgrond op een totale perceeloppervlakte van 01.30.55 ha.
Indeling
Algemeen
In het buitengebied van Oss aan de Spitsbergerweg 3 gelegen paardenhouderijbedrijf, bestaande uit een woonhuis, rijhal, loodsen met paardenboxen, longeer – en opslagruimtes, werktuigenberging met paardenboxen, buitenrijbak, paddocks, verdere aanhorigheden, ondergrond, erf, tuin en landbouwgrond. De totale perceeloppervlakte bedraagt 01.30.55 ha.
Het object is gelegen in Oss, in de gemeente Oss, provincie Noord-Brabant. De locatie bevindt zich in een agrarisch gebied met goede ontsluiting naar de omliggende plaatsen. Het centrum van Oss ligt op korte afstand, terwijl dorpen zoals Berghem en Heesch eveneens goed bereikbaar zijn. Via de nabijgelegen uitvalswegen is er een goede verbinding richting ’s-Hertogenbosch en Nijmegen.
Kadastrale gegevens
Huiskavel:
Gemeente Oss, sectie O, nummer 41, ter grootte van 00.62.90 ha
Gemeente Oss, sectie O, nummer 53, ter grootte van 00.67.65 ha
Totale oppervlakte bedraagt 01.30.55 ha
Aantekening kadaster: Geen
(Bron: Dienst voor het kadaster en de Openbare Registers)
Voor de eigendomssituatie en de zakelijke gerechtigden wordt verwezen naar aangehechte kadastrale uittreksels en kaarten.
Bestemming
De onroerende zaak is gelegen in het bestemmingsplan “Buitengebied Oss - 2020”, van de gemeente Oss, vastgesteld door de raad van deze gemeente op 17-04-2020, in werking getreden en onherroepelijk geworden.
Het huidige gebruik is wel toegestaan conform dit bestemmingsplan.
Identificatie: NL.IMRO.0828.BPbuitengeboss2020-VG03
Krachtens dit bestemmingsplan is de onroerende zaak bestemd als:
Bestemmingsvlakken:
Waarde - Archeologie verwachtingswaarde middelhoog
Agrarisch met waarden - Landschap
Bouwvlak
Functieaanduidingen: specifieke vorm van agrarisch - veehouderij
Gebiedsaanduidingen: overige zone – komgebied, overige zone - inrichtingsplan 57, overige zone - stads- en dorpsranden, overige zone - beperking veehouderij
Nutsvoorzieningen
De navolgende nutsvoorzieningen zijn aanwezig:
• drinkwaterleiding;
• elektriciteitsnet;
• aardgas;
• drukriolering;
• glasvezel.
Milieuzaken en vergunningen
Informatie milieuvergunning
De navolgende milieuvergunning aanwezig:
Uitbreidings/veranderingsvergunning, d.d. 11 april 2006, voor de navolgende aantallen dieren:
- 34 paarden van 3 jaar en ouder
- 20 paarden jonger dan 3 jaar
Geen Natuurbeschermingsvergunning aanwezig.
Omschrijving van het object
Woonhuis:
• bouwjaar 1976, in loop der tijd verbouwd en gerenoveerd, voor het laatst in 1995.
• opgetrokken in dubbel geïsoleerde spouwmuren van baksteen; bij de bouw is de spouw geïsoleerd met steenwol, in 2023 is de spouw gevuld met isolatieschuim (ThermoFoam).
• dak beschoten met houten en geïsoleerde dakplaten en gedekt met betonpannen.
• kozijnen van hardhout, voorzien van isolerende beglazing.
• centrale verwarming op aardgas, HR ketel (2014) met hybridewarmtepomp uit 2023 in alle woon- en verblijfsruimten.
• De keuken en bijkeuken zijn voorzien van vloerverwarming.
• begane grondvloer van beton en verdiepingsvloer van beton.
indeling begane grond:
woonkamer met houtenvloer, stucwerk wanden, stucwerk plafond. De woonkamer is voorzien van tuindeuren en openhaard; keuken met tegelvloer, stucwerk wand met houten lambrisering en stucwerk plafond. De keuken is voorzien van een provisiekast en keukenmeubel van 2022; hal met trap naar verdiepingsvloer en meterkast, houten vloer, schoonmetselwerk wanden, houten schrootjes plafond;
kantoor/berging, tegelvloer, stucwerk en schoonmetselwerk wanden, schrootjes plafond, twee vaste kasten en een wc aansluiting; bijkeuken, met tegelvloer, tegelwerk en stucwerk wanden, kunststof schrootjes plafond. In de bijkeuken zijn gesitueerd een toilet met wasbak en een voorraadkast.
indeling eerste verdieping:
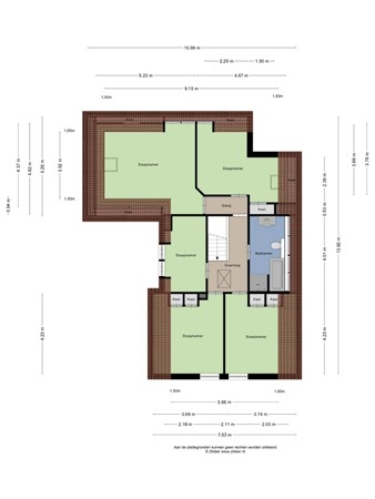
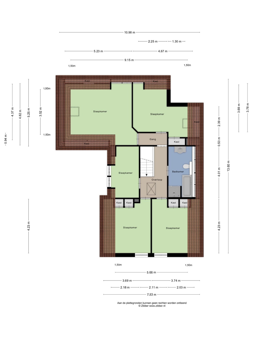
overloop, met laminaatvloer, stucwerk en schoonmetselwerk wanden, houten plafond; vijf slaapkamers waarvan 4 met ingebouwde kasten; badkamer voorzien van douche, vaste wastafel en toilet.
indeling tweede verdieping:
vliering, bereikbaar met Vlizotrap trap.
Rijhal
• bouwjaar 2005.
• op staal/poeren gefundeerd.
• opgetrokken in prefab betonelementen voorzien van steenstripmotief.
• topgevels en deuren zijn van stalen damwand profielplaten.
• het dak is gedekt met abc vrije golfplaten met twee lichtstraten en ligt op stalen spanten met een vrije overspanning.
• het dak is voorzien van 40 stuks zonnepanelen uit 2016 en 2022.
• voorzien van water en elektra.
• natuurlijke ventilatie via nokventilatie.
• de vloer is een gestorte vloeistofdichte betonvloer en een zandbodem voor de rijbak.
• de rijbak is 20 m x 40 m en voorzien van een sproei installatie.
• In de rijhal zijn 3 paardenboxen aanwezig.
Werktuigenberging - paardenstal:
• bouwjaar omstreeks 1982.
• gefundeerd op staal met poeren.
• de wanden zijn opgetrokken in baksteen, stalen damwandprofielplaat. De voorzijde is gedeeltelijk open.
• het dak is gedekt met abc golfplaten en ligt op stalen spanten.
• de loods is voorzien van een beton, klinker vloer en gedeeltelijk een zandbodem.
• Gemetselde mestput met een inhoud van ca.70 m3.
• voorzien van water en elektra.
• toegankelijk via een schuifdeur en overheaddeur
• in de stal zijn 12 paardenboxen aanwezig.
Loodsen met paardenboxen, longeer en opslagruimtes
• bouwjaar 1973, 1978 en 1997, door de jaren heen verbouwd en gerenoveerd.
• voorzien van water en elektra.
• gefundeerd op staal met poeren.
• opgetrokken in niet geïsoleerde spouwmuren van baksteen, het stalgedeelte is geïsoleerd.
• het dak is gedekt met abc golfplaten en ligt op stalen spanten.
• natuurlijke ventilatie via luchtinlaatkleppen en open nok met koepel.
• Indeling; 3 opslagruimtes, wasplaats, zadelkamer/kantine, 9 paardenboxen, longeerbak, fietsenhok, garage en tuinhuis.
Overige voorzieningen
• buitenrijbak met verlichting.
• 4 paddocks.
• mestplaat van gestorte beton.
• erfverharding bestaande uit betonklinkers, betonplaten en gestorte beton.
• weiland, ca. 4.000 m2.
• het gehele object is rondom voorzien van erfbeplanting/bosplantsoen.
Bezichtiging
Mocht u nog vragen hebben of wilt u het object bezichtigen, dan kunt u rechtstreeks contact opnemen met de makelaar Theo van Gendt.
Uiteraard kunt u voor het maken van een afspraak en al uw overige vragen ook e-mailen.
Aanvaarding
De aanvaarding is in overleg.
Vraagprijs
De vraagprijs bedraagt: € 1.400.000,= k.k.
De koopprijs is kosten koper, dat wil zeggen dat de kosten van de overdracht van de eigendom voor rekening van koper komen. De kosten zijn: overdrachtsbelasting, notaris en kadaster.
Verkoper stelt uitdrukkelijk dat een verkoop niet eerder tot stand komt dan nadat niet alleen over de hoofdzaken (prijs, object), maar ook over de details (oplevering, roerende zaken e.d.) overeenstemming is bereikt. Wij attenderen u erop dat het bieden van de vraagprijs niet automatisch inhoudt dat een koopovereenkomst tot stand komt.
Informatie
Algemeen:
Alle verstrekte informatie moet uitsluitend gezien worden als een uitnodiging tot nader overleg, c.q. tot het doen van een financieel voorstel. Verkoper stelt uitdrukkelijk dat een verkoop niet eerder tot stand komt dan nadat niet alleen over de hoofdzaken (prijs, object), maar ook over de details (oplevering, roerende zaken e.d.) overeenstemming is bereikt. Wij attenderen u erop dat het bieden van de vraagprijs niet automatisch inhoudt dat een koopovereenkomst tot stand komt.
Informatieplicht:
Koper heeft een eigen informatieplicht ter zaken alle onderwerpen die voor hem van belang (kunnen) zijn. Dat geldt zeker voor bestemmingen, bestemmingsplannen, bouwverordeningen e.d.
De in deze verkoopinformatie vermelde gegevens zijn zo zorgvuldig mogelijk samengesteld. Worden toch onjuistheden geconstateerd, dan kunnen daar geen rechten of aanspraken aan worden ontleend.
Aansprakelijkheid
Aan de samenstelling van deze brochure is de grootst mogelijke zorg besteed.
Voor eventuele afwijkingen van de werkelijke situatie wordt geen enkele aansprakelijkheid aanvaard.
Arvalis aanvaardt geen aansprakelijkheid voor onjuistheden in en onvolledigheden van de opgenomen informatie, noch kan aan de vermelde informatie enig recht worden ontleend.
In het buitengebied van Oss aan de Spitsbergerweg 3 gelegen paardenhouderijbedrijf, bestaande uit een woonhuis, rijhal, loodsen met paardenboxen, longeer – en opslagruimtes, werktuigenberging met paardenboxen, buitenrijbak, paddocks, verdere aanhorigheden, ondergrond, erf, tuin en landbouwgrond. De totale perceeloppervlakte bedraagt 01.30.55 ha.
Het object is gelegen in Oss, in de gemeente Oss, provincie Noord-Brabant. De locatie bevindt zich in een agrarisch gebied met goede ontsluiting naar de omliggende plaatsen. Het centrum van Oss ligt op korte afstand, terwijl dorpen zoals Berghem en Heesch eveneens goed bereikbaar zijn. Via de nabijgelegen uitvalswegen is er een goede verbinding richting ’s-Hertogenbosch en Nijmegen.
Kadastrale gegevens
Huiskavel:
Gemeente Oss, sectie O, nummer 41, ter grootte van 00.62.90 ha
Gemeente Oss, sectie O, nummer 53, ter grootte van 00.67.65 ha
Totale oppervlakte bedraagt 01.30.55 ha
Aantekening kadaster: Geen
(Bron: Dienst voor het kadaster en de Openbare Registers)
Voor de eigendomssituatie en de zakelijke gerechtigden wordt verwezen naar aangehechte kadastrale uittreksels en kaarten.
Bestemming
De onroerende zaak is gelegen in het bestemmingsplan “Buitengebied Oss - 2020”, van de gemeente Oss, vastgesteld door de raad van deze gemeente op 17-04-2020, in werking getreden en onherroepelijk geworden.
Het huidige gebruik is wel toegestaan conform dit bestemmingsplan.
Identificatie: NL.IMRO.0828.BPbuitengeboss2020-VG03
Krachtens dit bestemmingsplan is de onroerende zaak bestemd als:
Bestemmingsvlakken:
Waarde - Archeologie verwachtingswaarde middelhoog
Agrarisch met waarden - Landschap
Bouwvlak
Functieaanduidingen: specifieke vorm van agrarisch - veehouderij
Gebiedsaanduidingen: overige zone – komgebied, overige zone - inrichtingsplan 57, overige zone - stads- en dorpsranden, overige zone - beperking veehouderij
Nutsvoorzieningen
De navolgende nutsvoorzieningen zijn aanwezig:
• drinkwaterleiding;
• elektriciteitsnet;
• aardgas;
• drukriolering;
• glasvezel.
Milieuzaken en vergunningen
Informatie milieuvergunning
De navolgende milieuvergunning aanwezig:
Uitbreidings/veranderingsvergunning, d.d. 11 april 2006, voor de navolgende aantallen dieren:
- 34 paarden van 3 jaar en ouder
- 20 paarden jonger dan 3 jaar
Geen Natuurbeschermingsvergunning aanwezig.
Omschrijving van het object
Woonhuis:
• bouwjaar 1976, in loop der tijd verbouwd en gerenoveerd, voor het laatst in 1995.
• opgetrokken in dubbel geïsoleerde spouwmuren van baksteen; bij de bouw is de spouw geïsoleerd met steenwol, in 2023 is de spouw gevuld met isolatieschuim (ThermoFoam).
• dak beschoten met houten en geïsoleerde dakplaten en gedekt met betonpannen.
• kozijnen van hardhout, voorzien van isolerende beglazing.
• centrale verwarming op aardgas, HR ketel (2014) met hybridewarmtepomp uit 2023 in alle woon- en verblijfsruimten.
• De keuken en bijkeuken zijn voorzien van vloerverwarming.
• begane grondvloer van beton en verdiepingsvloer van beton.
indeling begane grond:
woonkamer met houtenvloer, stucwerk wanden, stucwerk plafond. De woonkamer is voorzien van tuindeuren en openhaard; keuken met tegelvloer, stucwerk wand met houten lambrisering en stucwerk plafond. De keuken is voorzien van een provisiekast en keukenmeubel van 2022; hal met trap naar verdiepingsvloer en meterkast, houten vloer, schoonmetselwerk wanden, houten schrootjes plafond;
kantoor/berging, tegelvloer, stucwerk en schoonmetselwerk wanden, schrootjes plafond, twee vaste kasten en een wc aansluiting; bijkeuken, met tegelvloer, tegelwerk en stucwerk wanden, kunststof schrootjes plafond. In de bijkeuken zijn gesitueerd een toilet met wasbak en een voorraadkast.
indeling eerste verdieping:
overloop, met laminaatvloer, stucwerk en schoonmetselwerk wanden, houten plafond; vijf slaapkamers waarvan 4 met ingebouwde kasten; badkamer voorzien van douche, vaste wastafel en toilet.
indeling tweede verdieping:
vliering, bereikbaar met Vlizotrap trap.
Rijhal
• bouwjaar 2005.
• op staal/poeren gefundeerd.
• opgetrokken in prefab betonelementen voorzien van steenstripmotief.
• topgevels en deuren zijn van stalen damwand profielplaten.
• het dak is gedekt met abc vrije golfplaten met twee lichtstraten en ligt op stalen spanten met een vrije overspanning.
• het dak is voorzien van 40 stuks zonnepanelen uit 2016 en 2022.
• voorzien van water en elektra.
• natuurlijke ventilatie via nokventilatie.
• de vloer is een gestorte vloeistofdichte betonvloer en een zandbodem voor de rijbak.
• de rijbak is 20 m x 40 m en voorzien van een sproei installatie.
• In de rijhal zijn 3 paardenboxen aanwezig.
Werktuigenberging - paardenstal:
• bouwjaar omstreeks 1982.
• gefundeerd op staal met poeren.
• de wanden zijn opgetrokken in baksteen, stalen damwandprofielplaat. De voorzijde is gedeeltelijk open.
• het dak is gedekt met abc golfplaten en ligt op stalen spanten.
• de loods is voorzien van een beton, klinker vloer en gedeeltelijk een zandbodem.
• Gemetselde mestput met een inhoud van ca.70 m3.
• voorzien van water en elektra.
• toegankelijk via een schuifdeur en overheaddeur
• in de stal zijn 12 paardenboxen aanwezig.
Loodsen met paardenboxen, longeer en opslagruimtes
• bouwjaar 1973, 1978 en 1997, door de jaren heen verbouwd en gerenoveerd.
• voorzien van water en elektra.
• gefundeerd op staal met poeren.
• opgetrokken in niet geïsoleerde spouwmuren van baksteen, het stalgedeelte is geïsoleerd.
• het dak is gedekt met abc golfplaten en ligt op stalen spanten.
• natuurlijke ventilatie via luchtinlaatkleppen en open nok met koepel.
• Indeling; 3 opslagruimtes, wasplaats, zadelkamer/kantine, 9 paardenboxen, longeerbak, fietsenhok, garage en tuinhuis.
Overige voorzieningen
• buitenrijbak met verlichting.
• 4 paddocks.
• mestplaat van gestorte beton.
• erfverharding bestaande uit betonklinkers, betonplaten en gestorte beton.
• weiland, ca. 4.000 m2.
• het gehele object is rondom voorzien van erfbeplanting/bosplantsoen.
Bezichtiging
Mocht u nog vragen hebben of wilt u het object bezichtigen, dan kunt u rechtstreeks contact opnemen met de makelaar Theo van Gendt.
Uiteraard kunt u voor het maken van een afspraak en al uw overige vragen ook e-mailen.
Aanvaarding
De aanvaarding is in overleg.
Vraagprijs
De vraagprijs bedraagt: € 1.400.000,= k.k.
De koopprijs is kosten koper, dat wil zeggen dat de kosten van de overdracht van de eigendom voor rekening van koper komen. De kosten zijn: overdrachtsbelasting, notaris en kadaster.
Verkoper stelt uitdrukkelijk dat een verkoop niet eerder tot stand komt dan nadat niet alleen over de hoofdzaken (prijs, object), maar ook over de details (oplevering, roerende zaken e.d.) overeenstemming is bereikt. Wij attenderen u erop dat het bieden van de vraagprijs niet automatisch inhoudt dat een koopovereenkomst tot stand komt.
Informatie
Algemeen:
Alle verstrekte informatie moet uitsluitend gezien worden als een uitnodiging tot nader overleg, c.q. tot het doen van een financieel voorstel. Verkoper stelt uitdrukkelijk dat een verkoop niet eerder tot stand komt dan nadat niet alleen over de hoofdzaken (prijs, object), maar ook over de details (oplevering, roerende zaken e.d.) overeenstemming is bereikt. Wij attenderen u erop dat het bieden van de vraagprijs niet automatisch inhoudt dat een koopovereenkomst tot stand komt.
Informatieplicht:
Koper heeft een eigen informatieplicht ter zaken alle onderwerpen die voor hem van belang (kunnen) zijn. Dat geldt zeker voor bestemmingen, bestemmingsplannen, bouwverordeningen e.d.
De in deze verkoopinformatie vermelde gegevens zijn zo zorgvuldig mogelijk samengesteld. Worden toch onjuistheden geconstateerd, dan kunnen daar geen rechten of aanspraken aan worden ontleend.
Aansprakelijkheid
Aan de samenstelling van deze brochure is de grootst mogelijke zorg besteed.
Voor eventuele afwijkingen van de werkelijke situatie wordt geen enkele aansprakelijkheid aanvaard.
Arvalis aanvaardt geen aansprakelijkheid voor onjuistheden in en onvolledigheden van de opgenomen informatie, noch kan aan de vermelde informatie enig recht worden ontleend.
Kenmerken
| Overdracht | |
|---|---|
| Referentienummer | VGP3900723 |
| Vraagprijs | € 1.400.000,- k.k. |
| Status | Nieuw in verkoop |
| Aanvaarding | In overleg |
| Bouw | |
|---|---|
| Type object | Paardenbedrijf, paardenbedrijf overig |
| Eveneens | ALV overig |
| Soort bouw | Bestaande bouw |
| Bouwperiode | 1976 |
| Oppervlaktes en inhoud | |
|---|---|
| Perceeloppervlakte | 1 ha 30 a 55 ca |
| Kadastrale gegevens | |
|---|---|
| Kadastrale aanduiding | Oss O 53 |
| Perceeloppervlakte | 6.765 m² |
| Omvang | Geheel perceel |
| Eigendomsituatie | Eigen grond |
| Kadastrale aanduiding | Oss O 41 |
| Perceeloppervlakte | 6.290 m² |
| Omvang | Geheel perceel |
| Eigendomsituatie | Eigen grond |
| Bedrijfswoning | |
|---|---|
| Situatie | Vrijstaand |
| Type object | Vrijstaande woning |
| Woonoppervlakte | 206 m² |
| Aantal bouwlagen | 4 |
| Aantal kamers | 11 (waarvan 6 slaapkamers) |