Te koop: Vrijstaande woning met inpandige garage, vrijstaande schuur en landbouwgrond op een perc.opp. van 00.98.55 HA.
Boord 62, 5674 NE Nuenen
€ 995.000,- k.k.
| Type object | ALV woning |
|---|---|
| Aanvaarding | In overleg |
| Perceeloppervlakte | 9.855 m² |
|---|---|
| Status | Nieuw in verkoop |
Beschrijving
Vrijstaande woning met inpandige garage, vrijstaande schuur en verdere aanhorigheden, ondergrond, erf, tuin en landbouwgrond op een perceeloppervlakte van 00.98.55 hectare.
Indeling
Een in het buitengebied – op een fraaie en rustige locatie gelegen - vrijstaande woning met inpandige garage, vrijstaande schuur, veldschuur en verdere aanhorigheden, ondergrond, erf, tuin en landbouwgrond op een perc.opp. van 00.98.55 HA.
Ziet u uzelf hier al wonen? Dan moet u het spraakmakende geheel zeker eens komen bekijken.
Hier woont u op een uitstekende locatie waar u optimaal kunt genieten van de rust en ruimte.
KADASTRALE GEGEVENS:
Gemeente NUENEN, sectie D, nummer 5098, ter grootte van 00.87.40 ha
Gemeente NUENEN, sectie D, nummer 5225, ter grootte van 00.11.15 ha
Totale oppervlakte huiskavel 00.98.55 ha
Aantekening kadaster:
De percelen zijn belast met een zakelijk recht als bedoeld in artikel 5, lid 3, onder B, van de Belemmeringenwet Privaatrechten op gedeelte van perceel ten behoeve van:
- Waterschap De Dommel.
Tevens zijn deze percelen belast met een opstalrecht nutsvoorzieningen ten behoeve van:
- Brabant Water N.V.
- TenneT TSO B.V.
Opmerking: De links gelegen inrit (perceelnummer 5224) is circa 5,00 meter breed: behoort niet tot het verkochte. Deze inrit behoort tot het achtergelegen perceel landbouwgrond.
(Bron: Dienst voor het kadaster en de Openbare Registers).
BESTEMMING:
Het object is gelegen in het bestemmingsplan / omgevingsplan “Buitengebied Nuenen”, van de gemeente Nuenen, Gerwen en Nederwetten, vastgesteld door de raad van deze gemeente op 01 november 2018, in werking getreden en deels onherroepelijk geworden.
Krachtens dit bestemmingsplan / omgevingsplan is de onroerende zaak bestemd als:
Bestemmingsvlakken:
Agrarisch met waarden – Groenblauwe mantel.
Leiding – Hoogspanningsverbinding 1.
Leiding – Riool.
Leiding – Water.
Waarde – Archeologie 3b hoge verwachting met esdek.
Waarde – Cultuurhistorie historische verkaveling.
Waarde – Cultuurhistorie akkerbouwcomplex.
Bouwvlak:
Bouwvlak.
Gebiedsaanduiding:
Overige zone – beperkingen veehouderij.
Overige zone – schuilstallen.
(Bron: Omgevingsloket).
Wijzigingsbevoegdheid College B en W:
4.7.3 Ten behoeve van vervolgfuncties
Burgemeester en wethouders kunnen het plan wijzigen om - indien sprake is van een algehele beëindiging van een agrarisch bedrijf - vervolgfuncties toe te staan, met inachtneming van het volgende:
• a. de vervolgfunctie dient te bestaan uit één van de volgende activiteiten:
o 1. alternatieve voedselproductie;
o 2. duurzame energieproductie in de vorm van zon-, wind- en/of biomassaenergie, uitgezonderd mestbewerking voor derden;
o 3. vrijetijdsbesteding;
o 4. bedrijfsactiviteiten uit ten hoogste categorie 2 van de Staat van Bedrijfsactiviteiten;
o 5. wonen;
• b. na toepassing van de wijzigingsbevoegdheid geen nieuwe gebouwen gebouwd mogen worden en bestaande gebouwen niet mogen worden uitgebreid;
• c. in afwijking van het bepaalde onder b geldt dat nieuwe gebouwen zijn toegestaan indien er gebouwen gesloopt worden, met dien verstande dat:
o 1. ten hoogste 75% van de gesloopte oppervlakte mag worden terug gebouwd;
o 2. met de sloop geen rijksmonumenten, gemeentelijke monumenten of beeldbepalende panden (met de aanduiding 'karakteristiek') gemoeid zijn;
• d. de vervolgfunctie dient milieuhygiënisch inpasbaar te zijn;
• e. de waarden zoals genoemd in lid 4.1 onder c niet onevenredig worden aangetast;
• f. het aantal woningen bedraagt niet meer dan het bestaande aantal bedrijfswoningen;
• g. in afwijking van het bepaalde onder e, is woningsplitsing in maximaal 2 woningen mogelijk bij rijksmonumenten, gemeentelijke monumenten of beeldbepalende panden, met dien verstande dat de inhoud per woning ten minste 200 m3 bedraagt;
• h. bij de wijziging wordt een aanduiding opgenomen, waarmee wordt aangegeven dat het voormalige bedrijfsbebouwing betreft:
• i. de omvang van het bestemmingsvlak voor de vervolgfunctie mag ten hoogste 5.000 m2 bedragen;
• j. door middel van een inrichtingsplan dient aangetoond te worden dat sprake is van een goede landschappelijke inpassing conform de richtlijnen uit het Landschapsontwikkelingsplan de Peel en een toename van ruimtelijke kwaliteit van het gebied conform de richtlijnen uit Landschapsinvesteringsregeling;
• k. deze wijzigingsbevoegdheid kan niet worden toegepast in situaties waarbij gebruik is gemaakt van een subsidieregeling voor sanering of verplaatsing.
NUTSVOORZIENINGEN:
De navolgende nutsvoorzieningen zijn aanwezig: Waterleiding, Elektriciteit 3 x 25 ampère, Aardgas., Drukriolering, Telefoon, CAI (geen glasvezel).
OMSCHRIJVING VAN HET OBJECT:
Woning met inpandige garage:
• bjr 1981.
• de inhoud woonhuis bedraagt ca 650 m³ en inpandige garage heeft een opp. van ca 50 m2.
• opgetrokken in geïsoleerde spouwmuren van baksteen.
• dak beschoten met geïsoleerde dakplaten en gedekt met betonpannen.
• kozijnen van hardhout, op de begane grond voorzien van isolerende beglazing.
• centrale verwarming (geen vloerverwarming aanwezig) op aardgas in alle woon- en verblijfsruimten.
• diverse rolluiken rondom aanwezig.
• begane grondvloer van beton, 1e verdiepingsvloer van beton en 2e verdieping een houten vloer.
• indeling begane grond:
portaal; toilet; wasmachineruimte; badkamer met inloopdouche en hangend toilet; keuken met keukeninrichting van 2016 met hardstenen blad en voorzien van inductiekookplaat en vaatwasser etc.; diepe betegelde grote kelder; woonkamer; slaapkamer; hal met hardhouten trap naar de eerste verdieping; grote inpandige garage.
• indeling eerste verdieping:
overloop; 4 slaapkamers; badkamer met bad, toilet, douche en vaste wastafel.
• indeling tweede verdieping:
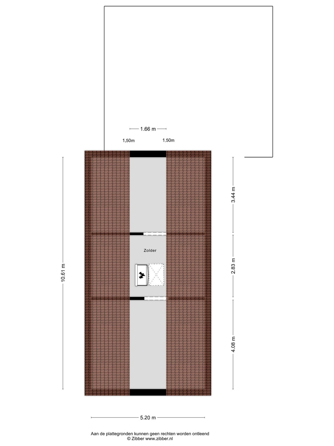
grote vliering, bereikbaar middels een vlizotrap.
Boven de garage bevindt zich een grote open zolder met betonvloer en bereikbaar middels een vlizotrap.
Vrijstaande schuur:
• bjr ca 1981.
• afm. ca 22,77 m x ca 40 m = opp. ca 900 m².
• de muren zijn opgetrokken in spouwmuren van baksteen.
• het dak is gedekt met sandwichpanelen circa 6 cm dikke isolatie en ligt op staanders en stalen spanten.
• de schuur is voorzien van gemetselde putten met een betonnen dek, behalve in het middenpad zitten geen putten.
• voorin 2 ruimte.
• voor- en achterzijde voorzien van 2 x 2 schuifdeuren.
Veldschuur:
• bJr ca 1973.
• afm. (zonder aanbouw) ca 12,00 m x ca 21,00 m = opp. ca 252 m².
• de wanden zijn opgetrokken in hout en damwand platen.
• het dak is gedekt met damwandplaten en ligt op houten spanten.
• de veldschuur is voorzien van een betontegel / klinkervloer.
Noordzijde van de vrijstaande schuur is de veldschuur gelegen.
LANDBOUWGROND:
Het is zandgrond met een humushoudende deklaag van ca. 30 cm.
Het betreft een vocht-/leemhoudende grond.
Het perceel is recht van vorm.
Het perceel is thans in gebruik als grasland.
Het perceel is niet gedraineerd.
In het perceel is een hoogspanningsmast gelegen (vergoeding circa € 400,= per jaar).
Het perceel wordt geleverd vrij van huur, pacht en/of enig ander gebruiksrecht.
Het jachtrecht is niet verpacht.
ALGEMENE PUNTEN:
Het object is mooi vrij gelegen in het buitengebied van NUENEN aan de Boord 62.
Het object is gesitueerd op fietsafstand van het centrum van Nuenen. Daarnaast is de dichtstbijzijnde uitvalsweg in de nabije omgeving op circa 7 minuten rijden.
Op korte afstand van het centrum van Eindhoven gelegen.
Voldoende parkeergelegenheid op eigen terrein.
Qua bodem verklaart verkoper enkel agrarisch te hebben gebruikt en niet bekend te zijn met verontreiniging.
De woonboerderij heeft Energielabel: C. (Zie bijlage).
- Registratienummer : 911652164
- Geldig tot : 29 mei 2034
In het Belastingplan 2023 (per januari 2023) is het algemene tarief van de overdrachtsbelasting verhoogd van 8 naar 10,4%. Wat houdt deze verhoging in?
Algemene tarief verhoogd. Het algemene tarief van de overdrachtsbelasting is opnieuw verhoogd per 1 januari 2023. De overdrachtsbelasting voor niet-woningen en voor woningen waar de verkrijgers niet voor langere tijd zelf in gaan wonen, is verhoogd van 8 naar 10,4%. Via deze verhoging wil men de positie van de starter en doorstromer ten opzichte van de belegger op de koopwoningmarkt verbeteren. Het algemene overdrachtsbelastingtarief geldt onder meer voor bedrijfsgebouwen en bedrijfsruimtes, aanhorigheden die niet tegelijk met een woning worden gekocht (bijv. tuin, garage of schuur), recreatiewoningen en tweede woningen, de woning van de ouders die de kinderen kopen en waarin de ouders blijven wonen, grond die bestemd is voor woningbouw, de verkrijging van de economische eigendom, enz.
Lager tarief van 2%. Voor woningen geldt een lager tarief van 2%. Sinds 1 januari 2021 geldt dit lage tarief alleen voor woningen die door de verkrijger (langdurig) als hoofdverblijf worden gebruikt. Vanaf 1 januari 2021 geldt er voor starters op de woningmarkt, onder voorwaarden, een vrijstelling.
Bezichtiging
Mocht u nog vragen hebben of wenst u het object te bezichtigen gelieve telefonisch contact op te nemen met de heer Ing. J.M.J.M. (Jos) van den Heuvel, te bereiken onder mobiele telefoon: 06 – 53 39 76 30 of via ons kantoor 073 – 217 35 80. De heer Ing. J.M.J.M. (Jos) van den Heuvel zal u rondleiden.
Uiteraard kunt u voor het maken van een afspraak en al uw overige vragen ook e-mailen.
Informatie
Alle verstrekte informatie moet uitsluitend gezien worden als een uitnodiging tot nader overleg, c.q. tot het doen van een financieel voorstel. Verkoper stelt uitdrukkelijk dat een verkoop niet eerder tot stand komt dan nadat niet alleen over de hoofdzaken (prijs, object), maar ook over de details (oplevering, roerende zaken e.d.) overeenstemming is bereikt. Wij attenderen u erop dat het bieden van de vraagprijs niet automatisch inhoudt dat een koopovereenkomst tot stand komt.
Onderzoekplicht:
Koper heeft een eigen onderzoekplicht ter zaken alle onderwerpen die voor hem van belang (kunnen) zijn. Dat geldt zeker voor bestemmingen, bestemmingsplannen / omgevingsplan, bouwverordeningen e.d.
De in deze verkoopinformatie vermelde gegevens zijn zo zorgvuldig mogelijk samengesteld. Worden toch onjuistheden geconstateerd, dan kunnen daar geen rechten of aanspraken aan worden ontleend.
Ziet u uzelf hier al wonen? Dan moet u het spraakmakende geheel zeker eens komen bekijken.
Hier woont u op een uitstekende locatie waar u optimaal kunt genieten van de rust en ruimte.
KADASTRALE GEGEVENS:
Gemeente NUENEN, sectie D, nummer 5098, ter grootte van 00.87.40 ha
Gemeente NUENEN, sectie D, nummer 5225, ter grootte van 00.11.15 ha
Totale oppervlakte huiskavel 00.98.55 ha
Aantekening kadaster:
De percelen zijn belast met een zakelijk recht als bedoeld in artikel 5, lid 3, onder B, van de Belemmeringenwet Privaatrechten op gedeelte van perceel ten behoeve van:
- Waterschap De Dommel.
Tevens zijn deze percelen belast met een opstalrecht nutsvoorzieningen ten behoeve van:
- Brabant Water N.V.
- TenneT TSO B.V.
Opmerking: De links gelegen inrit (perceelnummer 5224) is circa 5,00 meter breed: behoort niet tot het verkochte. Deze inrit behoort tot het achtergelegen perceel landbouwgrond.
(Bron: Dienst voor het kadaster en de Openbare Registers).
BESTEMMING:
Het object is gelegen in het bestemmingsplan / omgevingsplan “Buitengebied Nuenen”, van de gemeente Nuenen, Gerwen en Nederwetten, vastgesteld door de raad van deze gemeente op 01 november 2018, in werking getreden en deels onherroepelijk geworden.
Krachtens dit bestemmingsplan / omgevingsplan is de onroerende zaak bestemd als:
Bestemmingsvlakken:
Agrarisch met waarden – Groenblauwe mantel.
Leiding – Hoogspanningsverbinding 1.
Leiding – Riool.
Leiding – Water.
Waarde – Archeologie 3b hoge verwachting met esdek.
Waarde – Cultuurhistorie historische verkaveling.
Waarde – Cultuurhistorie akkerbouwcomplex.
Bouwvlak:
Bouwvlak.
Gebiedsaanduiding:
Overige zone – beperkingen veehouderij.
Overige zone – schuilstallen.
(Bron: Omgevingsloket).
Wijzigingsbevoegdheid College B en W:
4.7.3 Ten behoeve van vervolgfuncties
Burgemeester en wethouders kunnen het plan wijzigen om - indien sprake is van een algehele beëindiging van een agrarisch bedrijf - vervolgfuncties toe te staan, met inachtneming van het volgende:
• a. de vervolgfunctie dient te bestaan uit één van de volgende activiteiten:
o 1. alternatieve voedselproductie;
o 2. duurzame energieproductie in de vorm van zon-, wind- en/of biomassaenergie, uitgezonderd mestbewerking voor derden;
o 3. vrijetijdsbesteding;
o 4. bedrijfsactiviteiten uit ten hoogste categorie 2 van de Staat van Bedrijfsactiviteiten;
o 5. wonen;
• b. na toepassing van de wijzigingsbevoegdheid geen nieuwe gebouwen gebouwd mogen worden en bestaande gebouwen niet mogen worden uitgebreid;
• c. in afwijking van het bepaalde onder b geldt dat nieuwe gebouwen zijn toegestaan indien er gebouwen gesloopt worden, met dien verstande dat:
o 1. ten hoogste 75% van de gesloopte oppervlakte mag worden terug gebouwd;
o 2. met de sloop geen rijksmonumenten, gemeentelijke monumenten of beeldbepalende panden (met de aanduiding 'karakteristiek') gemoeid zijn;
• d. de vervolgfunctie dient milieuhygiënisch inpasbaar te zijn;
• e. de waarden zoals genoemd in lid 4.1 onder c niet onevenredig worden aangetast;
• f. het aantal woningen bedraagt niet meer dan het bestaande aantal bedrijfswoningen;
• g. in afwijking van het bepaalde onder e, is woningsplitsing in maximaal 2 woningen mogelijk bij rijksmonumenten, gemeentelijke monumenten of beeldbepalende panden, met dien verstande dat de inhoud per woning ten minste 200 m3 bedraagt;
• h. bij de wijziging wordt een aanduiding opgenomen, waarmee wordt aangegeven dat het voormalige bedrijfsbebouwing betreft:
• i. de omvang van het bestemmingsvlak voor de vervolgfunctie mag ten hoogste 5.000 m2 bedragen;
• j. door middel van een inrichtingsplan dient aangetoond te worden dat sprake is van een goede landschappelijke inpassing conform de richtlijnen uit het Landschapsontwikkelingsplan de Peel en een toename van ruimtelijke kwaliteit van het gebied conform de richtlijnen uit Landschapsinvesteringsregeling;
• k. deze wijzigingsbevoegdheid kan niet worden toegepast in situaties waarbij gebruik is gemaakt van een subsidieregeling voor sanering of verplaatsing.
NUTSVOORZIENINGEN:
De navolgende nutsvoorzieningen zijn aanwezig: Waterleiding, Elektriciteit 3 x 25 ampère, Aardgas., Drukriolering, Telefoon, CAI (geen glasvezel).
OMSCHRIJVING VAN HET OBJECT:
Woning met inpandige garage:
• bjr 1981.
• de inhoud woonhuis bedraagt ca 650 m³ en inpandige garage heeft een opp. van ca 50 m2.
• opgetrokken in geïsoleerde spouwmuren van baksteen.
• dak beschoten met geïsoleerde dakplaten en gedekt met betonpannen.
• kozijnen van hardhout, op de begane grond voorzien van isolerende beglazing.
• centrale verwarming (geen vloerverwarming aanwezig) op aardgas in alle woon- en verblijfsruimten.
• diverse rolluiken rondom aanwezig.
• begane grondvloer van beton, 1e verdiepingsvloer van beton en 2e verdieping een houten vloer.
• indeling begane grond:
portaal; toilet; wasmachineruimte; badkamer met inloopdouche en hangend toilet; keuken met keukeninrichting van 2016 met hardstenen blad en voorzien van inductiekookplaat en vaatwasser etc.; diepe betegelde grote kelder; woonkamer; slaapkamer; hal met hardhouten trap naar de eerste verdieping; grote inpandige garage.
• indeling eerste verdieping:
overloop; 4 slaapkamers; badkamer met bad, toilet, douche en vaste wastafel.
• indeling tweede verdieping:
grote vliering, bereikbaar middels een vlizotrap.
Boven de garage bevindt zich een grote open zolder met betonvloer en bereikbaar middels een vlizotrap.
Vrijstaande schuur:
• bjr ca 1981.
• afm. ca 22,77 m x ca 40 m = opp. ca 900 m².
• de muren zijn opgetrokken in spouwmuren van baksteen.
• het dak is gedekt met sandwichpanelen circa 6 cm dikke isolatie en ligt op staanders en stalen spanten.
• de schuur is voorzien van gemetselde putten met een betonnen dek, behalve in het middenpad zitten geen putten.
• voorin 2 ruimte.
• voor- en achterzijde voorzien van 2 x 2 schuifdeuren.
Veldschuur:
• bJr ca 1973.
• afm. (zonder aanbouw) ca 12,00 m x ca 21,00 m = opp. ca 252 m².
• de wanden zijn opgetrokken in hout en damwand platen.
• het dak is gedekt met damwandplaten en ligt op houten spanten.
• de veldschuur is voorzien van een betontegel / klinkervloer.
Noordzijde van de vrijstaande schuur is de veldschuur gelegen.
LANDBOUWGROND:
Het is zandgrond met een humushoudende deklaag van ca. 30 cm.
Het betreft een vocht-/leemhoudende grond.
Het perceel is recht van vorm.
Het perceel is thans in gebruik als grasland.
Het perceel is niet gedraineerd.
In het perceel is een hoogspanningsmast gelegen (vergoeding circa € 400,= per jaar).
Het perceel wordt geleverd vrij van huur, pacht en/of enig ander gebruiksrecht.
Het jachtrecht is niet verpacht.
ALGEMENE PUNTEN:
Het object is mooi vrij gelegen in het buitengebied van NUENEN aan de Boord 62.
Het object is gesitueerd op fietsafstand van het centrum van Nuenen. Daarnaast is de dichtstbijzijnde uitvalsweg in de nabije omgeving op circa 7 minuten rijden.
Op korte afstand van het centrum van Eindhoven gelegen.
Voldoende parkeergelegenheid op eigen terrein.
Qua bodem verklaart verkoper enkel agrarisch te hebben gebruikt en niet bekend te zijn met verontreiniging.
De woonboerderij heeft Energielabel: C. (Zie bijlage).
- Registratienummer : 911652164
- Geldig tot : 29 mei 2034
In het Belastingplan 2023 (per januari 2023) is het algemene tarief van de overdrachtsbelasting verhoogd van 8 naar 10,4%. Wat houdt deze verhoging in?
Algemene tarief verhoogd. Het algemene tarief van de overdrachtsbelasting is opnieuw verhoogd per 1 januari 2023. De overdrachtsbelasting voor niet-woningen en voor woningen waar de verkrijgers niet voor langere tijd zelf in gaan wonen, is verhoogd van 8 naar 10,4%. Via deze verhoging wil men de positie van de starter en doorstromer ten opzichte van de belegger op de koopwoningmarkt verbeteren. Het algemene overdrachtsbelastingtarief geldt onder meer voor bedrijfsgebouwen en bedrijfsruimtes, aanhorigheden die niet tegelijk met een woning worden gekocht (bijv. tuin, garage of schuur), recreatiewoningen en tweede woningen, de woning van de ouders die de kinderen kopen en waarin de ouders blijven wonen, grond die bestemd is voor woningbouw, de verkrijging van de economische eigendom, enz.
Lager tarief van 2%. Voor woningen geldt een lager tarief van 2%. Sinds 1 januari 2021 geldt dit lage tarief alleen voor woningen die door de verkrijger (langdurig) als hoofdverblijf worden gebruikt. Vanaf 1 januari 2021 geldt er voor starters op de woningmarkt, onder voorwaarden, een vrijstelling.
Bezichtiging
Mocht u nog vragen hebben of wenst u het object te bezichtigen gelieve telefonisch contact op te nemen met de heer Ing. J.M.J.M. (Jos) van den Heuvel, te bereiken onder mobiele telefoon: 06 – 53 39 76 30 of via ons kantoor 073 – 217 35 80. De heer Ing. J.M.J.M. (Jos) van den Heuvel zal u rondleiden.
Uiteraard kunt u voor het maken van een afspraak en al uw overige vragen ook e-mailen.
Informatie
Alle verstrekte informatie moet uitsluitend gezien worden als een uitnodiging tot nader overleg, c.q. tot het doen van een financieel voorstel. Verkoper stelt uitdrukkelijk dat een verkoop niet eerder tot stand komt dan nadat niet alleen over de hoofdzaken (prijs, object), maar ook over de details (oplevering, roerende zaken e.d.) overeenstemming is bereikt. Wij attenderen u erop dat het bieden van de vraagprijs niet automatisch inhoudt dat een koopovereenkomst tot stand komt.
Onderzoekplicht:
Koper heeft een eigen onderzoekplicht ter zaken alle onderwerpen die voor hem van belang (kunnen) zijn. Dat geldt zeker voor bestemmingen, bestemmingsplannen / omgevingsplan, bouwverordeningen e.d.
De in deze verkoopinformatie vermelde gegevens zijn zo zorgvuldig mogelijk samengesteld. Worden toch onjuistheden geconstateerd, dan kunnen daar geen rechten of aanspraken aan worden ontleend.
Kenmerken
| Overdracht | |
|---|---|
| Referentienummer | VGP3900721 |
| Vraagprijs | € 995.000,- k.k. |
| Status | Nieuw in verkoop |
| Aanvaarding | In overleg |
| Bouw | |
|---|---|
| Type object | ALV woning |
| Grondsoort | Zand |
| Soort bouw | Bestaande bouw |
| Bouwperiode | 1981 |
| Oppervlaktes en inhoud | |
|---|---|
| Perceeloppervlakte | 98 a 55 ca |
| Inhoud | 700 m³ |
| Indeling | |
|---|---|
| Aantal bouwlagen | 4 |
| Aantal kamers | 6 (waarvan 5 slaapkamers) |
| Locatie | |
|---|---|
| Ligging | Buiten bebouwde kom |
| Uitrusting | |
|---|---|
| Badkamervoorzieningen Badkamer 1 | Inloopdouche Toilet |
| Badkamervoorzieningen Badkamer 2 | Douche Ligbad Toilet Wastafel |
| Kadastrale gegevens | |
|---|---|
| Kadastrale aanduiding | Nuenen c.a. D 5225 |
| Perceeloppervlakte | 1.115 m² |
| Omvang | Geheel perceel |
| Eigendomsituatie | Eigen grond |
| Kadastrale aanduiding | Nuenen c.a. D 5098 |
| Perceeloppervlakte | 8.740 m² |
| Omvang | Geheel perceel |
| Eigendomsituatie | Eigen grond |