Verkocht: Overbroekseweg, 5809 EN Leunen
| Type object | Losse grond |
|---|
| Status | Verkocht |
|---|
Beschrijving
Wij bieden u een mooi perceel cultuurgrond aan ter grootte van 2.53.75 ha, nabij de Overbroekseweg Leunen. Het perceel is toegankelijk via een onverharde zijweg van de Overbroekseweg en is geschikt voor de teelt van diverse soorten akkerbouw- en tuinbouwgewassen.
De omgeving wordt gekenmerkt door een agrarisch buitengebied met uitgestrekte landbouwgronden. Dit biedt een mooie kans voor zowel agrariërs als beleggers om dit perceel in eigendom te verwerven. Heeft u interesse als belegger? Dan kunnen wij het perceel voor u verpachten aan een agrariër en de volledige verpachting namens u verzorgen.
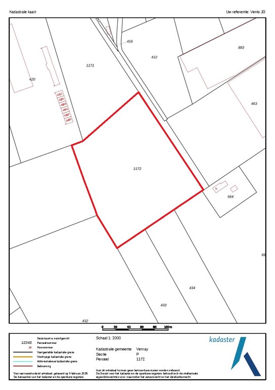
Kadastrale situatie:
Venray P 1172, grootte 25.375 m²
Bodem en gebruik:
De grondsoort betreft zandgrond.
Het perceel is van 2020 t/m 2024 in gebruik geweest voor de teelt van tijdelijk grasland en in 2025 voor de teelt van aardappelen.
Bijzonderheden:
- Het perceel wordt vrij van pacht geleverd.
- Het jachtrecht is niet verhuurd.
- Er is geen beregeningsput aanwezig.
- Er heeft een schuurtje aan de voorzijde van het perceel gestaan, waardoor er mogelijk nog puinresten in de grond aanwezig zijn.
Bestemmingsplan:
Het perceel is gelegen in het bestemmingsplan 'Buitengebied Venray 2010', Gemeente Venray, vastgesteld 14-12-2010, én binnen het bestemmingsplan 'Overbroekseweg 8/8a, vastgesteld 11-05-2021, - geheel onherroepelijk in werking - en heeft de volgende bestemmingen:
Bestemmingsvlakken (2):
- Waarde - Archeologie - 2
- Agrarisch
Gebiedsaanduidingen (2):
- reconstructiewetzone - verwevingsgebied
- milieuzone - grondwaterbeschermingsgebied
Verkoopprocedure:
Het perceel wordt verkocht ‘per inschrijving’. Het inschrijfformulier met bijbehorende voorwaarden kunnen worden opgevraagd bij de makelaar.
Het volledige ingevulde en ondertekende inschrijfformulier dient uiterlijk 25-03-2026 vóór 13.00 uur ingeleverd te worden bij Arvalis Kantoor Venlo, Villafloraweg 1 Venlo, of per e-mail gericht aan info@arvalis.nl. Binnen 5 werkdagen zal de bieder(s) geïnformeerd worden of het perceel hem gegund is. Gunning geschiedt onder voorbehoud van goedkeuring door verkoper.
Aanvaarding:
In overleg
Voor meer informatie kunt u contact opnemen met:
John Derix (makelaar)
t: 06 2095 8074
e: jderix@arvalis.nl
De omgeving wordt gekenmerkt door een agrarisch buitengebied met uitgestrekte landbouwgronden. Dit biedt een mooie kans voor zowel agrariërs als beleggers om dit perceel in eigendom te verwerven. Heeft u interesse als belegger? Dan kunnen wij het perceel voor u verpachten aan een agrariër en de volledige verpachting namens u verzorgen.
Kadastrale situatie:
Venray P 1172, grootte 25.375 m²
Bodem en gebruik:
De grondsoort betreft zandgrond.
Het perceel is van 2020 t/m 2024 in gebruik geweest voor de teelt van tijdelijk grasland en in 2025 voor de teelt van aardappelen.
Bijzonderheden:
- Het perceel wordt vrij van pacht geleverd.
- Het jachtrecht is niet verhuurd.
- Er is geen beregeningsput aanwezig.
- Er heeft een schuurtje aan de voorzijde van het perceel gestaan, waardoor er mogelijk nog puinresten in de grond aanwezig zijn.
Bestemmingsplan:
Het perceel is gelegen in het bestemmingsplan 'Buitengebied Venray 2010', Gemeente Venray, vastgesteld 14-12-2010, én binnen het bestemmingsplan 'Overbroekseweg 8/8a, vastgesteld 11-05-2021, - geheel onherroepelijk in werking - en heeft de volgende bestemmingen:
Bestemmingsvlakken (2):
- Waarde - Archeologie - 2
- Agrarisch
Gebiedsaanduidingen (2):
- reconstructiewetzone - verwevingsgebied
- milieuzone - grondwaterbeschermingsgebied
Verkoopprocedure:
Het perceel wordt verkocht ‘per inschrijving’. Het inschrijfformulier met bijbehorende voorwaarden kunnen worden opgevraagd bij de makelaar.
Het volledige ingevulde en ondertekende inschrijfformulier dient uiterlijk 25-03-2026 vóór 13.00 uur ingeleverd te worden bij Arvalis Kantoor Venlo, Villafloraweg 1 Venlo, of per e-mail gericht aan info@arvalis.nl. Binnen 5 werkdagen zal de bieder(s) geïnformeerd worden of het perceel hem gegund is. Gunning geschiedt onder voorbehoud van goedkeuring door verkoper.
Aanvaarding:
In overleg
Voor meer informatie kunt u contact opnemen met:
John Derix (makelaar)
t: 06 2095 8074
e: jderix@arvalis.nl
Kenmerken
| Overdracht | |
|---|---|
| Referentienummer | 68059/41246 |
| Status | Verkocht |
| Laatste wijziging | Woensdag 29 april 2026 |
| Bouw | |
|---|---|
| Type object | Losse grond |
| Soort bouw | Bestaande bouw |