Te koop: Molenweg 91, 6104 RH Koningsbosch
€ 675.000,- k.k.
| Type object | ALV overig |
|---|
| Perceeloppervlakte | 5.000 m² |
|---|
Beschrijving
Vrijstaand wonen op een ruim perceel!
In het buitengebied van Koningsbosch op een mooie landelijke locatie is deze vrijstaande woning met loods en twee voormalige pluimveestallen gelegen. Eventueel is het onder voorwaarde, in overleg met de Gemeente Echt-Susteren, mogelijk om de twee voormalige pluimveestallen te slopen en een 2de woonhuis (bouwkavel) op locatie te realiseren. De gehele locatie dient dan naar de bestemming ‘Wonen’ te worden omgezet en de vrijstaande loods kan hierbij blijven behouden, de correspondentie hierover is via ons kantoor beschikbaar. De locatie biedt vele mogelijkheden om te ontwikkelen en voor de liefhebber van landelijk wonen of de (agrarische) zzp-er die op zoek is naar bedrijfsruimte bij zijn woning. De woning met gebouwen is gelegen op een kavel van maar liefst ca. 5.000 m², het perceel dient nog kadastraal te worden gesplitst.
De vrijstaande woning is gebouwd in een traditionele stijl en beschikt over een ruime woonkamer met open haard, een leefkeuken met veelzijdige bijkeuken en een badkamer op de begane grond. De verdieping is voorzien van drie ruime slaapkamers. Achter de woning is een fraai tuinhuis met overkapping gelegen, een ideale buitenruimte. De locatie is aan de achterzijde geheel vrij gelegen met een uitzicht op de landerijen waardoor dit een perfecte plek is om te kunnen genieten van het landelijke leven.
Op de locatie rust momenteel een agrarische bestemming. In overleg met de Gemeente Echt-Susteren is het mogelijk om de bestemming op de locatie te wijzigen naar 'wonen'. Om de bestemming te wijzigen geldt de voorwaarde dat de twee pluimveestallen gesaneerd/gesloopt dienen te worden. Het behoudt van de loods aan de rechterzijde van de woning behoort tot de mogelijkheden.
Daarnaast geeft de Gemeente Echt-Susteren eventueel, onder voorwaarde, de mogelijkheid om een woning te bouwen op de plek waar de stallen gesaneerd worden.
Verdere uitwerking en uitvoering van de wijziging van het bestemmingsplan dient in overleg met de Gemeente Echt-Susteren plaats te vinden.
Indeling woning:
Via de voordeur treedt u de woning binnen in een ruime hal met schoonmetselwerkwanden uitgevoerd met steenstrips en een vloer met leisteen tegels. In de hal bevindt zich de meterkast en trapopgang naar de eerste verdieping. Vanuit de hal is er tevens toegang tot de 2 aansluitende kelders met een oppervlakte van ca 8 m² en 10 m² en is er doorgang naar de woonkamer.
De L-vormige woonkamer beschikt over een elektrische haard met schouw deze tezamen met de houten balken voor een landelijke sfeer zorgt. De woonkamer is afgewerkt met een parketvloer van donker hardhout en de muren zijn voorzien van stucwerk. De grote raampartijen zorgen bovendien voor veel natuurlijke lichtinval. Vanuit de woonkamer is via een tussenportaal het separaat toilet en de badkamer bereikbaar en is er toegang naar de keuken.
De keuken (2018) heeft een rechte opstelling en is voorzien van diverse inbouwapparatuur; koelkast, vaatwasser, spoelbak, 4-pits inductiekookplaat en afzuigkap (allen van het merk Etna). Vanuit de keuken is een ruime bijkeuken bereikbaar voorzien van een keukenblokje en twee bergkasten. De bijkeuken heeft een achterom naar het overdekt terras.
De toiletruimte met staand closet is half betegeld. De badkamer is geheel betegeld en beschikt over een douchecabine met een douchepaneel met massagespots en wastafel met meubel.
Vanuit de keuken is een ruime bijkeuken bereikbaar voorzien van een keukenblokje en twee bergkasten. De bijkeuken heeft een achterom naar het overdekt terras.
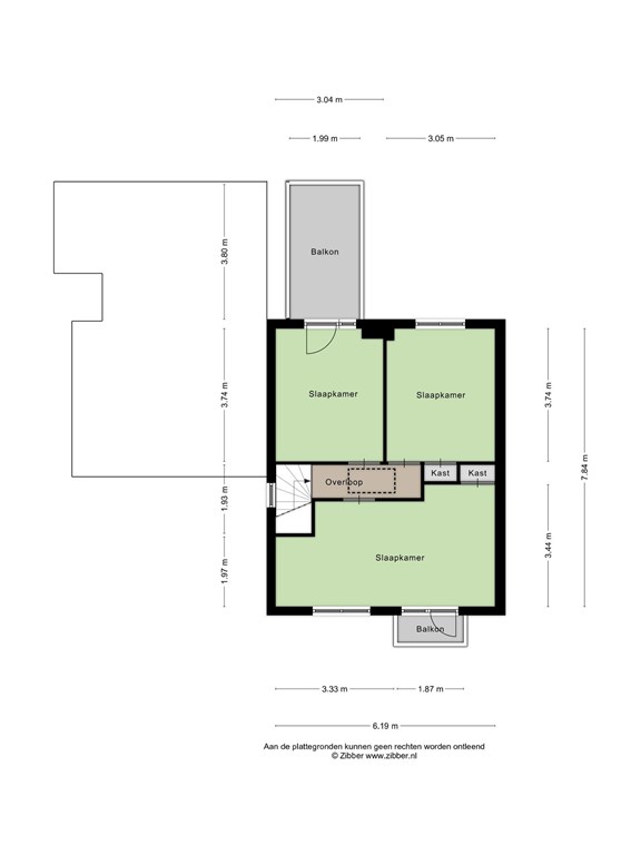
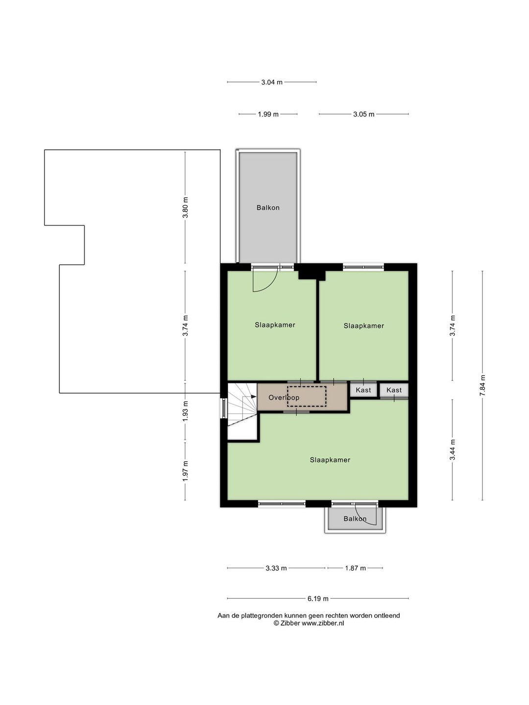
De overloop is voorzien van een laminaatvloer en de wanden zijn afgewerkt met schoonmetselwerkwanden uitgevoerd met steenstrips. Vanuit de overloop is er toegang tot drie slaapkamers met een oppervlakte van ca 15 m², 16 m² en 24 m². De slaapkamers zijn voorzien van behangwanden met een laminaatvloer. Twee slaapkamers zijn voorzien van een inbouwkast en één slaapkamer heeft toegang tot het dakterras.
De locatie is aan de voorzijde voorzien van een gazon en is volledig omheind met mooi sierhekwerk en haag met diverse toegangspoorten. Aan de voorzijde heeft u tevens toegang tot de parkeerplaatsen en de loods. Achter het woonhuis bevindt zich nog een mooie overdekte buitenruimte/terras carpoort (ca. 12m x 4m) incl. afsluitbare ruimte voor de tuinmeubels (ca. 4m x 4m).
Omschrijving bedrijfsgebouwen
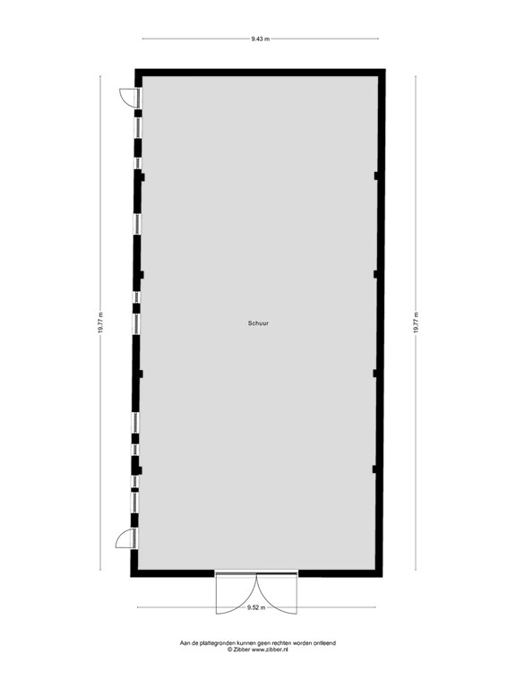
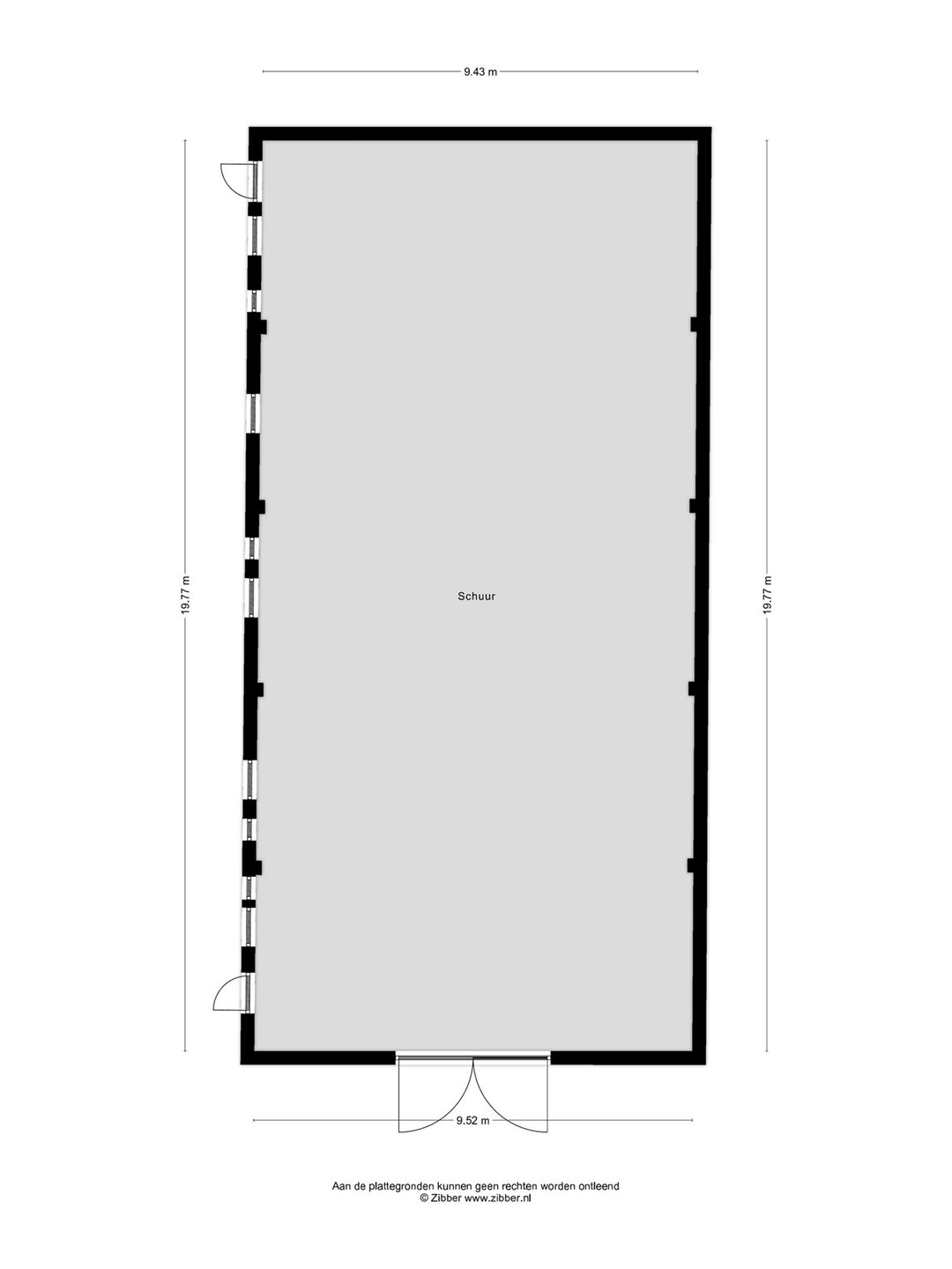
Loods
Op het perceel is aan de rechterzijde van de woning een ontzettend mooie loods aanwezig van ca. 20m x 10m met een goothoogte van ca. 2,50m en een nokhoogte van ca. 4,55m. De loods is 7 jaar (2015) geleden voorzien van geheel nieuwe dak- en wandbeplating en tevens is er in dezelfde periode een nieuwe betonvloer gestort, deze geheel is gevlinderd. De loods heeft een toegang middels 2 sandwichpanelen schuifdeuren van ca. 3m x 3,25m (bxh), daarnaast zijn er nog 2 loopdeuren aanwezig deze allen goed afsluitbaar zijn. De loods is voorzien van voldoende raampartijen en in de loods is zowel 220volt als krachtstroom aanwezig.
2 voormalige pluimveestallen
Op het perceel zijn aan de linkerzijde van de woning 2 voormalige pluimveestallen aanwezig deze op dit moment in gebruik zijn voor opslag. De eerste pluimveestal heeft een afmeting van ca. 44m x 14m (lxb) met een nokhoogte van ca. 4,07m en een goothoogte van ca. 1,80m. De tweede pluimveestal heeft een afmeting van ca. 51m x 12m (lxb), de nokhoogte is ca. 3,85m en de goothoogte is ca. 1,98m. Het dak is voorzien van asbesthoudende golfplaten. Beide stallen hebben een eigen toegang aan de weg en zijn zowel bij de woning te betrekken als afzonderlijk naast de woning te exploiteren.
Omgeving:
Koningsbosch is een kerkdorp gelegen binnen de gemeente Echt-Susteren, in het midden van Limburg, tevens direct gelegen aan de Duitse grens. Het dorp Koningsbosch voorziet in dagelijkse voorzieningen in combinatie met het nabijgelegen Echt en de diverse kerkdorpen in de gemeente Selfkant (DE). Daarnaast zijn Sittard-Geleen, de regio Parkstad, Roermond en Weert op korte afstand gelegen en goed bereikbaar door de uitvals- en snelwegen A73, A2 en de N297 en N274 (via Selfkant).
Het dorp beschikt over een basisschool en diverse verenigingen als een scouting, voetbalvereniging en tennisvereniging.
In het buitengebied van Koningsbosch op een mooie landelijke locatie is deze vrijstaande woning met loods en twee voormalige pluimveestallen gelegen. Eventueel is het onder voorwaarde, in overleg met de Gemeente Echt-Susteren, mogelijk om de twee voormalige pluimveestallen te slopen en een 2de woonhuis (bouwkavel) op locatie te realiseren. De gehele locatie dient dan naar de bestemming ‘Wonen’ te worden omgezet en de vrijstaande loods kan hierbij blijven behouden, de correspondentie hierover is via ons kantoor beschikbaar. De locatie biedt vele mogelijkheden om te ontwikkelen en voor de liefhebber van landelijk wonen of de (agrarische) zzp-er die op zoek is naar bedrijfsruimte bij zijn woning. De woning met gebouwen is gelegen op een kavel van maar liefst ca. 5.000 m², het perceel dient nog kadastraal te worden gesplitst.
De vrijstaande woning is gebouwd in een traditionele stijl en beschikt over een ruime woonkamer met open haard, een leefkeuken met veelzijdige bijkeuken en een badkamer op de begane grond. De verdieping is voorzien van drie ruime slaapkamers. Achter de woning is een fraai tuinhuis met overkapping gelegen, een ideale buitenruimte. De locatie is aan de achterzijde geheel vrij gelegen met een uitzicht op de landerijen waardoor dit een perfecte plek is om te kunnen genieten van het landelijke leven.
Op de locatie rust momenteel een agrarische bestemming. In overleg met de Gemeente Echt-Susteren is het mogelijk om de bestemming op de locatie te wijzigen naar 'wonen'. Om de bestemming te wijzigen geldt de voorwaarde dat de twee pluimveestallen gesaneerd/gesloopt dienen te worden. Het behoudt van de loods aan de rechterzijde van de woning behoort tot de mogelijkheden.
Daarnaast geeft de Gemeente Echt-Susteren eventueel, onder voorwaarde, de mogelijkheid om een woning te bouwen op de plek waar de stallen gesaneerd worden.
Verdere uitwerking en uitvoering van de wijziging van het bestemmingsplan dient in overleg met de Gemeente Echt-Susteren plaats te vinden.
Indeling woning:
Via de voordeur treedt u de woning binnen in een ruime hal met schoonmetselwerkwanden uitgevoerd met steenstrips en een vloer met leisteen tegels. In de hal bevindt zich de meterkast en trapopgang naar de eerste verdieping. Vanuit de hal is er tevens toegang tot de 2 aansluitende kelders met een oppervlakte van ca 8 m² en 10 m² en is er doorgang naar de woonkamer.
De L-vormige woonkamer beschikt over een elektrische haard met schouw deze tezamen met de houten balken voor een landelijke sfeer zorgt. De woonkamer is afgewerkt met een parketvloer van donker hardhout en de muren zijn voorzien van stucwerk. De grote raampartijen zorgen bovendien voor veel natuurlijke lichtinval. Vanuit de woonkamer is via een tussenportaal het separaat toilet en de badkamer bereikbaar en is er toegang naar de keuken.
De keuken (2018) heeft een rechte opstelling en is voorzien van diverse inbouwapparatuur; koelkast, vaatwasser, spoelbak, 4-pits inductiekookplaat en afzuigkap (allen van het merk Etna). Vanuit de keuken is een ruime bijkeuken bereikbaar voorzien van een keukenblokje en twee bergkasten. De bijkeuken heeft een achterom naar het overdekt terras.
De toiletruimte met staand closet is half betegeld. De badkamer is geheel betegeld en beschikt over een douchecabine met een douchepaneel met massagespots en wastafel met meubel.
Vanuit de keuken is een ruime bijkeuken bereikbaar voorzien van een keukenblokje en twee bergkasten. De bijkeuken heeft een achterom naar het overdekt terras.
De overloop is voorzien van een laminaatvloer en de wanden zijn afgewerkt met schoonmetselwerkwanden uitgevoerd met steenstrips. Vanuit de overloop is er toegang tot drie slaapkamers met een oppervlakte van ca 15 m², 16 m² en 24 m². De slaapkamers zijn voorzien van behangwanden met een laminaatvloer. Twee slaapkamers zijn voorzien van een inbouwkast en één slaapkamer heeft toegang tot het dakterras.
De locatie is aan de voorzijde voorzien van een gazon en is volledig omheind met mooi sierhekwerk en haag met diverse toegangspoorten. Aan de voorzijde heeft u tevens toegang tot de parkeerplaatsen en de loods. Achter het woonhuis bevindt zich nog een mooie overdekte buitenruimte/terras carpoort (ca. 12m x 4m) incl. afsluitbare ruimte voor de tuinmeubels (ca. 4m x 4m).
Omschrijving bedrijfsgebouwen
Loods
Op het perceel is aan de rechterzijde van de woning een ontzettend mooie loods aanwezig van ca. 20m x 10m met een goothoogte van ca. 2,50m en een nokhoogte van ca. 4,55m. De loods is 7 jaar (2015) geleden voorzien van geheel nieuwe dak- en wandbeplating en tevens is er in dezelfde periode een nieuwe betonvloer gestort, deze geheel is gevlinderd. De loods heeft een toegang middels 2 sandwichpanelen schuifdeuren van ca. 3m x 3,25m (bxh), daarnaast zijn er nog 2 loopdeuren aanwezig deze allen goed afsluitbaar zijn. De loods is voorzien van voldoende raampartijen en in de loods is zowel 220volt als krachtstroom aanwezig.
2 voormalige pluimveestallen
Op het perceel zijn aan de linkerzijde van de woning 2 voormalige pluimveestallen aanwezig deze op dit moment in gebruik zijn voor opslag. De eerste pluimveestal heeft een afmeting van ca. 44m x 14m (lxb) met een nokhoogte van ca. 4,07m en een goothoogte van ca. 1,80m. De tweede pluimveestal heeft een afmeting van ca. 51m x 12m (lxb), de nokhoogte is ca. 3,85m en de goothoogte is ca. 1,98m. Het dak is voorzien van asbesthoudende golfplaten. Beide stallen hebben een eigen toegang aan de weg en zijn zowel bij de woning te betrekken als afzonderlijk naast de woning te exploiteren.
Omgeving:
Koningsbosch is een kerkdorp gelegen binnen de gemeente Echt-Susteren, in het midden van Limburg, tevens direct gelegen aan de Duitse grens. Het dorp Koningsbosch voorziet in dagelijkse voorzieningen in combinatie met het nabijgelegen Echt en de diverse kerkdorpen in de gemeente Selfkant (DE). Daarnaast zijn Sittard-Geleen, de regio Parkstad, Roermond en Weert op korte afstand gelegen en goed bereikbaar door de uitvals- en snelwegen A73, A2 en de N297 en N274 (via Selfkant).
Het dorp beschikt over een basisschool en diverse verenigingen als een scouting, voetbalvereniging en tennisvereniging.
Kenmerken
| Overdracht | |
|---|---|
| Referentienummer | 68059/36593 |
| Vraagprijs | € 675.000,- k.k. |
| Laatste wijziging | Woensdag 19 maart 2025 |
| Bouw | |
|---|---|
| Type object | ALV overig |
| Soort bouw | Bestaande bouw |
| Oppervlaktes en inhoud | |
|---|---|
| Perceeloppervlakte | 50 a |