Verkocht: Janslust, 5812 AT Heide
| Type object | Losse grond |
|---|
| Status | Verkocht |
|---|
Beschrijving
Wij bieden u een mooi gelegen perceel cultuurgrond aan, gelegen aan de Janslust te Heide. Het perceel is goed toegankelijk middels de verharde weg vanuit de Janslust en is geschikt voor de teelt van diverse soorten akkerbouw- en tuinbouwgewassen of boomteelt.
De omgeving kenmerkt zich door een agrarisch buitengebied met agrarische gronden en natuur.
Kadastrale situatie:
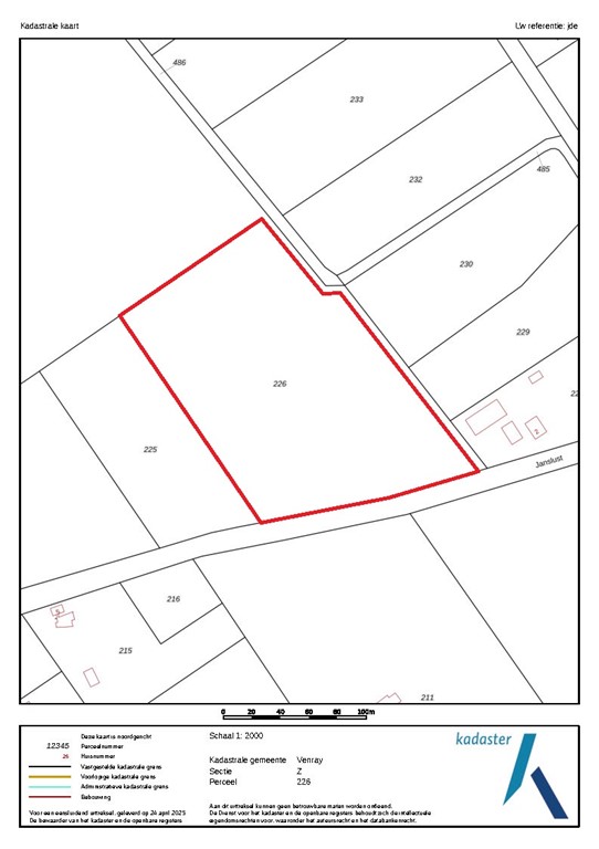
Gemeente Venray, sectie Z, nummer 226, totaal groot: 2.75.20 ha
Bodem en gebruik:
De grondsoort betreft zandgrond.
Teeltplan laatste 3 jaar:
2023: Gerst
2024: Mais
2025: Bieten
Bijzonderheden:
- Het perceel is verpacht tot 31-12-2025 en wordt daarna vrij van pacht en gebruik opgeleverd.
- Het jachtrecht is verhuurd.
Bestemmingsplan:
Het perceel is gelegen binnen het bestemmingsplan 'Buitengebied Venray 2010', gemeente Venray, onherroepelijk vastgesteld d.d. 14-12-2010 en heeft de volgende bestemmingen:
- Enkelbestemming 'Agrarisch'
- Dubbelbestemming 'Waarde - Archeologie - 2'
- Gebiedsaanduidingen:
. Luchtvaartverkeerzone
. Reconstructiewetzone - verwevingsgebied
Verkoopprocedure:
Het perceel wordt verkocht ‘per inschrijving’. Het inschrijfformulier met bijbehorende voorwaarden kunnen worden opgevraagd bij de makelaar.
Het volledige ingevulde en ondertekende inschrijfformulier dient uiterlijk woensdag 15 oktober 2025 vóór 13.00 uur ingeleverd te worden bij Arvalis Kantoor Venlo, Villafloraweg 1 Venlo, of per e-mail gericht aan info@arvalis.nl. Binnen 5 werkdagen zal de bieder(s) geïnformeerd worden of het perceel hem gegund is. Gunning geschiedt onder voorbehoud van goedkeuring door verkoper.
Aanvaarding:
Levering januari 2026
Voor meer informatie kunt u contact opnemen met:
John Derix
06 20958074
jderix@arvalis.nl
De omgeving kenmerkt zich door een agrarisch buitengebied met agrarische gronden en natuur.
Kadastrale situatie:
Gemeente Venray, sectie Z, nummer 226, totaal groot: 2.75.20 ha
Bodem en gebruik:
De grondsoort betreft zandgrond.
Teeltplan laatste 3 jaar:
2023: Gerst
2024: Mais
2025: Bieten
Bijzonderheden:
- Het perceel is verpacht tot 31-12-2025 en wordt daarna vrij van pacht en gebruik opgeleverd.
- Het jachtrecht is verhuurd.
Bestemmingsplan:
Het perceel is gelegen binnen het bestemmingsplan 'Buitengebied Venray 2010', gemeente Venray, onherroepelijk vastgesteld d.d. 14-12-2010 en heeft de volgende bestemmingen:
- Enkelbestemming 'Agrarisch'
- Dubbelbestemming 'Waarde - Archeologie - 2'
- Gebiedsaanduidingen:
. Luchtvaartverkeerzone
. Reconstructiewetzone - verwevingsgebied
Verkoopprocedure:
Het perceel wordt verkocht ‘per inschrijving’. Het inschrijfformulier met bijbehorende voorwaarden kunnen worden opgevraagd bij de makelaar.
Het volledige ingevulde en ondertekende inschrijfformulier dient uiterlijk woensdag 15 oktober 2025 vóór 13.00 uur ingeleverd te worden bij Arvalis Kantoor Venlo, Villafloraweg 1 Venlo, of per e-mail gericht aan info@arvalis.nl. Binnen 5 werkdagen zal de bieder(s) geïnformeerd worden of het perceel hem gegund is. Gunning geschiedt onder voorbehoud van goedkeuring door verkoper.
Aanvaarding:
Levering januari 2026
Voor meer informatie kunt u contact opnemen met:
John Derix
06 20958074
jderix@arvalis.nl
Kenmerken
| Overdracht | |
|---|---|
| Referentienummer | 68059/38416 |
| Status | Verkocht |
| Laatste wijziging | Maandag 3 november 2025 |
| Bouw | |
|---|---|
| Type object | Losse grond |
| Soort bouw | Bestaande bouw |