Te koop: Eibergsestraat 213, 7481 HJ Haaksbergen
€ 1.175.000,- k.k.
| Type object | Paardenbedrijf |
|---|
Beschrijving
Paardenhouderij op toplocatie
Waar Overijssel en Gelderland samenkomen ligt tussen de plaatsen Haaksbergen en Eibergen deze paardenhouderij, Stal ’t Langeloscheveld. Dit veelzijdige object biedt uitgebreide faciliteiten, waaronder ruime stallingsmogelijkheden een grote trainingshal, een ruime woning en uitbreidingsmogelijkheden op ruim 4,6 ha.
Uitstekende ligging en goede ontsluiting
Deze paardenhouderij met uitrijmogelijkheden is gelegen in een rustige omgeving met vrij uitzicht over de omliggende landerijen in het paardenhart van Nederland. Slechts op een steenworp afstand liggen de op- en afritten van de N18 met verbindingen naar A33/A1 en A12, waardoor de Twentse steden Hengelo en Enschede en ook bijvoorbeeld Doetinchem, Arnhem en andere streken vlot te bereiken zijn.
Faciliteiten
. Moderne trainingshal – Recent gebouwd en voorzien van hoogwaardige trainingsfaciliteiten.
. Buitenrijbak – Geschikt voor diverse disciplines binnen de paardensport.
. Ruime stalaccommodatie – Met stallingsplaatsen voor meerdere paarden.
. Werktuigenberging – Ruime opslag voor materiaal en voer.
. Uitbreidingsmogelijkheden – Vergunning aanwezig voor het realiseren van een extra hal van 25 x 40 meter.
De bijbehorende bedrijfswoning biedt veel ruimte aan woongenot in een landelijke setting en maakt dit object geschikt voor de combinatie van wonen en werken.
Een unieke kans
Dankzij de uitstekende locatie, goede voorzieningen en uitbreidingsmogelijkheden is dit object een unieke kans voor ondernemers in de paardenhouderij. De bestemming is ruim en biedt goede exploitatiemogelijkheden.
De bedrijfswoning
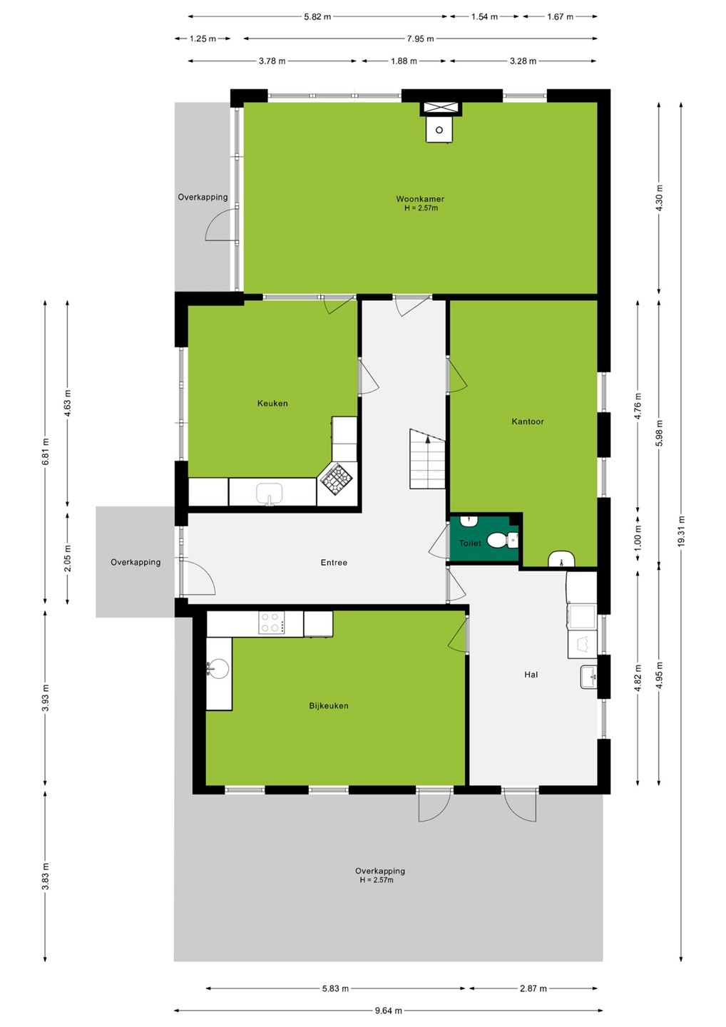
Deze ruime bedrijfswoning is gelegen vooraan op het erf en heeft een inhoud van ongeveer 853 m³ met een gebruiksoppervlak wonen van circa 226 m². Oorspronkelijk gebouwd in 1930, werd het pand in 1977 en 1980 uitgebreid en gerenoveerd. De woning is voorzien van zowel houten- als kunststofkozijnen, is deels voorzien van dak muur- en glasisolatie en kent een energielabel D. Verwarming en warm water via een gasgestookte Remeha Calenta ketel uit 2018, die eveneens warm water levert. De woning is voorzien van 24 zonnepanelen met een capaciteit van 415 Wp via een lease/huurkoopcontract.
Indeling van de woning:
- Begane grond: entree, kantoor, berging, bijkeuken, keuken, woonkamer met schouw en gaskachel
- Eerste verdieping: overloop, 4 slaapkamers waarvan 1 met balkon, badkamer met wastafel, bad, toilet, en aansluiting voor douche, bergruimte
De bedrijfsopstallen
Op het erf staan de volgende gebouwen en bouwwerken:
Trainingshal (2012/2013):
De moderne trainingshal met geïsoleerd dak is voorzien van 10 stallen (3,5 x 4m), een wasplaats, een kantine, fourage opslag en een binnenbak van 20 x 40 meter. Deze hal is goed uitgerust in een prima staat van onderhoud en zeer geschikt om uw paarden optimaal te verzorgen en te trainen. De gebruiksoppervlakte bedraagt ruim 1000 m2.
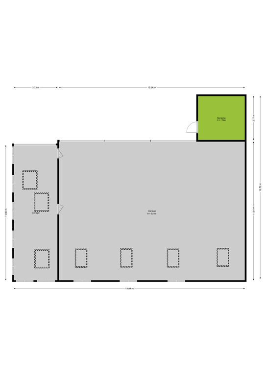
Werktuigenberging (gebruiksoppervlakte 251 m²):
Dit bouwwerk is rond 1980 opgetrokken uit gemetselde gevels (halfsteens) met stalen spanten met vrije overspanning als dragers voor de dakconstructie. De ruimte is voorzien van een betonvloer en voorzien van een overheaddeur, 2 schuifdeuren en kent een doorrijhoogte van circa 3,5 meter. Aan dit gebouw is naderhand een afsluitbare (fiets)berging gebouwd. Een deel van het gebouw is ingericht als garage en werkplaats welk deel is voorzien van dakisolatie.
Stallencomplex:
Twee geschakelde schuren met aanbouw uit de periode 1970 - 1980, welke thans ingericht is met 12 stuks paardenboxen, zadelkamer, toilet, berging en opslag. Dit bouwwerk is deels onderkelderd ten behoeve van drijfmestopslag. De conditie van dit bouwwerk als geheel is matig en verdient het nodige onderhoud. Nieuwbouw behoort overigens ook tot de mogelijkheden. De totale gebruiksoppervlakte bedraagt circa 715 m2.
Schöpke:
Een klassiek opgebouwde stal uit 1949 met latere uitbreiding welke is voorzien van 5 ruime stallen en 2 ponystallen. De gebruiksopppervlakte bedraagt circa 99 m2.
Betonnen mestsilo:
Achterop het erf staat een mestsilo met een capaciteit van 665 m³ met een (gekeurde) kunststofafdekking.
Erf, buitenbak en cultuurgrond
Het erf is via een oprijlaan vanaf de Eibergsestraat te bereiken. Deels is dit met een wederzijdse erfdienstbaarheid met de buren. Het eigen deel is verhard evenals het overgrote deel van het erf. Aangrenzend aan het erf liggen verschillende weilanden met zelfdrinkers en afrasteringen, zodat er ruime uitloopmogelijkheden zijn voor de paarden. Uiteraard kunnen deze ook gebruikt worden voor voederwinning.
Naast de rijhal bevindt zich een ruime buitenbak van 850 m², die ideaal is voor het trainen van paarden in de buitenlucht.
Bestemming / gebruik
Binnen het omgevingsplan zijn voor deze locatie de plannen Bestemmingsplan Buitengebied Haaksbergen, partiële herziening Eibergsestraat 213 en het plan Buitengebied Haaksbergen van kracht waarin voor dit object de volgende bestemmingen zijn aangeduid: Ter hoogte van het erf: Enkelbestemming: Sport – Manege met de dubbelbestemming: Waarde – Hoge archeologische verwachting. Voor de agrarische gronden: Agrarisch met waarden: Landschap.
De regels geven diverse mogelijkheden voor het gebruik van dit object, waaronder het geven van lessen, pensionstalling, horeca en B&B. Voor gedetailleerde informatie kunt u terecht bij de gemeente Haaksbergen of het Omgevingsloket.
Nutsvoorzieningen
De woning is voorzien van de volgende nutsvoorzieningen, water, gas, elektra, glasvezel en gemeentelijk riool.
Milieu / NB vergunning (provincie Gelderland en Overijssel)
In 2012 / 2013 is er een NB vergunning afgegeven voor:
20 schapen / 30 volwassen paarden (3 jaar en ouder) / 45 paarden in opfok (jonger dan 3 jaar)
Uitstekende ligging in het buitengebied van Haaksbergen
Deze paardenhouderij is gelegen in het landschappelijk fraaie buitengebied van Haaksbergen, omgeven door uitgestrekte landerijen en een prachtig groen landschap. Hier geniet u van rust, ruimte en optimale privacy, terwijl alle belangrijke voorzieningen binnen handbereik liggen.
Dankzij de centrale ligging tussen Haaksbergen en Eibergen zijn winkels, scholen, zorgvoorzieningen, sportfaciliteiten en horecagelegenheden binnen 10 minuten bereikbaar. De nabijgelegen N18 is binnen enkele minuten te bereiken en vormt een uitstekende verbinding naar steden als Enschede, Hengelo, Doetinchem en Arnhem/Duitsland.
Bent u op zoek naar een unieke combinatie van wonen en werken in een landelijke omgeving? Deze paardenhouderij met vele ruiterpaden in de omgeving, onder andere naar het Assinkbos en Buurserveen, biedt u alle ruimte en faciliteiten om uw passie voor paarden te combineren met een comfortabel buitenleven.
Deze presentatie is informatief en geheel vrijblijvend. Tekeningen, maten, oppervlakte en inhoud zijn indicatief, hieraan kunnen geen rechten worden ontleend. De uitgebreide brochure is op aanvraag verkrijgbaar.
Waar Overijssel en Gelderland samenkomen ligt tussen de plaatsen Haaksbergen en Eibergen deze paardenhouderij, Stal ’t Langeloscheveld. Dit veelzijdige object biedt uitgebreide faciliteiten, waaronder ruime stallingsmogelijkheden een grote trainingshal, een ruime woning en uitbreidingsmogelijkheden op ruim 4,6 ha.
Uitstekende ligging en goede ontsluiting
Deze paardenhouderij met uitrijmogelijkheden is gelegen in een rustige omgeving met vrij uitzicht over de omliggende landerijen in het paardenhart van Nederland. Slechts op een steenworp afstand liggen de op- en afritten van de N18 met verbindingen naar A33/A1 en A12, waardoor de Twentse steden Hengelo en Enschede en ook bijvoorbeeld Doetinchem, Arnhem en andere streken vlot te bereiken zijn.
Faciliteiten
. Moderne trainingshal – Recent gebouwd en voorzien van hoogwaardige trainingsfaciliteiten.
. Buitenrijbak – Geschikt voor diverse disciplines binnen de paardensport.
. Ruime stalaccommodatie – Met stallingsplaatsen voor meerdere paarden.
. Werktuigenberging – Ruime opslag voor materiaal en voer.
. Uitbreidingsmogelijkheden – Vergunning aanwezig voor het realiseren van een extra hal van 25 x 40 meter.
De bijbehorende bedrijfswoning biedt veel ruimte aan woongenot in een landelijke setting en maakt dit object geschikt voor de combinatie van wonen en werken.
Een unieke kans
Dankzij de uitstekende locatie, goede voorzieningen en uitbreidingsmogelijkheden is dit object een unieke kans voor ondernemers in de paardenhouderij. De bestemming is ruim en biedt goede exploitatiemogelijkheden.
De bedrijfswoning
Deze ruime bedrijfswoning is gelegen vooraan op het erf en heeft een inhoud van ongeveer 853 m³ met een gebruiksoppervlak wonen van circa 226 m². Oorspronkelijk gebouwd in 1930, werd het pand in 1977 en 1980 uitgebreid en gerenoveerd. De woning is voorzien van zowel houten- als kunststofkozijnen, is deels voorzien van dak muur- en glasisolatie en kent een energielabel D. Verwarming en warm water via een gasgestookte Remeha Calenta ketel uit 2018, die eveneens warm water levert. De woning is voorzien van 24 zonnepanelen met een capaciteit van 415 Wp via een lease/huurkoopcontract.
Indeling van de woning:
- Begane grond: entree, kantoor, berging, bijkeuken, keuken, woonkamer met schouw en gaskachel
- Eerste verdieping: overloop, 4 slaapkamers waarvan 1 met balkon, badkamer met wastafel, bad, toilet, en aansluiting voor douche, bergruimte
De bedrijfsopstallen
Op het erf staan de volgende gebouwen en bouwwerken:
Trainingshal (2012/2013):
De moderne trainingshal met geïsoleerd dak is voorzien van 10 stallen (3,5 x 4m), een wasplaats, een kantine, fourage opslag en een binnenbak van 20 x 40 meter. Deze hal is goed uitgerust in een prima staat van onderhoud en zeer geschikt om uw paarden optimaal te verzorgen en te trainen. De gebruiksoppervlakte bedraagt ruim 1000 m2.
Werktuigenberging (gebruiksoppervlakte 251 m²):
Dit bouwwerk is rond 1980 opgetrokken uit gemetselde gevels (halfsteens) met stalen spanten met vrije overspanning als dragers voor de dakconstructie. De ruimte is voorzien van een betonvloer en voorzien van een overheaddeur, 2 schuifdeuren en kent een doorrijhoogte van circa 3,5 meter. Aan dit gebouw is naderhand een afsluitbare (fiets)berging gebouwd. Een deel van het gebouw is ingericht als garage en werkplaats welk deel is voorzien van dakisolatie.
Stallencomplex:
Twee geschakelde schuren met aanbouw uit de periode 1970 - 1980, welke thans ingericht is met 12 stuks paardenboxen, zadelkamer, toilet, berging en opslag. Dit bouwwerk is deels onderkelderd ten behoeve van drijfmestopslag. De conditie van dit bouwwerk als geheel is matig en verdient het nodige onderhoud. Nieuwbouw behoort overigens ook tot de mogelijkheden. De totale gebruiksoppervlakte bedraagt circa 715 m2.
Schöpke:
Een klassiek opgebouwde stal uit 1949 met latere uitbreiding welke is voorzien van 5 ruime stallen en 2 ponystallen. De gebruiksopppervlakte bedraagt circa 99 m2.
Betonnen mestsilo:
Achterop het erf staat een mestsilo met een capaciteit van 665 m³ met een (gekeurde) kunststofafdekking.
Erf, buitenbak en cultuurgrond
Het erf is via een oprijlaan vanaf de Eibergsestraat te bereiken. Deels is dit met een wederzijdse erfdienstbaarheid met de buren. Het eigen deel is verhard evenals het overgrote deel van het erf. Aangrenzend aan het erf liggen verschillende weilanden met zelfdrinkers en afrasteringen, zodat er ruime uitloopmogelijkheden zijn voor de paarden. Uiteraard kunnen deze ook gebruikt worden voor voederwinning.
Naast de rijhal bevindt zich een ruime buitenbak van 850 m², die ideaal is voor het trainen van paarden in de buitenlucht.
Bestemming / gebruik
Binnen het omgevingsplan zijn voor deze locatie de plannen Bestemmingsplan Buitengebied Haaksbergen, partiële herziening Eibergsestraat 213 en het plan Buitengebied Haaksbergen van kracht waarin voor dit object de volgende bestemmingen zijn aangeduid: Ter hoogte van het erf: Enkelbestemming: Sport – Manege met de dubbelbestemming: Waarde – Hoge archeologische verwachting. Voor de agrarische gronden: Agrarisch met waarden: Landschap.
De regels geven diverse mogelijkheden voor het gebruik van dit object, waaronder het geven van lessen, pensionstalling, horeca en B&B. Voor gedetailleerde informatie kunt u terecht bij de gemeente Haaksbergen of het Omgevingsloket.
Nutsvoorzieningen
De woning is voorzien van de volgende nutsvoorzieningen, water, gas, elektra, glasvezel en gemeentelijk riool.
Milieu / NB vergunning (provincie Gelderland en Overijssel)
In 2012 / 2013 is er een NB vergunning afgegeven voor:
20 schapen / 30 volwassen paarden (3 jaar en ouder) / 45 paarden in opfok (jonger dan 3 jaar)
Uitstekende ligging in het buitengebied van Haaksbergen
Deze paardenhouderij is gelegen in het landschappelijk fraaie buitengebied van Haaksbergen, omgeven door uitgestrekte landerijen en een prachtig groen landschap. Hier geniet u van rust, ruimte en optimale privacy, terwijl alle belangrijke voorzieningen binnen handbereik liggen.
Dankzij de centrale ligging tussen Haaksbergen en Eibergen zijn winkels, scholen, zorgvoorzieningen, sportfaciliteiten en horecagelegenheden binnen 10 minuten bereikbaar. De nabijgelegen N18 is binnen enkele minuten te bereiken en vormt een uitstekende verbinding naar steden als Enschede, Hengelo, Doetinchem en Arnhem/Duitsland.
Bent u op zoek naar een unieke combinatie van wonen en werken in een landelijke omgeving? Deze paardenhouderij met vele ruiterpaden in de omgeving, onder andere naar het Assinkbos en Buurserveen, biedt u alle ruimte en faciliteiten om uw passie voor paarden te combineren met een comfortabel buitenleven.
Deze presentatie is informatief en geheel vrijblijvend. Tekeningen, maten, oppervlakte en inhoud zijn indicatief, hieraan kunnen geen rechten worden ontleend. De uitgebreide brochure is op aanvraag verkrijgbaar.
Kenmerken
| Overdracht | |
|---|---|
| Referentienummer | 68090/36986 |
| Vraagprijs | € 1.175.000,- k.k. |
| Laatste wijziging | Vrijdag 25 april 2025 |
| Bouw | |
|---|---|
| Type object | Paardenbedrijf |
| Soort bouw | Bestaande bouw |