Verkocht: Easthimmerwei 23, 8773 KP Folsgare
Prijs op aanvraag
| Type object | ALV overig |
|---|
| Status | Verkocht |
|---|
Beschrijving
In het sfeervolle Friese landschap, net buiten het dorp Folsgare, bevindt zich deze bijzondere traditionele stelpboerderij, oorspronkelijk gebouwd rond 1800. De boerderij ademt historie, karakter en landelijke rust - een unieke plek voor paardenliefhebbers. Het bedrijf leent zich ook uitstekend als bijvoorbeeld jongvee locatie.
Het bedrijf bestaat uit onder andere een stelpboerderij met woningdeel, traditionele schuur en bijschuur, paardenstal, rijhal, voormalige ligboxenstal en schuurtje. Het geheel ligt op een royaal perceel van totaal ruim 7 hectare.
De bestemming is agrarisch met de aanduiding “gebruiksgerichte paardenhouderij”.
De boerderij is gelegen aan de Folsgearster Opfeart en via de Alde Rien is met bijvoorbeeld een sloep het open vaarwater bereikbaar naar Sneek en omgeving.
Inlichtingen bij de heer Eelke Turkstra 06-51260942.
Woningdeel
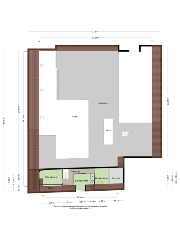
De begane grond beschikt over een sfeervolle woonkamer, een ruime woonkeuken, een dwarsgang, badkamer, slaapkamer, werkkamer en toilet. Op de eerste verdieping bevinden zich een overloop en drie slaapkamers en een berging.
Traditionele schuur en bijschuur
De traditionele schuur is opgetrokken uit houten gebinten en steens muren. Het dak is gedekt met asbestvrije golfplaten. De vloer is van beton. De vloer van de hooivakken is van leem. De schuur is ingericht met paardenstallen en voeropslag. De traditionele schuurdeuren geven toegang tot de opslag. De schuur heeft een afmeting van ca. 18 x 19 meter. Op het dak van de schuur liggen 22 zonnepanelen (2019) met een jaarlijkse opbrengst van ca. 6.000 kWh. De zonnepanelen worden gehuurd voor ca. € 100,- per maand. Na ca. 10 jaar zijn deze panelen over te nemen voor € 50,- per paneel.
De bijschuur is eveneens opgetrokken uit steens muren. De spanten zijn van hout en staal (vrije overspanning). Het achterdak is gedekt met asbestvrije golfplaten en de zijkanten zijn gedekt met dakpannen. De vloer is van beton. Er is toegang tot de bijschuur vanuit de traditionele schuur en er is een overheaddeur aanwezig voor toegang van buitenaf. De bijschuur heeft een afmeting van ca. 23,5 x 8 meter.
Ligboxenstal
De voormalige ligboxenstal is gebouwd in 1983 en is opgetrokken uit steens muren, stalen spanten met ondersteuning en houten topgevels. Het dak is gedekt met asbest golfplaten. De vloer is deels voorzien van roosters en deels van beton. De stal is ter hoogte van de roosters onderkelderd. De oorspronkelijke stalinrichting is verwijderd. De stal is nu ingericht met 14 paardenboxen en is onderkelderd met een mestkelder van ca. 900 m³. Voor het overige deel is de stal nog vrij in te delen. Zowel aan de voor- als aan de achterkant is er toegang tot de stal middels schuifdeuren met een inrijhoogte van 3,95 meter. Verder aanwezig zijn een zadelkamer, toilet en een wasserij.
Paardenstal
De paardenstal is gebouwd in 2009 en is opgetrokken uit een vrij overspannen houten spantwerk. De stal heeft een afmeting van ca. 27 x 20 meter. Zowel de gevels als het dak zijn voorzien van damwand. De vloer is deels uitgevoerd in beton en deels zijn er roosters aanwezig zonder put. De stal is ingericht met 28 paardenboxen.
Rijhal
Aansluitend aan de paardenstal is de rijhal gebouwd (bouwjaar 2013). Deze heeft een afmeting van ca. 41 x 20 meter. Zowel de gevels als het dak zijn voorzien van damwand. Eén zijgevel is voorzien van een elektrisch bedienbaar zeil. Aan de voorzijde is er toegang tot de rijhal middels een elektrisch bedienbare overheaddeur. De bodem van de rijhal is voorzien van zand met tapijtvlokken.
Overig
Er is een stapmolen aanwezig met een verharde ondergrond. Er is geen afrastering bij aanwezig.
Er is een buitenbak aanwezig met een afmeting van 20 x 40 m. De buitenbak is voorzien van verlichting. Voor zover bekend is de bak niet gedraineerd.
Er is nog een eenvoudige schuur aanwezig met een oppervlak van ca. 70 m². De schuur is opgetrokken uit half steens muren en houten spantwerk. Het dak is gedekt met asbest golfplaten en blikken platen. De schuur is in twee delen opgebouwd. In deel 1 zijn twee paardenboxen te vinden. De vloer is van beton. Het tweede deel is ingericht als opslag. Hier is een leemvloer aanwezig. Achter deze eenvoudige schuur is nog een houten berging aanwezig met een oppervlak van ca. 112 m². Deze schuur is opgetrokken uit stalen spanten en de gevels zijn bekleed met hout. Het dak is gedekt met golfplaten.
Verder zijn op het erf 2 paddocks aanwezig welke zijn voorzien van drainage.
Vergunde plaatsen conform Wnb-vergunning
Het bedrijf heeft een Wnb-vergunning voor het houden van 100 stuks melkkoeien en 76 stuks jongvee tot 2 jaar. De vergunning is afgegeven op 12 februari 2016.
Op basis van de huidige regelgeving kunnen er paarden worden gehouden.
Energielabel F aanwezig.
Overige informatie
- De volledige omschrijving van het object kunt u leze in de brochure. Deze kunt u opvragen via info@agrivastgoed.nl.
- Alle op de koop vallende kosten komen voor rekening van de koper, hieronder begrepen zijn de notariskosten, inschrijvingen openbare registers en overdrachtsbelasting.
- Aspirant kopers kunnen aan dit schrijven geen enkel recht verbinden van voorkeur of eerste koop.
- Tot zekerheid voor de nakoming van zijn verplichtingen is koper verplicht een aanbetaling bij de aangegeven notaris te storten, zijnde 10% van de hoofdsom (incl. eventuele roerende zaken).
Onderstaande clausules zullen in de koopovereenkomst worden opgenomen.
Asbestclausule
Aan koper is bekend dat in de onroerende zaak asbest is verwerkt (dakbedekking ligboxenstal en eenvoudige schuur). Echter is niet uit te sluiten dat zich enig ander asbest-houdend materiaal in de onroerende zaak bevindt. In geval deze materialen aanwezig zijn, vrijwaart koper verkoper voor alle aansprakelijkheid die uit de aanwezigheid van enig asbest in de onroerende zaak, kan voortvloeien. Bij (eventuele) verwijdering van asbesthoudende materialen dienen op grond van milieuwetgeving speciale maatregelen te worden genomen. Koper verklaart hiermee bekend te zijn.
Ouderdomsclausule
Koper verklaart ermee bekend te zijn, dat de gebouwen meer dan 16 jaar oud zijn, wat betekent dat de eisen die aan de bouwkwaliteit gesteld mogen worden aanzienlijk lager liggen dan bij nieuwe gebouwen. Tenzij de verkoper de kwaliteit hiervan gegarandeerd heeft, staat hij niet in voor de kwaliteit van de funderingen, de vloeren, de leidingen, voor de elektriciteit, water en gas, de riolering en de eventuele aanwezigheid van enig ongedierte c.q. schimmels (zoals bijvoorbeeld houtworm, boktor, zwam etc.) en de eventuele aanwezigheid van doorslaand en/of optrekkend vocht. Bouwkundige kwaliteitsgebreken worden geacht niet belemmerend te werken op het in de koopovereenkomst door verkoper aangegeven normale gebruik zijnde agrarisch bedrijf met (bedrijfs)woning.
Clausule Agrarische bestemming
Koper is ermee bekend dat op het moment van het sluiten van de koopovereenkomst het object een bestemming Agrarisch heeft. Koper verklaart dat hij zich op de hoogte heeft gesteld van het vigerende bestemmingsplan, (indien van toepassing) de keur van het waterschap en overige publiekrechtelijke regelgeving en gepubliceerde voorstellen tot wijziging van die bestemming dan wel het gebruik.
Vraagprijs: € 1.050.000 k.k.
Aanvaarding en betaling: in overleg.
Verrekening zakelijke lasten: datum eigendomsoverdracht.
Bezichtiging: uitsluitend op afspraak via de makelaar.
Voor meer informatie en/of het plannen van bezichtigingen kunt u contact opnemen met de heer Eelke Turkstra van Agri Vastgoed Makelaars en Taxateurs 06-51260942 / 058-2849171 of via info@agrivastgoed.nl.
Hoewel bij het maken van deze informatie de meest uiterste zorg is nagestreefd kan aan deze informatie geen rechten worden ontleend. Wijzigingen zijn te allen tijde voorbehouden aan de verkoper.
Het bedrijf bestaat uit onder andere een stelpboerderij met woningdeel, traditionele schuur en bijschuur, paardenstal, rijhal, voormalige ligboxenstal en schuurtje. Het geheel ligt op een royaal perceel van totaal ruim 7 hectare.
De bestemming is agrarisch met de aanduiding “gebruiksgerichte paardenhouderij”.
De boerderij is gelegen aan de Folsgearster Opfeart en via de Alde Rien is met bijvoorbeeld een sloep het open vaarwater bereikbaar naar Sneek en omgeving.
Inlichtingen bij de heer Eelke Turkstra 06-51260942.
Woningdeel
De begane grond beschikt over een sfeervolle woonkamer, een ruime woonkeuken, een dwarsgang, badkamer, slaapkamer, werkkamer en toilet. Op de eerste verdieping bevinden zich een overloop en drie slaapkamers en een berging.
Traditionele schuur en bijschuur
De traditionele schuur is opgetrokken uit houten gebinten en steens muren. Het dak is gedekt met asbestvrije golfplaten. De vloer is van beton. De vloer van de hooivakken is van leem. De schuur is ingericht met paardenstallen en voeropslag. De traditionele schuurdeuren geven toegang tot de opslag. De schuur heeft een afmeting van ca. 18 x 19 meter. Op het dak van de schuur liggen 22 zonnepanelen (2019) met een jaarlijkse opbrengst van ca. 6.000 kWh. De zonnepanelen worden gehuurd voor ca. € 100,- per maand. Na ca. 10 jaar zijn deze panelen over te nemen voor € 50,- per paneel.
De bijschuur is eveneens opgetrokken uit steens muren. De spanten zijn van hout en staal (vrije overspanning). Het achterdak is gedekt met asbestvrije golfplaten en de zijkanten zijn gedekt met dakpannen. De vloer is van beton. Er is toegang tot de bijschuur vanuit de traditionele schuur en er is een overheaddeur aanwezig voor toegang van buitenaf. De bijschuur heeft een afmeting van ca. 23,5 x 8 meter.
Ligboxenstal
De voormalige ligboxenstal is gebouwd in 1983 en is opgetrokken uit steens muren, stalen spanten met ondersteuning en houten topgevels. Het dak is gedekt met asbest golfplaten. De vloer is deels voorzien van roosters en deels van beton. De stal is ter hoogte van de roosters onderkelderd. De oorspronkelijke stalinrichting is verwijderd. De stal is nu ingericht met 14 paardenboxen en is onderkelderd met een mestkelder van ca. 900 m³. Voor het overige deel is de stal nog vrij in te delen. Zowel aan de voor- als aan de achterkant is er toegang tot de stal middels schuifdeuren met een inrijhoogte van 3,95 meter. Verder aanwezig zijn een zadelkamer, toilet en een wasserij.
Paardenstal
De paardenstal is gebouwd in 2009 en is opgetrokken uit een vrij overspannen houten spantwerk. De stal heeft een afmeting van ca. 27 x 20 meter. Zowel de gevels als het dak zijn voorzien van damwand. De vloer is deels uitgevoerd in beton en deels zijn er roosters aanwezig zonder put. De stal is ingericht met 28 paardenboxen.
Rijhal
Aansluitend aan de paardenstal is de rijhal gebouwd (bouwjaar 2013). Deze heeft een afmeting van ca. 41 x 20 meter. Zowel de gevels als het dak zijn voorzien van damwand. Eén zijgevel is voorzien van een elektrisch bedienbaar zeil. Aan de voorzijde is er toegang tot de rijhal middels een elektrisch bedienbare overheaddeur. De bodem van de rijhal is voorzien van zand met tapijtvlokken.
Overig
Er is een stapmolen aanwezig met een verharde ondergrond. Er is geen afrastering bij aanwezig.
Er is een buitenbak aanwezig met een afmeting van 20 x 40 m. De buitenbak is voorzien van verlichting. Voor zover bekend is de bak niet gedraineerd.
Er is nog een eenvoudige schuur aanwezig met een oppervlak van ca. 70 m². De schuur is opgetrokken uit half steens muren en houten spantwerk. Het dak is gedekt met asbest golfplaten en blikken platen. De schuur is in twee delen opgebouwd. In deel 1 zijn twee paardenboxen te vinden. De vloer is van beton. Het tweede deel is ingericht als opslag. Hier is een leemvloer aanwezig. Achter deze eenvoudige schuur is nog een houten berging aanwezig met een oppervlak van ca. 112 m². Deze schuur is opgetrokken uit stalen spanten en de gevels zijn bekleed met hout. Het dak is gedekt met golfplaten.
Verder zijn op het erf 2 paddocks aanwezig welke zijn voorzien van drainage.
Vergunde plaatsen conform Wnb-vergunning
Het bedrijf heeft een Wnb-vergunning voor het houden van 100 stuks melkkoeien en 76 stuks jongvee tot 2 jaar. De vergunning is afgegeven op 12 februari 2016.
Op basis van de huidige regelgeving kunnen er paarden worden gehouden.
Energielabel F aanwezig.
Overige informatie
- De volledige omschrijving van het object kunt u leze in de brochure. Deze kunt u opvragen via info@agrivastgoed.nl.
- Alle op de koop vallende kosten komen voor rekening van de koper, hieronder begrepen zijn de notariskosten, inschrijvingen openbare registers en overdrachtsbelasting.
- Aspirant kopers kunnen aan dit schrijven geen enkel recht verbinden van voorkeur of eerste koop.
- Tot zekerheid voor de nakoming van zijn verplichtingen is koper verplicht een aanbetaling bij de aangegeven notaris te storten, zijnde 10% van de hoofdsom (incl. eventuele roerende zaken).
Onderstaande clausules zullen in de koopovereenkomst worden opgenomen.
Asbestclausule
Aan koper is bekend dat in de onroerende zaak asbest is verwerkt (dakbedekking ligboxenstal en eenvoudige schuur). Echter is niet uit te sluiten dat zich enig ander asbest-houdend materiaal in de onroerende zaak bevindt. In geval deze materialen aanwezig zijn, vrijwaart koper verkoper voor alle aansprakelijkheid die uit de aanwezigheid van enig asbest in de onroerende zaak, kan voortvloeien. Bij (eventuele) verwijdering van asbesthoudende materialen dienen op grond van milieuwetgeving speciale maatregelen te worden genomen. Koper verklaart hiermee bekend te zijn.
Ouderdomsclausule
Koper verklaart ermee bekend te zijn, dat de gebouwen meer dan 16 jaar oud zijn, wat betekent dat de eisen die aan de bouwkwaliteit gesteld mogen worden aanzienlijk lager liggen dan bij nieuwe gebouwen. Tenzij de verkoper de kwaliteit hiervan gegarandeerd heeft, staat hij niet in voor de kwaliteit van de funderingen, de vloeren, de leidingen, voor de elektriciteit, water en gas, de riolering en de eventuele aanwezigheid van enig ongedierte c.q. schimmels (zoals bijvoorbeeld houtworm, boktor, zwam etc.) en de eventuele aanwezigheid van doorslaand en/of optrekkend vocht. Bouwkundige kwaliteitsgebreken worden geacht niet belemmerend te werken op het in de koopovereenkomst door verkoper aangegeven normale gebruik zijnde agrarisch bedrijf met (bedrijfs)woning.
Clausule Agrarische bestemming
Koper is ermee bekend dat op het moment van het sluiten van de koopovereenkomst het object een bestemming Agrarisch heeft. Koper verklaart dat hij zich op de hoogte heeft gesteld van het vigerende bestemmingsplan, (indien van toepassing) de keur van het waterschap en overige publiekrechtelijke regelgeving en gepubliceerde voorstellen tot wijziging van die bestemming dan wel het gebruik.
Vraagprijs: € 1.050.000 k.k.
Aanvaarding en betaling: in overleg.
Verrekening zakelijke lasten: datum eigendomsoverdracht.
Bezichtiging: uitsluitend op afspraak via de makelaar.
Voor meer informatie en/of het plannen van bezichtigingen kunt u contact opnemen met de heer Eelke Turkstra van Agri Vastgoed Makelaars en Taxateurs 06-51260942 / 058-2849171 of via info@agrivastgoed.nl.
Hoewel bij het maken van deze informatie de meest uiterste zorg is nagestreefd kan aan deze informatie geen rechten worden ontleend. Wijzigingen zijn te allen tijde voorbehouden aan de verkoper.
Kenmerken
| Overdracht | |
|---|---|
| Referentienummer | 67827/39254 |
| Prijs | Prijs op aanvraag |
| Status | Verkocht |
| Laatste wijziging | Dinsdag 30 december 2025 |
| Bouw | |
|---|---|
| Type object | ALV overig |
| Soort bouw | Bestaande bouw |