Te koop: PLANTENKWEKERIJBEDRIJF op een perc.opp. van maar liefst 11.18.30 hectaren. (SUPER LOCATIE).
Randweg-Oost 19, 6021 PA Budel
€ 2.600.000,- k.k.
| Type object | Tuinbouwbedrijf, glastuinbouw |
|---|---|
| Aanvaarding | In overleg |
| Perceeloppervlakte | 111.830 m² |
|---|
Beschrijving
PLANTENKWEKERIJBEDRIJF, bestaande uit een vrijstaand woonhuis met tuinbouwloods, veldschuur met werkplaats, drie teeltondersteunende kassen, containerveld, hemelwaterbassin en verdere aanhorigheden, ondergrond, erf, tuin en landbouwgrond op een perc.opp. van maar liefst 11.18.30 hectaren. (SUPER LOCATIE)
Indeling
PLANTENKWEKERIJBEDRIJF, bestaande uit een vrijstaand woonhuis met tuinbouwloods, veldschuur met werkplaats, 3 teeltondersteunende kassen, containerveld, hemelwaterbassin en landbouwgrond op een totale huiskavel van maar liefst 11.18.30 HA. (Nagenoeg geheel bouwblok!)
Er staat ca. 8.000 m2 kas en er ligt ca. 25.000 m2 containerveld. Alle voorzieningen zijn aanwezig om te kunnen kweken.
Het bedrijf is gelegen aan de Randweg-Oost en daarmee goed ontsloten. Het ligt over breedte van circa 260 meter langs deze drukke doorgaande weg en is zodoende een ideale locatie voor huisverkoop.
BESTEMMING:
Het object is gelegen in het bestemmingsplan / Omgevingsplan “Reparatieplan Buitengebied”, van de gemeente Cranendonck, vastgesteld door de raad van deze gemeente op 13 september 2011 en deels onherroepelijk in werking. Krachtens dit bestemmingsplan / omgevingsplan is de onroerende zaak bestemd als:
Bestemmingsvlak: Agrarisch / Waarde – Archeologie.
Bouwvlak: Bouwvlak.
Gebiedsaanduiding: Reconstructiewetzone – verwervingsgebied / Wro-zone – ontheffingsgebied schuilhutten.
Functieaanduiding: Glastuinbouw.
Bouwaanduiding: Specifieke bouwaanduiding – permanente tov (teeltondersteunende voorzieningen).
PS: het vigerende bestemmingsplan biedt de mogelijkheid tot ruim een hectare ondergrond bedrijf, drie en een halve hectare kas en zes en halve hectare permanente teelt ondersteunende voorzieningen. De planregels uit het bestemmingsplan zijn te vinden in de bijlage van de verkoopbrochure.
NUTSVOORZIENINGEN:
Waterleiding; Elektriciteit (aansluiting 3x 50 Amp); Propaangastank (Benegas, tank is gehuurd); Drukriolering; Telefoon; Glasvezelinternet.
Op het bedrijf zijn in 2023 circa 48 zonnepanelen gelegd a 410 Wpiek dus met een totaal vermogen van circa 19.680 Wpiek.
De elektriciteitsinstallaties op het bedrijf zijn gekeurd in 2024.
MILIEUZAKEN EN VERGUNNINGEN:
Informatie omgevingsvergunning (milieu): Het bedrijf valt onder de regelgeving vastgesteld in het Activiteitenbesluit. Er zijn verder geen milieuvergunningen.
Informatie beregeningsvergunning: Er is wel een beregeningsput aanwezig echter daarbij geen bijbehorende beregeningsvergunning.
Verkoper beregent zodoende zijn planten veelal via recirculatie van regenwater dat wordt opgevangen en opgeslagen in het bassin naast zijn woonhuis. Het is een gesloten systeem.
OMSCHRIJVING VAN HET OBJECT:
Woonhuis:
Het woonhuis is gebouwd in 1980 en heeft een inhoud van ca. 925 m3 (incl. kelder van 30 m3). Zie verder onze uitgebreide verkoopbrochure.
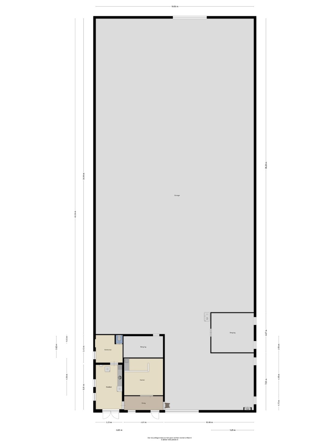
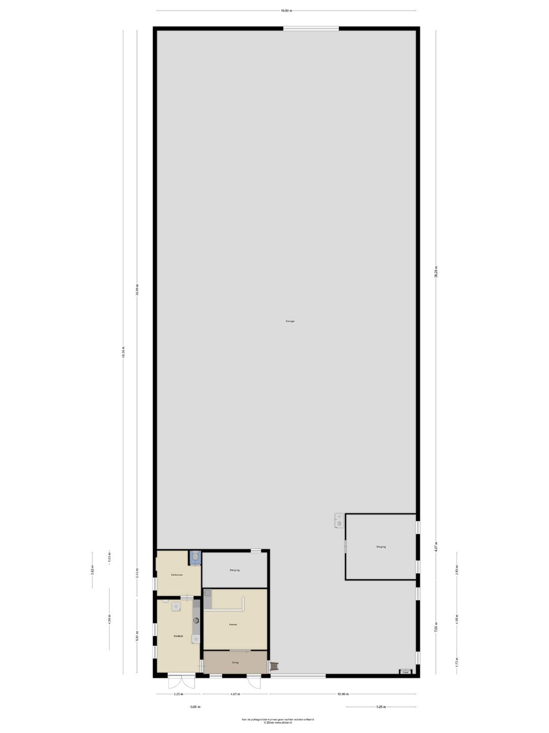
Indeling begane grond: woonkamer met tegelvloer, schoonmetselwerk en stucwerk wanden, stucwerk plafond; woonkeuken met tegelvloer, betegelde wanden, stucwerk plafond. De keuken is voorzien van een hoekopstelling keukeninrichting en toegang tot grote kelder van circa 30 m3; hal met vaste hardhouten trap naar eerste verdiepingsvloer, tegelvloer, schoonmetselwerk wand, stucwerk plafond en meterkast; slaapkamer met tegelvloer, schoonmetselwerk en stucwerk wand, stucwerk plafond; kantoor (voormalige garage) met tegelvloer, metselwerk wand, stucwerk plafond; berging; entree via halletje tussen de keuken en bergingsruimte, hier bevindt zich het toilet en een douche. Beide sanitaire ruimtes zijn betegeld en de douche is voorzien van een wasbak.
Indeling eerste verdieping: overloop; drie (3) slaapkamers; badkamer voorzien van douche, vaste wastafel en ligbad; zolderkamer; bergzolder boven de kamers op de eerste verdieping.
Opmerking: Het is een groot en praktisch ingericht woonhuis dat destijds is gebouwd met goede materialen. Volgens verkoper zijn er geen mankementen aan het huis. Het woonhuis heeft energielabel A.
Tuinbouwloods (voormalige ligboxenstal):
De tuinbouwloods is in 1979 gebouwd als ligboxenstal met een totale opp. van ca 50 m lang en 20 m breed, dus in totaal 1.000 m2.
De goothoogte is circa 2 m en de nokhoogte circa 5,75 m. De inrijhoogte van de grote elektrische roldeur in de kopgevel is circa 4,5 m.
De spouwmuren zijn opgetrokken uit bakstenen en kalkzandstenen, spantconstructie van stalen spanten met vrije overspanning, gordingen van hout, zadeldak dat is gedekt met asbestcement golfplaten met dakisolatie boven de voormalige ligboxen langs de buitenmuren, elektrische roldeur in de achtergevel met een inrijhoogte van circa 4 m waarboven de kopgevel met planken is bekleed. De tuinbouwloods heeft een gevlinderde betonvloer (dikte circa 13 centimeter met voldoende wapening) en is ingericht met enkele ruimtes zoals een kantine, kantoortje, bestrijdingsmiddelenkast. Het overgrote deel betreft een open niet geïsoleerde tuinbouwloods. De verlichting bestaat uit LED lampen. Opmerking: De tuinbouwloods is thans in gebruik als opslagruimte en werktuigenberging.
Veldschuur met werkplaats:
De veldschuur is in 1980 gebouwd met een opp. van circa 20 m breed (vier spantvakken van elk 5 m) en een diepte van 12,5 m, derhalve een totale opp. van circa 250 m2. De inrijhoogte is circa 4 m, nokhoogte circa 5,5 m en goothoogte circa 2,5 m. Een vak is ingericht als werkplaats, dus circa 62,50 m2.
De veldschuur heeft halfsteense muren van bakstenen en de werkplaats heeft spouwmuren van bakstenen en een binnenblad van kalkzandstenen.
De kapconstructie bestaat uit stalen spanten, gordingen van hout en het zadeldak is gedekt met asbest cement golfplaten. Het dak is aan de voorzijde voorzien van een dakgoot. Het werkplaatsgedeelte heeft grote schuifdeuren van hout bestaande uit twee delen. Het dak boven de werkplaats is geïsoleerd.
De vloer van de veldschuur en werkplaats zijn verhard met betonklinkers.
De veldschuur is voorzien van verlichting middels LED lampen en er ligt krachtstroom in de werkplaats.
Opmerking: De veldschuur is goed functioneel bij het bedrijf.
Teelt ondersteunende kas 1:
De oudste teeltondersteunende kas is gebouwd in 1997 met een opp. van ca. 3.300 m2.
Het betreft een zgn. “Venlokas” met een poothoogte circa 3,75 m, pootafstand van circa 4,50 m en vakbreedte van circa 6,20 m (twee kappen per vakwerkligger). In 2018 zijn de zandvloeren geëgaliseerd en voorzien van plastic. Circa 700 m2 is v.v. vloerverwarming (afstand 30 cm h.o.h.) met een cv ketel uit 1997 (vermogen 96 kw). Verder wordt de kas verwarmd middels gaskachels. De gehele kas is v.V. een beregeningsinstallatie met regenautomaat, ventilatie via elektrisch bediende uitzetramen, een nevelinstallatie in de stek kas, vijf abc bakken ten behoeve van het toevoegen van voeding aan het regenwater, betonpaden in de kas (tweemaal van gestorte beton en eenmaal van Stelcon betonplaten).
Opmerking: De kas ziet er goed onderhouden uit en is goed functioneel op het bedrijf.
Teelt ondersteunende kas 2 en 3:
In 2003 is een identieke kas gebouwd als kas 1 met een opp. van ca 1.216 m2. In 2008 is deze kas op dezelfde wijze vergroot met circa 3.396 m2.
De poothoogte, pootafstand en vak breedte is gelijk aan kas 1. Ook hier zijn de vloeren van geëgaliseerd zand en voorzien van plastic.
Deze kassen worden ook verwarmd met gaskachels.
Opmerking: Ook deze kassen zien er goed onderhouden uit en zijn goed functioneel op het bedrijf.
Resumé kassen: In totaal staat er dus een kas van circa 7.912 m2 uit 1997 / 2003 / 2008.
OVERIGE VOORZIENINGEN:
Zie onze uitgebreide verkoopbrochure.
LANDBOUWGROND:
Tot het bedrijf behoort een opp. grond van 11.18.30 HA zijnde huiskavel. Ca. 6.18.30 hectaren ligt achter het bedrijf als landbouwgrond.
Zie verder onze uitgebreide verkoopbrochure.
VERKOOPPROCEDURE:
De navolgende verkoopprocedure is opgenomen.
Het object wordt verkocht in de staat zoals die is ten tijde van de bezichtiging, nagenoeg leeg en ontruimd, inclusief eventueel op dat moment nog aanwezige roerende zaken.
BEZICHTIGING EN BIEDINGEN:
1. Elke serieuze gegadigde kan een afspraak maken om het plantenkwekerijbedrijf te bezichtigen samen met makelaar, de heer Mr. A.A.H.M. (Arjan) van Heerebeek. Na de bezichtiging zal er ruimte zijn om de aankoop met de makelaar te bespreken en vragen te stellen.
2. Biedingen kunnen per email worden gedaan op het emailadres van de makelaar tot uiterlijk woensdag 12 november 2025 tot 12.00 uur. Biedingen zullen vertrouwelijk blijven en niet ter kennis van de eigenaar worden gebracht tot genoemd moment. In de middag zullen de diverse biedingen ter kennisname van de eigenaar worden gebracht. De eigenaar zal vervolgens geheel vrij en zonder enige last beslissen met welke gegadigde(n) hij in onderhandeling gaat treden voor het plantenkwekerijbedrijf. De makelaar zal contact opnemen met betreffende gegadigden;
3. Degenen die een bod hebben uitgebracht op basis waarvan de eigenaar niet in onderhandeling wenst te treden, zullen daarover zo spoedig mogelijk worden geïnformeerd door de makelaar;
4. Zodra er een overeenkomst tot stand komt tussen de eigenaar en een bieder, zal de makelaar de koopovereenkomst opstellen en samen met partijen de datum van het gewenste notarieel transport bepalen alsmede de notaris kiezen.
BEZICHTIGING:
Mocht u nog vragen hebben of wilt u het object bezichtigen, bel rechtstreeks de heer Mr. A.A.H.M. (Arjan) van Heerebeek, te bereiken onder mobiele nummer 06 – 21 21 24 31 of via Arvalis 073 - 217 35 80. De heer Mr. A.A.H.M. (Arjan) van Heerebeek zal u rondleiden. Uiteraard kunt u voor het maken van een afspraak en al uw overige vragen ook e-mailen.
AANVAARDING: in overleg.
RICHTPRIJS: € 2.600.000,= k.k.
De koopprijs is kosten koper, dat wil zeggen dat de kosten van de overdracht van de eigendom voor rekening van koper komen. De kosten zijn: overdrachtsbelasting, notaris en kadaster.
Er staat ca. 8.000 m2 kas en er ligt ca. 25.000 m2 containerveld. Alle voorzieningen zijn aanwezig om te kunnen kweken.
Het bedrijf is gelegen aan de Randweg-Oost en daarmee goed ontsloten. Het ligt over breedte van circa 260 meter langs deze drukke doorgaande weg en is zodoende een ideale locatie voor huisverkoop.
BESTEMMING:
Het object is gelegen in het bestemmingsplan / Omgevingsplan “Reparatieplan Buitengebied”, van de gemeente Cranendonck, vastgesteld door de raad van deze gemeente op 13 september 2011 en deels onherroepelijk in werking. Krachtens dit bestemmingsplan / omgevingsplan is de onroerende zaak bestemd als:
Bestemmingsvlak: Agrarisch / Waarde – Archeologie.
Bouwvlak: Bouwvlak.
Gebiedsaanduiding: Reconstructiewetzone – verwervingsgebied / Wro-zone – ontheffingsgebied schuilhutten.
Functieaanduiding: Glastuinbouw.
Bouwaanduiding: Specifieke bouwaanduiding – permanente tov (teeltondersteunende voorzieningen).
PS: het vigerende bestemmingsplan biedt de mogelijkheid tot ruim een hectare ondergrond bedrijf, drie en een halve hectare kas en zes en halve hectare permanente teelt ondersteunende voorzieningen. De planregels uit het bestemmingsplan zijn te vinden in de bijlage van de verkoopbrochure.
NUTSVOORZIENINGEN:
Waterleiding; Elektriciteit (aansluiting 3x 50 Amp); Propaangastank (Benegas, tank is gehuurd); Drukriolering; Telefoon; Glasvezelinternet.
Op het bedrijf zijn in 2023 circa 48 zonnepanelen gelegd a 410 Wpiek dus met een totaal vermogen van circa 19.680 Wpiek.
De elektriciteitsinstallaties op het bedrijf zijn gekeurd in 2024.
MILIEUZAKEN EN VERGUNNINGEN:
Informatie omgevingsvergunning (milieu): Het bedrijf valt onder de regelgeving vastgesteld in het Activiteitenbesluit. Er zijn verder geen milieuvergunningen.
Informatie beregeningsvergunning: Er is wel een beregeningsput aanwezig echter daarbij geen bijbehorende beregeningsvergunning.
Verkoper beregent zodoende zijn planten veelal via recirculatie van regenwater dat wordt opgevangen en opgeslagen in het bassin naast zijn woonhuis. Het is een gesloten systeem.
OMSCHRIJVING VAN HET OBJECT:
Woonhuis:
Het woonhuis is gebouwd in 1980 en heeft een inhoud van ca. 925 m3 (incl. kelder van 30 m3). Zie verder onze uitgebreide verkoopbrochure.
Indeling begane grond: woonkamer met tegelvloer, schoonmetselwerk en stucwerk wanden, stucwerk plafond; woonkeuken met tegelvloer, betegelde wanden, stucwerk plafond. De keuken is voorzien van een hoekopstelling keukeninrichting en toegang tot grote kelder van circa 30 m3; hal met vaste hardhouten trap naar eerste verdiepingsvloer, tegelvloer, schoonmetselwerk wand, stucwerk plafond en meterkast; slaapkamer met tegelvloer, schoonmetselwerk en stucwerk wand, stucwerk plafond; kantoor (voormalige garage) met tegelvloer, metselwerk wand, stucwerk plafond; berging; entree via halletje tussen de keuken en bergingsruimte, hier bevindt zich het toilet en een douche. Beide sanitaire ruimtes zijn betegeld en de douche is voorzien van een wasbak.
Indeling eerste verdieping: overloop; drie (3) slaapkamers; badkamer voorzien van douche, vaste wastafel en ligbad; zolderkamer; bergzolder boven de kamers op de eerste verdieping.
Opmerking: Het is een groot en praktisch ingericht woonhuis dat destijds is gebouwd met goede materialen. Volgens verkoper zijn er geen mankementen aan het huis. Het woonhuis heeft energielabel A.
Tuinbouwloods (voormalige ligboxenstal):
De tuinbouwloods is in 1979 gebouwd als ligboxenstal met een totale opp. van ca 50 m lang en 20 m breed, dus in totaal 1.000 m2.
De goothoogte is circa 2 m en de nokhoogte circa 5,75 m. De inrijhoogte van de grote elektrische roldeur in de kopgevel is circa 4,5 m.
De spouwmuren zijn opgetrokken uit bakstenen en kalkzandstenen, spantconstructie van stalen spanten met vrije overspanning, gordingen van hout, zadeldak dat is gedekt met asbestcement golfplaten met dakisolatie boven de voormalige ligboxen langs de buitenmuren, elektrische roldeur in de achtergevel met een inrijhoogte van circa 4 m waarboven de kopgevel met planken is bekleed. De tuinbouwloods heeft een gevlinderde betonvloer (dikte circa 13 centimeter met voldoende wapening) en is ingericht met enkele ruimtes zoals een kantine, kantoortje, bestrijdingsmiddelenkast. Het overgrote deel betreft een open niet geïsoleerde tuinbouwloods. De verlichting bestaat uit LED lampen. Opmerking: De tuinbouwloods is thans in gebruik als opslagruimte en werktuigenberging.
Veldschuur met werkplaats:
De veldschuur is in 1980 gebouwd met een opp. van circa 20 m breed (vier spantvakken van elk 5 m) en een diepte van 12,5 m, derhalve een totale opp. van circa 250 m2. De inrijhoogte is circa 4 m, nokhoogte circa 5,5 m en goothoogte circa 2,5 m. Een vak is ingericht als werkplaats, dus circa 62,50 m2.
De veldschuur heeft halfsteense muren van bakstenen en de werkplaats heeft spouwmuren van bakstenen en een binnenblad van kalkzandstenen.
De kapconstructie bestaat uit stalen spanten, gordingen van hout en het zadeldak is gedekt met asbest cement golfplaten. Het dak is aan de voorzijde voorzien van een dakgoot. Het werkplaatsgedeelte heeft grote schuifdeuren van hout bestaande uit twee delen. Het dak boven de werkplaats is geïsoleerd.
De vloer van de veldschuur en werkplaats zijn verhard met betonklinkers.
De veldschuur is voorzien van verlichting middels LED lampen en er ligt krachtstroom in de werkplaats.
Opmerking: De veldschuur is goed functioneel bij het bedrijf.
Teelt ondersteunende kas 1:
De oudste teeltondersteunende kas is gebouwd in 1997 met een opp. van ca. 3.300 m2.
Het betreft een zgn. “Venlokas” met een poothoogte circa 3,75 m, pootafstand van circa 4,50 m en vakbreedte van circa 6,20 m (twee kappen per vakwerkligger). In 2018 zijn de zandvloeren geëgaliseerd en voorzien van plastic. Circa 700 m2 is v.v. vloerverwarming (afstand 30 cm h.o.h.) met een cv ketel uit 1997 (vermogen 96 kw). Verder wordt de kas verwarmd middels gaskachels. De gehele kas is v.V. een beregeningsinstallatie met regenautomaat, ventilatie via elektrisch bediende uitzetramen, een nevelinstallatie in de stek kas, vijf abc bakken ten behoeve van het toevoegen van voeding aan het regenwater, betonpaden in de kas (tweemaal van gestorte beton en eenmaal van Stelcon betonplaten).
Opmerking: De kas ziet er goed onderhouden uit en is goed functioneel op het bedrijf.
Teelt ondersteunende kas 2 en 3:
In 2003 is een identieke kas gebouwd als kas 1 met een opp. van ca 1.216 m2. In 2008 is deze kas op dezelfde wijze vergroot met circa 3.396 m2.
De poothoogte, pootafstand en vak breedte is gelijk aan kas 1. Ook hier zijn de vloeren van geëgaliseerd zand en voorzien van plastic.
Deze kassen worden ook verwarmd met gaskachels.
Opmerking: Ook deze kassen zien er goed onderhouden uit en zijn goed functioneel op het bedrijf.
Resumé kassen: In totaal staat er dus een kas van circa 7.912 m2 uit 1997 / 2003 / 2008.
OVERIGE VOORZIENINGEN:
Zie onze uitgebreide verkoopbrochure.
LANDBOUWGROND:
Tot het bedrijf behoort een opp. grond van 11.18.30 HA zijnde huiskavel. Ca. 6.18.30 hectaren ligt achter het bedrijf als landbouwgrond.
Zie verder onze uitgebreide verkoopbrochure.
VERKOOPPROCEDURE:
De navolgende verkoopprocedure is opgenomen.
Het object wordt verkocht in de staat zoals die is ten tijde van de bezichtiging, nagenoeg leeg en ontruimd, inclusief eventueel op dat moment nog aanwezige roerende zaken.
BEZICHTIGING EN BIEDINGEN:
1. Elke serieuze gegadigde kan een afspraak maken om het plantenkwekerijbedrijf te bezichtigen samen met makelaar, de heer Mr. A.A.H.M. (Arjan) van Heerebeek. Na de bezichtiging zal er ruimte zijn om de aankoop met de makelaar te bespreken en vragen te stellen.
2. Biedingen kunnen per email worden gedaan op het emailadres van de makelaar tot uiterlijk woensdag 12 november 2025 tot 12.00 uur. Biedingen zullen vertrouwelijk blijven en niet ter kennis van de eigenaar worden gebracht tot genoemd moment. In de middag zullen de diverse biedingen ter kennisname van de eigenaar worden gebracht. De eigenaar zal vervolgens geheel vrij en zonder enige last beslissen met welke gegadigde(n) hij in onderhandeling gaat treden voor het plantenkwekerijbedrijf. De makelaar zal contact opnemen met betreffende gegadigden;
3. Degenen die een bod hebben uitgebracht op basis waarvan de eigenaar niet in onderhandeling wenst te treden, zullen daarover zo spoedig mogelijk worden geïnformeerd door de makelaar;
4. Zodra er een overeenkomst tot stand komt tussen de eigenaar en een bieder, zal de makelaar de koopovereenkomst opstellen en samen met partijen de datum van het gewenste notarieel transport bepalen alsmede de notaris kiezen.
BEZICHTIGING:
Mocht u nog vragen hebben of wilt u het object bezichtigen, bel rechtstreeks de heer Mr. A.A.H.M. (Arjan) van Heerebeek, te bereiken onder mobiele nummer 06 – 21 21 24 31 of via Arvalis 073 - 217 35 80. De heer Mr. A.A.H.M. (Arjan) van Heerebeek zal u rondleiden. Uiteraard kunt u voor het maken van een afspraak en al uw overige vragen ook e-mailen.
AANVAARDING: in overleg.
RICHTPRIJS: € 2.600.000,= k.k.
De koopprijs is kosten koper, dat wil zeggen dat de kosten van de overdracht van de eigendom voor rekening van koper komen. De kosten zijn: overdrachtsbelasting, notaris en kadaster.
Kenmerken
| Overdracht | |
|---|---|
| Referentienummer | VGP3900709 |
| Vraagprijs | € 2.600.000,- k.k. |
| Aanvaarding | In overleg |
| Laatste wijziging | Maandag 15 september 2025 |
| Bouw | |
|---|---|
| Type object | Tuinbouwbedrijf, glastuinbouw |
| Grondsoort | Zand |
| Soort bouw | Bestaande bouw |
| Bouwperiode | 1980 |
| Oppervlaktes en inhoud | |
|---|---|
| Perceeloppervlakte | 11 ha 18 a 30 ca |
| Locatie | |
|---|---|
| Ligging | Aan drukke weg Buiten bebouwde kom |
| Kadastrale gegevens | |
|---|---|
| Kadastrale aanduiding | Budel K 846 |
| Perceeloppervlakte | 110.620 m² |
| Omvang | Geheel perceel |
| Eigendomsituatie | Eigen grond |
| Kadastrale aanduiding | Budel K 847 |
| Perceeloppervlakte | 1.210 m² |
| Omvang | Geheel perceel |
| Eigendomsituatie | Eigen grond |
| Bedrijfswoning | |
|---|---|
| Type object | Vrijstaande woning |
| Inhoud | 925 m³ |
| Aantal bouwlagen | 2 |
| Aantal kamers | 0 (waarvan 4 slaapkamers) |