Verkocht: Manegebedrijf in het Kuinderbos nabij Bant in de Noordoostpolder
Schoterweg 5, 8314 PX Bant
€ 699.000,- k.k.
| Type object | Paardenbedrijf, manage |
|---|---|
| Aanvaarding | In overleg |
| Perceeloppervlakte | 9.068 m² |
|---|---|
| Status | Verkocht |
Beschrijving
Uniek manegebedrijf in het Kuinderbos in de Noordoostpolder.
Een droomlocatie voor paardenliefhebbers en natuurmensen!
Gelegen in de rust en stilte van het bos, bieden wij een bijzondere kans aan voor paardenliefhebbers die op zoek zijn naar een droomlocatie. Dit gezellige manegebedrijf en pensionstal met vrijstaande woning, paardenstallen, binnenmanege (met open gevel), royale buitenmanege en overige faciliteiten biedt alles wat nodig is om een paarden(sport)centrum te realiseren of voort te zetten. De combinatie van de prachtige natuur, de vele kilometers ruiterpaden en de voorzieningen op het erf maakt dit tot een ideale plek.
Deze locatie geeft de perfecte balans tussen wonen en werken met paarden. Het hoort bij het dorp Bant. Voor de uitgebreide voorzieningen kunt u terrecht in de omliggende grotere plaatsen Emmeloord, Wolvega en Lemmer.
Een droomlocatie voor paardenliefhebbers en natuurmensen!
Gelegen in de rust en stilte van het bos, bieden wij een bijzondere kans aan voor paardenliefhebbers die op zoek zijn naar een droomlocatie. Dit gezellige manegebedrijf en pensionstal met vrijstaande woning, paardenstallen, binnenmanege (met open gevel), royale buitenmanege en overige faciliteiten biedt alles wat nodig is om een paarden(sport)centrum te realiseren of voort te zetten. De combinatie van de prachtige natuur, de vele kilometers ruiterpaden en de voorzieningen op het erf maakt dit tot een ideale plek.
Deze locatie geeft de perfecte balans tussen wonen en werken met paarden. Het hoort bij het dorp Bant. Voor de uitgebreide voorzieningen kunt u terrecht in de omliggende grotere plaatsen Emmeloord, Wolvega en Lemmer.
Indeling
Bedrijfswoning:
De vrijstaande woning (bouwjaar 1998 en energielabel B) biedt comfort en ruimte voor een gezin. Een prachtige woonplek met omliggende natuur en veel privacy.
Indeling: Entree, hal, toilet, keuken met openverbinding naar de woonkamer met speksteenkachel. Bijkeuken met achterentree, kelder en de opstelling van de ketel heteluchtverwarming en het witgoed.
De gehele beganegrond is voorzien van vloerverwarming.
Via de houten trap en mooie vide komt u op de verdieping met 3 slaapkamers, een badkamer met vloerverwarming, ligbad, toilet en douche. De zolder is bereikbaar via een vlizotrap.
Direct naast de woning staat een handig bijgebouw te gebruiken als studiekamer, extra slaapkamer, hobbykamer of thuiskantoor. Vaste trap aanwezig naar de verdieping.
Paardenstallen:
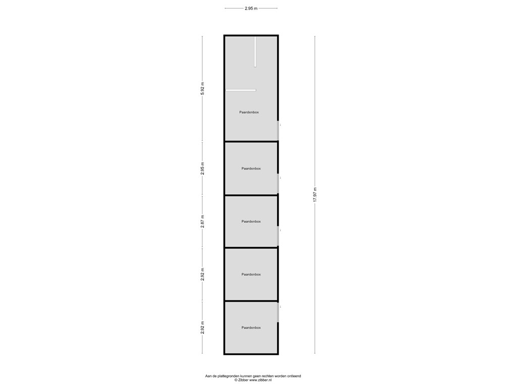
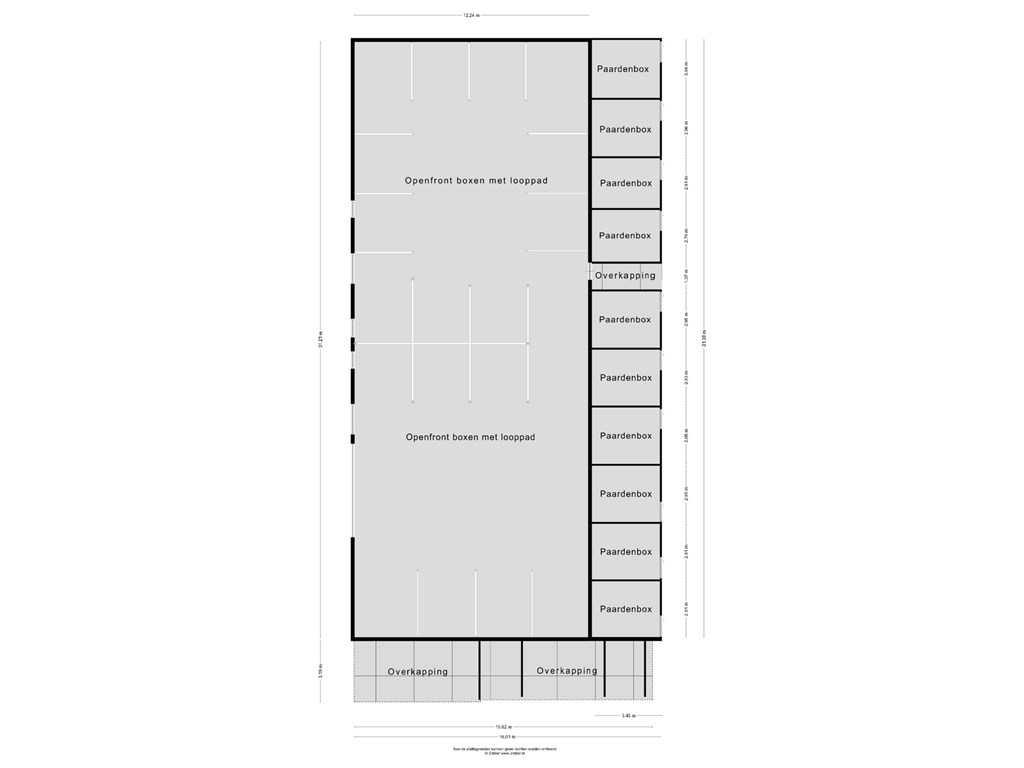
De stallen bieden plaats voor 35 ponys,- en paarden, met deels openfront boxen (loopstallen in de loods) en deels gesloten boxen buiten de loods. Overdekte poetsplaats is aanwezig. Verder is er voldoende opslagruimte voor voer en overig materiaal.
Binnenmanege (20m. x 40m.):
De binnenmanege / rijhal uit het bouwjaar 2016, met open zijgevels zorgt voor een ideale trainingsomgeving ongeacht het weer. Dit maakt het mogelijk om het hele jaar door te trainen en te lessen in een lichte en luchtige omgeving. Vanuit de binnenmanege is er mooi overzicht over het erf.
Buitenmanege (20m. x 60m.):
De royale gedraineerde buitenmanege is perfect voor diverse activiteiten zoals de lessen en trainingen. Vanuit de buitenbak loopt u zo met uw paard of pony het bospad op. Wie wil dit niet? Naast de buitenbak zijn nog enkele paddocks gerealiseerd.
Overige gebouwen:
Naast de binnenrijhal staat de kantine met houtkachel, bar, keuken, toilet en zolder. Deze biedt een gezellige plek om te ontspannen na een leuke les, training, bosrit of wedstrijd. Daarnaast is er in de overige schuur op het erf voldoende opslagruimte voor de zadels en hoofdstellen en overig materiaal. Aan het einde van deze schuur is nog een kantoortje met toilet, douche en extra kamer aanwezig. Deze ruimte kan ook als appartementje gebruikt worden.
Erfpachtrecht en opstalrecht:
De gebouwen op dit erf staan op erfgrond van Staatsbosbeheer in de vorm van erfpachtrecht en opstalrecht.
Verderop in deze brochure een korte omschrijving hiervan.
De vrijstaande woning (bouwjaar 1998 en energielabel B) biedt comfort en ruimte voor een gezin. Een prachtige woonplek met omliggende natuur en veel privacy.
Indeling: Entree, hal, toilet, keuken met openverbinding naar de woonkamer met speksteenkachel. Bijkeuken met achterentree, kelder en de opstelling van de ketel heteluchtverwarming en het witgoed.
De gehele beganegrond is voorzien van vloerverwarming.
Via de houten trap en mooie vide komt u op de verdieping met 3 slaapkamers, een badkamer met vloerverwarming, ligbad, toilet en douche. De zolder is bereikbaar via een vlizotrap.
Direct naast de woning staat een handig bijgebouw te gebruiken als studiekamer, extra slaapkamer, hobbykamer of thuiskantoor. Vaste trap aanwezig naar de verdieping.
Paardenstallen:
De stallen bieden plaats voor 35 ponys,- en paarden, met deels openfront boxen (loopstallen in de loods) en deels gesloten boxen buiten de loods. Overdekte poetsplaats is aanwezig. Verder is er voldoende opslagruimte voor voer en overig materiaal.
Binnenmanege (20m. x 40m.):
De binnenmanege / rijhal uit het bouwjaar 2016, met open zijgevels zorgt voor een ideale trainingsomgeving ongeacht het weer. Dit maakt het mogelijk om het hele jaar door te trainen en te lessen in een lichte en luchtige omgeving. Vanuit de binnenmanege is er mooi overzicht over het erf.
Buitenmanege (20m. x 60m.):
De royale gedraineerde buitenmanege is perfect voor diverse activiteiten zoals de lessen en trainingen. Vanuit de buitenbak loopt u zo met uw paard of pony het bospad op. Wie wil dit niet? Naast de buitenbak zijn nog enkele paddocks gerealiseerd.
Overige gebouwen:
Naast de binnenrijhal staat de kantine met houtkachel, bar, keuken, toilet en zolder. Deze biedt een gezellige plek om te ontspannen na een leuke les, training, bosrit of wedstrijd. Daarnaast is er in de overige schuur op het erf voldoende opslagruimte voor de zadels en hoofdstellen en overig materiaal. Aan het einde van deze schuur is nog een kantoortje met toilet, douche en extra kamer aanwezig. Deze ruimte kan ook als appartementje gebruikt worden.
Erfpachtrecht en opstalrecht:
De gebouwen op dit erf staan op erfgrond van Staatsbosbeheer in de vorm van erfpachtrecht en opstalrecht.
Verderop in deze brochure een korte omschrijving hiervan.
Bijzonderheden
Is het uw droom om een manegebedrijf over te nemen en/of het werken met paarden? Dan is dit uw kans. Deze manege in het bos is een unieke gelegenheid voor iedereen die op zoek is naar een professionele en sfeervolle locatie voor hun paarden. De combinatie van de locatie, de voorzieningen, de natuurlijke omgeving en de goede bereikbaarheid maken dit tot een plek waar paardenliefhebbers zich kunnen ontwikkelen, ontspannen en genieten van hun passie. Een prachtige kans!
Alles voor u op een rijtje:
-Vrijstaande woning met naastgelegen bijgebouw te gebruitken als extra slaapkamer, kantoor, hobbyruimte o.i.d.
-Woning heeft energielabel B.
-Appartementje aanwezig met toilet, douche en 2 kamers, wordt op dit moment gebruikt als kantoortje.
-Schuur (zadelkamer, opslag en kantoor) van hout met asbestdak. Kantine van hout en dakbeschot asbest.
-Op dit moment ongeveer 200 lessende ruiters per week.
-Er worden ieder jaar diverse evenementen gehouden, zoals ponykampen, boscross, buitenritten, Ride & Run, etc.
-De buitenbak (20m. x 60m.). Om de 2 meter gedraineerd voorzien van kokos om de drains. Gerenoveerd in 2021. Nieuwe omheining 2024.
-Er zijn diverse paddocks aanwezig.
-De openfront boxen (loopstallen) in de grote loods kunnen met een shovel o.i.d. worden uigemest.
-De lichtplaten dak grote loods zijn in april 2025 vernieuwd.
-De meeste drinkbakjes voorzien van een rondpompsysteem tegen het bevriezen.
-Parkeerplaats aanwezig.
-Paarden met harnachement (zadels, hoofdstellen, dekken, e.d.) zijn evetueel over te nemen in overleg.
-Inboedel kantine plus houtkachel en witgoed over te nemen in overleg.
-Machines, zitmaaier en gereedschap over te nemen in overleg.
-Voervoorraad over te nemen in overleg.
-Sproeisysteem tuin/heg over te nemen in overleg.
-Bouwjaar: woning 1998, paardenloods met boxen 2000, kantine 1966, lange houten schuur 1975 (inpandig kantoor 1990), rijhal plus overige boxen 2016.
-Gelegen nabij natuur,- en recreatiegebied Wellerwaard en Eigenwijze.
-Veel mooie routes door het bos voor wandelaars, fietsers en ruiters.
-Vanaf het erf zo het bos in, wie wil dit niet?
-Nieuwe bedrijvigheden koper vallen onder goedkeuring van Staatsbosbeheer.
-Controleer bij de gemeente Noordoostpolder of uw plannen bestemmingstechnisch mogen.
-Canon bedrag per maand wordt door SBB nog herzien, vraag voor meer info de makelaar.
Naderende uitleg over recht van erfpacht en opstal:
Erfpachtrecht: Dit is een recht waarmee de eigenaar van de grond (in dit geval Staatsbosbeheer) een ander persoon of bedrijf toestaat om het erf voor een lange periode te gebruiken. De erfpachter (dit is de eigenaar/verkoper van de gebouwen) betaalt een maandelijkse vergoeding aan Staatsbosbeheer, de eigenaar van de grond.
Opstalrecht: Dit recht geeft de eigenaar van een gebouw het recht om dat gebouw op (of in) de grond van een ander te hebben. Dit betekent dat de verkoper eigenaar is van de gebouwen, maar de grond waar ze op staan, behoort tot de eigenaar van de grond (Staatsbosbeheer).
Verkoper: De verkoper bezit dus de gebouwen zelf plus het recht van erfpacht en opstal. Dit betekent dat als de gebouwen te koop worden aangeboden, de koper -naast de woning met gebouwen- ook het erfpachtrecht en opstalrecht zal overnemen, maar niet de grond zelf.
Als u specifieke informatie nodig heeft of wilt u een bezichtiging inplannen, neem dan contact op met de makelaar Henriette Meinsma, tel: 06-203 208 38.
U bent van harte welkom!
Alles voor u op een rijtje:
-Vrijstaande woning met naastgelegen bijgebouw te gebruitken als extra slaapkamer, kantoor, hobbyruimte o.i.d.
-Woning heeft energielabel B.
-Appartementje aanwezig met toilet, douche en 2 kamers, wordt op dit moment gebruikt als kantoortje.
-Schuur (zadelkamer, opslag en kantoor) van hout met asbestdak. Kantine van hout en dakbeschot asbest.
-Op dit moment ongeveer 200 lessende ruiters per week.
-Er worden ieder jaar diverse evenementen gehouden, zoals ponykampen, boscross, buitenritten, Ride & Run, etc.
-De buitenbak (20m. x 60m.). Om de 2 meter gedraineerd voorzien van kokos om de drains. Gerenoveerd in 2021. Nieuwe omheining 2024.
-Er zijn diverse paddocks aanwezig.
-De openfront boxen (loopstallen) in de grote loods kunnen met een shovel o.i.d. worden uigemest.
-De lichtplaten dak grote loods zijn in april 2025 vernieuwd.
-De meeste drinkbakjes voorzien van een rondpompsysteem tegen het bevriezen.
-Parkeerplaats aanwezig.
-Paarden met harnachement (zadels, hoofdstellen, dekken, e.d.) zijn evetueel over te nemen in overleg.
-Inboedel kantine plus houtkachel en witgoed over te nemen in overleg.
-Machines, zitmaaier en gereedschap over te nemen in overleg.
-Voervoorraad over te nemen in overleg.
-Sproeisysteem tuin/heg over te nemen in overleg.
-Bouwjaar: woning 1998, paardenloods met boxen 2000, kantine 1966, lange houten schuur 1975 (inpandig kantoor 1990), rijhal plus overige boxen 2016.
-Gelegen nabij natuur,- en recreatiegebied Wellerwaard en Eigenwijze.
-Veel mooie routes door het bos voor wandelaars, fietsers en ruiters.
-Vanaf het erf zo het bos in, wie wil dit niet?
-Nieuwe bedrijvigheden koper vallen onder goedkeuring van Staatsbosbeheer.
-Controleer bij de gemeente Noordoostpolder of uw plannen bestemmingstechnisch mogen.
-Canon bedrag per maand wordt door SBB nog herzien, vraag voor meer info de makelaar.
Naderende uitleg over recht van erfpacht en opstal:
Erfpachtrecht: Dit is een recht waarmee de eigenaar van de grond (in dit geval Staatsbosbeheer) een ander persoon of bedrijf toestaat om het erf voor een lange periode te gebruiken. De erfpachter (dit is de eigenaar/verkoper van de gebouwen) betaalt een maandelijkse vergoeding aan Staatsbosbeheer, de eigenaar van de grond.
Opstalrecht: Dit recht geeft de eigenaar van een gebouw het recht om dat gebouw op (of in) de grond van een ander te hebben. Dit betekent dat de verkoper eigenaar is van de gebouwen, maar de grond waar ze op staan, behoort tot de eigenaar van de grond (Staatsbosbeheer).
Verkoper: De verkoper bezit dus de gebouwen zelf plus het recht van erfpacht en opstal. Dit betekent dat als de gebouwen te koop worden aangeboden, de koper -naast de woning met gebouwen- ook het erfpachtrecht en opstalrecht zal overnemen, maar niet de grond zelf.
Als u specifieke informatie nodig heeft of wilt u een bezichtiging inplannen, neem dan contact op met de makelaar Henriette Meinsma, tel: 06-203 208 38.
U bent van harte welkom!
Kenmerken
| Overdracht | |
|---|---|
| Referentienummer | VGP0300190 |
| Vraagprijs | € 699.000,- k.k. |
| Status | Verkocht |
| Aanvaarding | In overleg |
| Laatste wijziging | Zaterdag 1 november 2025 |
| Bouw | |
|---|---|
| Type object | Paardenbedrijf, manage |
| Grondsoort | Zand |
| Soort bouw | Bestaande bouw |
| Bouwperiode | 1998 |
| Oppervlaktes en inhoud | |
|---|---|
| Perceeloppervlakte | 90 a 68 ca |
| Locatie | |
|---|---|
| Ligging | Beschutte ligging In bosrijke omgeving Platteland |
| Kadastrale gegevens | |
|---|---|
| Kadastrale aanduiding | Noordoostpolder G 2893 |
| Perceeloppervlakte | 2.983 m² |
| Omvang | Geheel perceel |
| Eigendomsituatie | Eigendom belast met erfpacht en opstal |
| Kadastrale aanduiding | Noordoostpolder G 2169 |
| Perceeloppervlakte | 6.085 m² |
| Omvang | Geheel perceel |
| Eigendomsituatie | Eigendom belast met erfpacht en opstal |
| Bedrijfswoning | |
|---|---|
| Situatie | Vrijstaand |
| Type object | Vrijstaande woning |
| Inhoud | 500 m³ |
| Perceeloppervlakte | 9.090 m² |
| Woonoppervlakte | 158 m² |
| Aantal bouwlagen | 2 |
| Aantal kamers | 4 (waarvan 3 slaapkamers) |
| Tuin lengte | 30 m. |
| Tuin breedte | 30 m. |
| Tuin oppervlakte | 900 m² |