Verkocht: Schaluinen 11B128, 5111 HB Baarle-Nassau
€ 297.500,- k.k.
| Type object | Woonhuis, eengezinswoning, vrijstaande woning |
|---|---|
| Perceeloppervlakte | 575 m² |
| Aanvaarding | In overleg |
| Recreatie object | |
| Woonoppervlakte | 134 m² |
| Status | Verkocht |
Beschrijving
Aan de Berkenlaan op bungalowpark L'Air Pur staat op een royaal perceel van maar liefst (575m2, eigen grond) deze keurig onderhouden recreatiewoning. Omgeven door groen en op korte afstand gelegen van het gezellige centrum van Baarle-Nassau, met diverse winkels, restaurants en alle benodigde voorzieningen.
Indeling
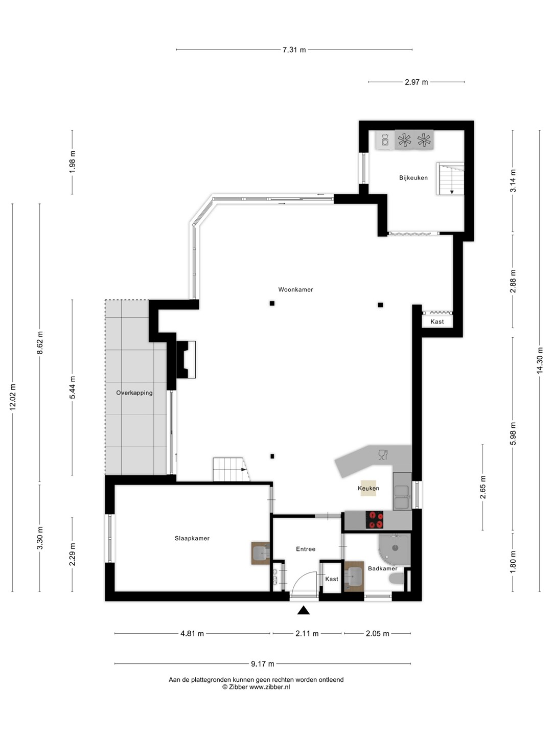
Via de entree kom je in de hal, die toegang biedt tot een badkamer met douche, wastafelmeubel en toilet. Vanuit de hal is de lichte woonkamer met open keuken te bereiken.
De woonkamer is een fijne lichte leefruimte met veel lichtinval dankzij de grote raampartijen en schuifpuien naar de tuin. De open haard zorgt voor extra sfeer en warmte. De open keuken is voorzien van een inductiekookplaat, koelkast, combi-oven/-magnetron en een vaatwasser. De woonkamer beschikt gedeeltelijk over elektrische vloerverwarming. Via de woonkamer is de bijkeuken te bereiken waar zich de opstelling voor de wasapparatuur bevindt. Via de bijkeuken is er toegang tot een ruime kelder.
Tevens is via de woonkamer de hoofdslaapkamer te bereiken. Welke is voorzien van een wastafelmeubel.
De woonkamer is een fijne lichte leefruimte met veel lichtinval dankzij de grote raampartijen en schuifpuien naar de tuin. De open haard zorgt voor extra sfeer en warmte. De open keuken is voorzien van een inductiekookplaat, koelkast, combi-oven/-magnetron en een vaatwasser. De woonkamer beschikt gedeeltelijk over elektrische vloerverwarming. Via de woonkamer is de bijkeuken te bereiken waar zich de opstelling voor de wasapparatuur bevindt. Via de bijkeuken is er toegang tot een ruime kelder.
Tevens is via de woonkamer de hoofdslaapkamer te bereiken. Welke is voorzien van een wastafelmeubel.
Eerste verdieping
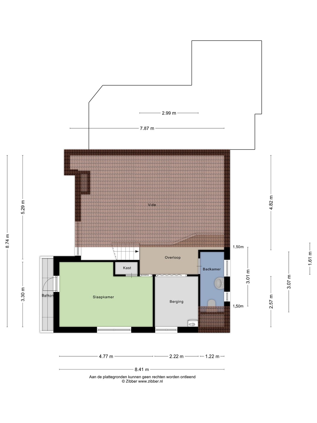
Middels de vaste trap, met stoellift, zijn de slaapkamer, toilet en berging op de eerste verdieping te bereiken.
De slaapkamer op deze verdieping beschikt over vaste kasten en toegang tot het balkon. Daarnaast bevindt zich de berging met de opstelling voor de CV-installatie. Eventueel is deze ruimte nog in te richten als slaapkamer. Op deze verdieping is tevens een tweede toilet te vinden.
De slaapkamer op deze verdieping beschikt over vaste kasten en toegang tot het balkon. Daarnaast bevindt zich de berging met de opstelling voor de CV-installatie. Eventueel is deze ruimte nog in te richten als slaapkamer. Op deze verdieping is tevens een tweede toilet te vinden.
Balkon
Via de slaapkamer op de eerste verdieping is er toegang tot het zonnige balkon.
Tuin
De riante tuin ligt rondom de woning en biedt volop privacy. Dankzij de terrassen en de groene tuin is het hier optimaal genieten van het buitenleven. Op eigen terrein is parkeergelegenheid. Daarnaast bevinden zich in de tuin nog een 3-tal bergingen.
Bijzonderheden
- Bouwjaar 1971
- Woning gelegen op eigen grond
- Gedeeltelijk vloerverwarming in de woonkamer
- Houten kozijnen met dubbele beglazing
- Levensloop bestendig
- Tuin rondom de woning
- Parkeren op eigen terrein
- De parkkosten bedragen € 1.536,- per jaar (2026). Hierin zit onder andere inbegrepen het beheer en onderhoud van het park en onbeperkt gebruik van alle faciliteiten van het park
- Het voorschot voor het water wordt afzonderlijk in rekening gebracht. De prijs per m³ wordt per jaar vastgesteld en is een gemiddelde van het parkgebruik en het individuele gebruik incl. heffingen waaronder o.a. rioolheffing.
- Een nieuw lid is een entreebijdrage van € 375,00 verschuldigd aan het park (alle gemeenschappelijke voorzieningen zijn in eigendom van de VVE).
- Aanvaarding in overleg.
Bungalowpark L’air Pur
Bungalowpark L’Air Pur is landelijk gelegen in het buitengebied van Baarle-Nassau. Op circa 2 kilometer afstand van het centrum van Baarle-Nassau met al haar voorzieningen. Het park zelf beschikt over verschillende voorzieningen, hierbij kan je denken aan onder andere een (verwarmd) buitenzwembad met ligweide, een speeltuin, tennisbanen, een midgetgolf-baan, een dierenweide en een jeu de boules-baan.
Verkoopvoorwaarden
- Asbestclausule
Bij woningen die voor 1 juli 1993 gebouwd zijn, bestaat het risico dat er asbesthoudende materialen verwerkt zijn in o.a. (rook)kanalen, dak(beschot), scheidingswanden, gevelpanelen, nabij verwarmings- en warmwatertoestellen en in de vloerbedekking. Het eventuele risico van aanwezigheid van asbesthoudende materialen gaat na een verkoop over op de kopende partij, hetgeen wordt vastgelegd in de koopakte.
- Ouderdomsclausule
De ouderdomsclausule zal voor deze woning in de koopakte worden opgenomen omdat de onroerende zaak meer dan 50 jaar oud is, wat betekent dat de eisen die aan de bouwkwaliteit gesteld mogen worden aanzienlijk lager liggen dan bij de nieuwe woningen. Koper kan zich hierdoor niet beroepen op het feit dat deze woning afwijkt van de huidige bouwvoorschriften.
- Woning gelegen op eigen grond
- Gedeeltelijk vloerverwarming in de woonkamer
- Houten kozijnen met dubbele beglazing
- Levensloop bestendig
- Tuin rondom de woning
- Parkeren op eigen terrein
- De parkkosten bedragen € 1.536,- per jaar (2026). Hierin zit onder andere inbegrepen het beheer en onderhoud van het park en onbeperkt gebruik van alle faciliteiten van het park
- Het voorschot voor het water wordt afzonderlijk in rekening gebracht. De prijs per m³ wordt per jaar vastgesteld en is een gemiddelde van het parkgebruik en het individuele gebruik incl. heffingen waaronder o.a. rioolheffing.
- Een nieuw lid is een entreebijdrage van € 375,00 verschuldigd aan het park (alle gemeenschappelijke voorzieningen zijn in eigendom van de VVE).
- Aanvaarding in overleg.
Bungalowpark L’air Pur
Bungalowpark L’Air Pur is landelijk gelegen in het buitengebied van Baarle-Nassau. Op circa 2 kilometer afstand van het centrum van Baarle-Nassau met al haar voorzieningen. Het park zelf beschikt over verschillende voorzieningen, hierbij kan je denken aan onder andere een (verwarmd) buitenzwembad met ligweide, een speeltuin, tennisbanen, een midgetgolf-baan, een dierenweide en een jeu de boules-baan.
Verkoopvoorwaarden
- Asbestclausule
Bij woningen die voor 1 juli 1993 gebouwd zijn, bestaat het risico dat er asbesthoudende materialen verwerkt zijn in o.a. (rook)kanalen, dak(beschot), scheidingswanden, gevelpanelen, nabij verwarmings- en warmwatertoestellen en in de vloerbedekking. Het eventuele risico van aanwezigheid van asbesthoudende materialen gaat na een verkoop over op de kopende partij, hetgeen wordt vastgelegd in de koopakte.
- Ouderdomsclausule
De ouderdomsclausule zal voor deze woning in de koopakte worden opgenomen omdat de onroerende zaak meer dan 50 jaar oud is, wat betekent dat de eisen die aan de bouwkwaliteit gesteld mogen worden aanzienlijk lager liggen dan bij de nieuwe woningen. Koper kan zich hierdoor niet beroepen op het feit dat deze woning afwijkt van de huidige bouwvoorschriften.
Kenmerken
| Overdracht | |
|---|---|
| Referentienummer | 00027 |
| Vraagprijs | € 297.500,- k.k. |
| Inrichting | Niet gestoffeerd |
| Inrichting | Niet gemeubileerd |
| Status | Verkocht |
| Aanvaarding | In overleg |
| Laatste wijziging | Vrijdag 24 april 2026 |
| Bouw | |
|---|---|
| Type object | Woonhuis, eengezinswoning, vrijstaande woning |
| Soort bouw | Bestaande bouw |
| Toegankelijkheid | Mindervaliden Senioren |
| Bouwperiode | 1971 |
| Dakbedekking | Bitumen |
| Type dak | Zadeldak |
| Isolatievormen | Dakisolatie Dubbel glas Muurisolatie Vloerisolatie |
| Oppervlaktes en inhoud | |
|---|---|
| Perceeloppervlakte | 575 m² |
| Woonoppervlakte | 134 m² |
| Inhoud | 567 m³ |
| Oppervlakte overige inpandige ruimten | 19 m² |
| Oppervlakte externe bergruimte | 17,9 m² |
| Oppervlakte gebouwgebonden buitenruimte | 12,4 m² |
| Indeling | |
|---|---|
| Aantal bouwlagen | 2 (en 1 kelder) |
| Aantal kamers | 3 (waarvan 2 slaapkamers) |
| Aantal badkamers | 1 (en 1 apart toilet) |
| Locatie | |
|---|---|
| Ligging | Aan bosrand Aan rustige weg Dichtbij openbaar vervoer In bosrijke omgeving |
| Tuin | |
|---|---|
| Type | Tuin rondom |
| Hoofdtuin | Ja |
| Oriëntering | Zuid-west |
| Staat | Prachtig aangelegd |
| Energieverbruik | |
|---|---|
| Energielabel | D |
| CV ketel | |
|---|---|
| CV ketel | Remeha |
| Warmtebron | Gas |
| Bouwjaar | 2021 |
| Combiketel | Ja |
| Eigendom | Eigendom |
| Uitrusting | |
|---|---|
| Aantal parkeerplaatsen | 2 |
| Warm water | CV-ketel |
| Verwarmingssysteem | Airconditioning Centrale verwarming Elektrische verwarming Open haard Vloerverwarming (gedeeltelijk) |
| Ventilatie methode | Natuurlijke ventilatie |
| Badkamervoorzieningen | Douche Toilet Wastafelmeubel |
| Heeft airco | Ja |
| Heeft een open haard | Ja |
| Heeft een rookkanaal | Ja |
| Tuin aanwezig | Ja |
| Heeft schuur/berging | Ja |
| Heeft een schuifpui | Ja |
| Kadastrale gegevens | |
|---|---|
| Kadastrale aanduiding | Baarle-Nassau G 1452 |
| Perceeloppervlakte | 575 m² |
| Omvang | Geheel perceel |
| Eigendomsituatie | Zie akte |