Verkocht: Cornelis Krusemanstraat 1B, 1075 NB Amsterdam
€ 675.000,- k.k.
| Type object | Appartement, bovenwoning |
|---|---|
| Aanvaarding | Direct |
| Woonoppervlakte | 85 m² |
|---|---|
| Status | Verkocht |
Beschrijving
For English, scroll down.
Gerenoveerd, ruim en licht appartement met 2 slaapkamers, 2 badkamers, hoge plafonds en geweldig uitzicht op een geweldig deel van Amsterdam Zuid.
Alleen de beste materialen zijn gebruikt voor de ramen, vloeren, badkamers en keuken met inbouw apparatuur.
Er is een perfecte balans bereikt tussen licht, karakter en ruimte en de bijzonder indeling maakt het tot de perfecte stadswoning; rustig gelegen in deze prestigieuze buurt en winkels en terrassen van onder andere de Cornelis Schuytstraat op loopafstand.
Ietsje verder vindt u de gezellige terrassen en leuke restaurants van de Willemsparkweg, waar het perfect is voor een ontspannen middag of avond uit.
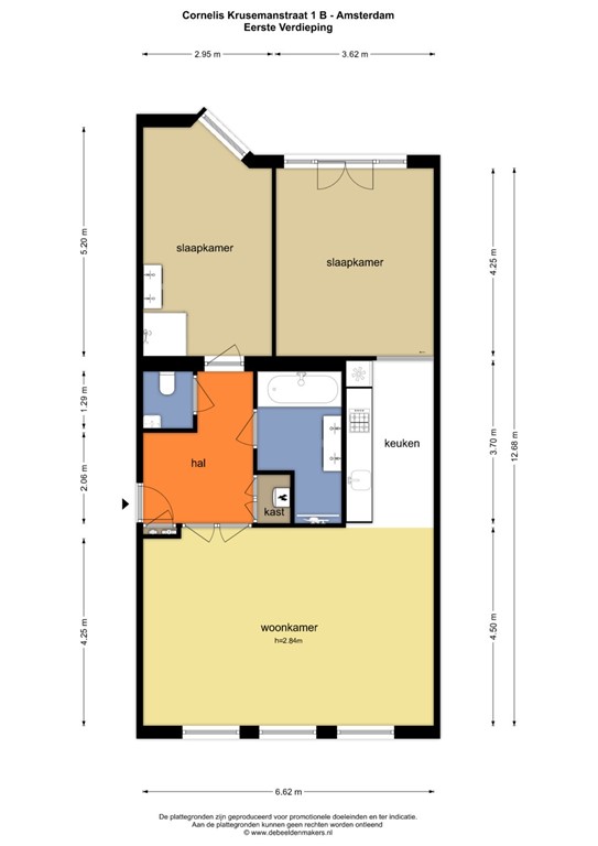
Via de trap komt u op de eerste verdieping, met een ruime hal met garderobe en een apart toilet. De openslaande deuren naar de woonkamer geven direct het uitzicht op de bomen van de straat weer, alsmede de mooie houten vloeren die door het hele appartement lopen.
Voorbij de eethoek, vindt u de open keuken met alle benodigde inbouwapparatuur.
Vanuit de hal vindt u de slaapkamers, de badkamer en het separate toilet.
De eerste slaapkamer is voorzien van openslaande deuren naar een heerlijk zonnig balkon, waar u kunt genieten van de ochtend- en middagzon. De badkamer heeft een ligbad, een inloopdouche, een decor radiator en een wastafel; hier kunt u genieten van de ruimte en rust.
De tweede slaapkamer biedt meer dan voldoende ruimte voor een heerlijke rustige nachtrust en heeft een eigen doucheruimte en fontein. Geweldig voor gasten en/of inwonend kind.
Kom de sfeer proeven; het is een ideale plek om een dag af te sluiten met uitzicht op de omgeving en de prachtige architectuur van het beschermde stadgezicht Oud-Zuid. Deze buurt is bijzonder populair vanwege zijn veelzijdigheid en uitstekende bereikbaarheid. Het Olympiaplein, Valeriusplein, Marathonweg en de Pieter Lastmankade liggen op loopafstand, met volop voorzieningen in de buurt zoals gezellige terrasjes, koffiebarretjes en diverse restaurants. Bovendien zijn er uitstekende uitvalswegen richting de A1, A2 en A4 via de Ring A10, en het Haarlemmermeerstation biedt een goed openbaar vervoersnetwerk met trams en bussen naar diverse delen van de stad.
Deze informatie is door ons met de nodige zorgvuldigheid samengesteld. Onzerzijds wordt echter geen enkele aansprakelijkheid aanvaard voor enige onvolledigheid, onjuistheid of anderszins, dan wel de gevolgen daarvan.
Renovated, spacious and light-filled apartment with 2 bedrooms, 2 bathrooms, high ceilings and stunning views in one of the most sought-after parts of Amsterdam South.
Only the finest materials have been used throughout – from the windows and wooden floors to the bathrooms and the fully equipped kitchen with built-in appliances. The home strikes a perfect balance between light, character and space. Its exceptional layout makes it the ideal city residence: quietly located in this prestigious neighbourhood, yet just a short walk from the shops and terraces of Cornelis Schuytstraat.
A little further you’ll find the lively terraces and charming restaurants of Willemsparkweg – the perfect spot for a relaxed afternoon or evening out.
The apartment is located on the first floor and accessed via a private staircase. The spacious hallway includes a cloakroom and separate toilet. Double doors open into the bright living room, where large windows overlook the leafy street and the beautiful wooden flooring runs seamlessly throughout. Beyond the dining area lies the open-plan kitchen, fitted with every modern convenience.
From the hallway, you reach the bedrooms and the bathroom. The first bedroom has French doors opening onto a sunny balcony, where you can enjoy the morning and afternoon sun. The bathroom offers a bathtub, walk-in shower, designer radiator and washbasin – a calm and comfortable retreat. The second bedroom provides plenty of space for peaceful rest and relaxation and has its own shower and vanity. Great for guests or child.
Come and experience the atmosphere for yourself – this is the ideal place to end your day, surrounded by the stunning architecture of Amsterdam Oud-Zuid, a protected cityscape highly valued for its character and excellent accessibility. Olympiaplein, Valeriusplein, Marathonweg and Pieter Lastmankade are all within walking distance, with plenty of cafés, terraces and restaurants nearby. Convenient connections to the A1, A2 and A4 motorways via the A10 ring road, as well as public transport from Haarlemmermeerstation, make every part of the city easily accessible.
This information has been compiled by us with the necessary care. On our part, however, no liability is accepted for any incompleteness, inaccuracy or otherwise, or the consequences thereof. All specified sizes and surfaces are indicative.
Gerenoveerd, ruim en licht appartement met 2 slaapkamers, 2 badkamers, hoge plafonds en geweldig uitzicht op een geweldig deel van Amsterdam Zuid.
Alleen de beste materialen zijn gebruikt voor de ramen, vloeren, badkamers en keuken met inbouw apparatuur.
Er is een perfecte balans bereikt tussen licht, karakter en ruimte en de bijzonder indeling maakt het tot de perfecte stadswoning; rustig gelegen in deze prestigieuze buurt en winkels en terrassen van onder andere de Cornelis Schuytstraat op loopafstand.
Ietsje verder vindt u de gezellige terrassen en leuke restaurants van de Willemsparkweg, waar het perfect is voor een ontspannen middag of avond uit.
Via de trap komt u op de eerste verdieping, met een ruime hal met garderobe en een apart toilet. De openslaande deuren naar de woonkamer geven direct het uitzicht op de bomen van de straat weer, alsmede de mooie houten vloeren die door het hele appartement lopen.
Voorbij de eethoek, vindt u de open keuken met alle benodigde inbouwapparatuur.
Vanuit de hal vindt u de slaapkamers, de badkamer en het separate toilet.
De eerste slaapkamer is voorzien van openslaande deuren naar een heerlijk zonnig balkon, waar u kunt genieten van de ochtend- en middagzon. De badkamer heeft een ligbad, een inloopdouche, een decor radiator en een wastafel; hier kunt u genieten van de ruimte en rust.
De tweede slaapkamer biedt meer dan voldoende ruimte voor een heerlijke rustige nachtrust en heeft een eigen doucheruimte en fontein. Geweldig voor gasten en/of inwonend kind.
Kom de sfeer proeven; het is een ideale plek om een dag af te sluiten met uitzicht op de omgeving en de prachtige architectuur van het beschermde stadgezicht Oud-Zuid. Deze buurt is bijzonder populair vanwege zijn veelzijdigheid en uitstekende bereikbaarheid. Het Olympiaplein, Valeriusplein, Marathonweg en de Pieter Lastmankade liggen op loopafstand, met volop voorzieningen in de buurt zoals gezellige terrasjes, koffiebarretjes en diverse restaurants. Bovendien zijn er uitstekende uitvalswegen richting de A1, A2 en A4 via de Ring A10, en het Haarlemmermeerstation biedt een goed openbaar vervoersnetwerk met trams en bussen naar diverse delen van de stad.
Deze informatie is door ons met de nodige zorgvuldigheid samengesteld. Onzerzijds wordt echter geen enkele aansprakelijkheid aanvaard voor enige onvolledigheid, onjuistheid of anderszins, dan wel de gevolgen daarvan.
Renovated, spacious and light-filled apartment with 2 bedrooms, 2 bathrooms, high ceilings and stunning views in one of the most sought-after parts of Amsterdam South.
Only the finest materials have been used throughout – from the windows and wooden floors to the bathrooms and the fully equipped kitchen with built-in appliances. The home strikes a perfect balance between light, character and space. Its exceptional layout makes it the ideal city residence: quietly located in this prestigious neighbourhood, yet just a short walk from the shops and terraces of Cornelis Schuytstraat.
A little further you’ll find the lively terraces and charming restaurants of Willemsparkweg – the perfect spot for a relaxed afternoon or evening out.
The apartment is located on the first floor and accessed via a private staircase. The spacious hallway includes a cloakroom and separate toilet. Double doors open into the bright living room, where large windows overlook the leafy street and the beautiful wooden flooring runs seamlessly throughout. Beyond the dining area lies the open-plan kitchen, fitted with every modern convenience.
From the hallway, you reach the bedrooms and the bathroom. The first bedroom has French doors opening onto a sunny balcony, where you can enjoy the morning and afternoon sun. The bathroom offers a bathtub, walk-in shower, designer radiator and washbasin – a calm and comfortable retreat. The second bedroom provides plenty of space for peaceful rest and relaxation and has its own shower and vanity. Great for guests or child.
Come and experience the atmosphere for yourself – this is the ideal place to end your day, surrounded by the stunning architecture of Amsterdam Oud-Zuid, a protected cityscape highly valued for its character and excellent accessibility. Olympiaplein, Valeriusplein, Marathonweg and Pieter Lastmankade are all within walking distance, with plenty of cafés, terraces and restaurants nearby. Convenient connections to the A1, A2 and A4 motorways via the A10 ring road, as well as public transport from Haarlemmermeerstation, make every part of the city easily accessible.
This information has been compiled by us with the necessary care. On our part, however, no liability is accepted for any incompleteness, inaccuracy or otherwise, or the consequences thereof. All specified sizes and surfaces are indicative.
Kenmerken
| Overdracht | |
|---|---|
| Referentienummer | 00850 |
| Vraagprijs | € 675.000,- k.k. |
| Servicekosten | € 206,64 |
| Inrichting | Ja |
| Inrichting | Gestoffeerd |
| Status | Verkocht |
| Aanvaarding | Direct |
| Laatste wijziging | Maandag 8 december 2025 |
| Bouw | |
|---|---|
| Type object | Appartement, bovenwoning |
| Woonlaag | 1e woonlaag |
| Soort bouw | Bestaande bouw |
| Bouwperiode | 1925 |
| Isolatievormen | Dubbel glas |
| Oppervlaktes en inhoud | |
|---|---|
| Woonoppervlakte | 85 m² |
| Inhoud | 295 m³ |
| Indeling | |
|---|---|
| Aantal bouwlagen | 1 |
| Aantal kamers | 3 (waarvan 2 slaapkamers) |
| Aantal badkamers | 2 (en 1 apart toilet) |
| Energieverbruik | |
|---|---|
| Energielabel | C |
| CV ketel | |
|---|---|
| Warmtebron | Gas |
| Eigendom | Eigendom |
| Uitrusting | |
|---|---|
| Verwarmingssysteem | Centrale verwarming |
| Badkamervoorzieningen Badkamer 1 | Inloopdouche Ligbad Wastafel |
| Badkamervoorzieningen Badkamer 2 | Douche Wastafel |
| Heeft een balkon | Ja |
| Vereniging van Eigenaren | |
|---|---|
| Ingeschreven bij de KvK | Ja |
| Jaarlijkse vergadering | Ja |
| Meer jaren onderhoudsplan | Ja |
| Opstal verzekering | Ja |
| Kadastrale gegevens | |
|---|---|
| Kadastrale aanduiding | Amsterdam AC 1208 |
| Omvang | Appartementsrecht of complex |
| Eigendomsituatie | Eigendom belast met erfpacht |
| Lasten | € 962,41 per jaar met afkoopoptie, afgekocht tot 29-11-2028 |