Verkocht: TE KOOP BIJ INSCHRIJVING: Diverse percelen goede landbouwgrond: 08.45.88 ha. Inschrijven is mogelijk t/m dinsdag 03 februari 2026 tot 12.00 uur. Diverse kopen / massa.
Beek, 5481 XC Schijndel
Prijs op aanvraag
| Type object | Losse grond |
|---|---|
| Aanvaarding | Per woensdag 18 maart 2026 |
| Perceeloppervlakte | 84.588 m² |
|---|---|
| Status | Verkocht |
Beschrijving
TE KOOP BIJ INSCHRIJVING:
Diverse percelen goede landbouwgrond, totaal ter grootte van 08.45.88 ha.
Inschrijven is mogelijk t/m dinsdag 03 februari 2026 tot 12.00 uur.
Diverse kopen / massa.
Diverse percelen goede landbouwgrond, totaal ter grootte van 08.45.88 ha.
Inschrijven is mogelijk t/m dinsdag 03 februari 2026 tot 12.00 uur.
Diverse kopen / massa.
Indeling
ALGEMEEN:
Het betreft diverse percelen goede landbouwgrond, ter grootte van 01.96.10 ha, 02.68.38 ha en 03.81.40 ha, derhalve een totale perceeloppervlakte van maar liefst 08.45.88 ha. Deze totale oppervlakte maakt het een interessante veldkavel. Het zijn goede percelen landbouwgrond, gelegen aan de openbare verharde weg “Beek” / openbare zandweg en goed ontsloten. De percelen zijn thans in gebruik als grasland.
KADASTRALE GEGEVENS:
Zie verder onze uitgebreide verkoopbrochure.
(Bron: Dienst voor het kadaster en de Openbare Registers).
BESTEMMING:
De percelen zijn gelegen in het omgevingsplan / bestemmingsplan “Landelijk gebied’ van de gemeente Schijndel, vastgesteld 27 juni 2013, deels onherroepelijk in werking.
Het huidige gebruik is toegestaan conform dit bestemmingsplan / omgevingsplan.
Krachtens dit bestemmingsplan / omgevingsplan zijn de percelen bestemd als:
Bestemmingsvlak:
Agrarisch met waarden – Natuur en landschap.
Waarde – Archeologie 6.
Waarde – Archeologie 4.
Waarde – Attentiegebied ehs.
Functieaanduiding:
Specifieke vorm van agrarisch – boomkwekerij.
Gebiedsaanduidingen:
Reconstructiewetzone – extensiveringsgebied.
WRO-zone – omgevingsvergunning historische verkavelingsstructuren.
WRO-zone – omgevingsvergunning groenblauwe mantel.
LANDBOUWGROND
Diverse percelen landbouwgrond, ter grootte van 01.96.10 hectare, 02.68.38 hectaren en 03.81.40 hectaren, derhalve een totale perceeloppervlakte van maar liefst 08.45.88 hectaren.
Het is zandgrond met een humushoudende deklaag van ca. 25-35 cm.
De percelen zijn recht van vorm verkaveld.
Het perceel is driemaal ontsloten aan de voorzijde langs de openbare verharde weg “Beek” en perceel landbouwgrond, ter grootte van 03.81.40 hectaren, is ontsloten aan een openbare zandweg.
Indien koop 3 apart gegund wordt is het perceel ontsloten en bereikbaar via de openbare zandweg.
Het gehele perceel is thans in gebruik als grasland.
Beregening van het perceel is niet mogelijk; er is geen beregeningsput met vergunning aanwezig.
Het perceel is niet gedraineerd.
Het perceel wordt geleverd vrij van huur, pacht en/of enig ander gebruiksrecht.
Het perceel wordt leeg en ontruimd afgeleverd en zal ter beschikking zijn van de koper, uiterlijk datum notariële eigendomsoverdracht.
Alle baten en lasten komen voor rekening van koper met ingang van datum notariële eigendomsoverdracht.
Er rust wel jachtrecht op het verkochte.
Verkoper is niet bekend met bodemverontreiniging.
LEVERING:
De akte van levering dient voor rekening van koper te worden gepasseerd uiterlijk woensdag 18 maart 2026 bij Van Kruijsdijk Notarissen, gevestigd te Schijndel en kantoorhoudende aldaar aan de Sint Jorisplein 1 (5481 AS); telefoonnummer (073) – 549 25 70.
De feitelijke levering (aflevering) van het verkochte vindt plaats leeg en ontruimd, vrij van huur en/of pacht.
Koper heeft een eigen informatieplicht ter zake van alle onderwerpen die voor hem van belang kunnen zijn. Dat geldt zeker voor bestemmingen, bestemmingsplannen / omgevingsplannen, verordeningen, e.d.
VERKOOP BIJ INSCHRIJVING:
Verkoop geschiedt door middel van inschrijving. Inschrijving vindt uitsluitend plaats door het tijdig indienen van een geldig ingevuld en ondertekend inschrijfformulier. Onvolledige en niet ondertekende inschrijfformulieren zijn ongeldig.
Inschrijven is mogelijk tot en met dinsdag 03 februari 2026 tot 12.00 uur.
Het inschrijfformulier dient dan in een gesloten enveloppe samen met een kopie van een geldig legitimatiebewijs en een verklaring van een erkende bankinstelling waaruit blijkt dat de bieder financieel in staat is de koopprijs met de kosten en belastingen te betalen, op het kantoor van de notaris aanwezig te zijn, zijnde: Van Kruijsdijk Notarissen, gevestigd te Schijndel en kantoorhoudende aldaar aan de Sint Jorisplein 1 (5481 AS); telefoonnummer (073) – 549 25 70 met vermelding van: “Inschrijving SCHIJNDEL, BEEK”.
De notaris opent slechts de enveloppen en noteert alle bieders, maar heeft verder geen bemoeienis met en aanvaardt geen aansprakelijkheid voor deze inschrijving.
OMSCHRIJVING VAN DE KOOP / KOPEN / MASSA:
KOOP 1: Perceel landbouwgrond, ter grootte van 01.96.10 hectaren, gelegen te SCHIJNDEL aan de Beek.
KOOP 2: Perceel landbouwgrond, ter grootte van 02.68.38 hectaren, gelegen te SCHIJNDEL aan de Beek.
KOOP 3: Perceel landbouwgrond, ter grootte van 03.81.40 hectaren, gelegen te SCHIJNDEL aan en nabij de Beek.
KOOP 4: Massa van koop 1 en koop 2:
Perceel landbouwgrond, ter grootte van 04.64.48 hectaren, gelegen te SCHIJNDEL aan de Beek.
KOOP 5: Massa van koop 1, koop 2 en koop 3:
Perceel landbouwgrond, ter grootte van 08.45.88 hectaren, gelegen te SCHIJNDEL aan de Beek.
Opmerking:
Kandidaat-koper kan op meerdere kopen inschrijven en aangeven op het inschrijfformulier hoeveel kopen maximaal gegund te krijgen.
AANTAL VOORWAARDEN (zie verder onze uitgebreide verkoopbrochure)
- Inschrijven dient te geschieden door volledige invulling en ondertekening van het inschrijfformulier, in volle nominale bedragen, in euro’s uitgedrukt en niet mede in goederen e.d. Iedere inschrijver moet zijn bod gestand doen tot aan het einde van de termijn van beraad.
- Verkoper behoudt zich het recht voor om zonder opgaaf van reden niet te gunnen of te gunnen aan een ander dan degene die het hoogste bod heeft gedaan.
- Indien de verkoper tot gunning overgaat zal de makelaar de inschrijver / koper uiterlijk voor Donderdag 05 februari 2026 voor 17.00 uur hiervan telefonisch op de hoogte brengen.
- De inschrijving is onvoorwaardelijk en met financiële garantie.
- De koopprijs is kosten koper, dat wil zeggen dat de kosten van de overdracht van de eigendom voor rekening van koper komen.
- Onder- of overmaat is niet van toepassing.
- Op het verkochte rust wel jachtrecht.
BEZICHTIGING / VRAGEN:
U kunt de percelen op eigen gelegenheid bezichtigen.
Voor vragen of uw wenst onze uitgebreide verkoopbrochure met verkoopvoorwaarden en inschrijfformulier te ontvangen, dan kunt u contact opnemen met Arvalis, telefoon 073 – 217 35 80 of u kunt rechtstreeks bellen met de heer Ing. J.M.J.M. (Jos) van den Heuvel, te bereiken onder mobiele nummer: 06 – 53 39 76 30.
Het betreft diverse percelen goede landbouwgrond, ter grootte van 01.96.10 ha, 02.68.38 ha en 03.81.40 ha, derhalve een totale perceeloppervlakte van maar liefst 08.45.88 ha. Deze totale oppervlakte maakt het een interessante veldkavel. Het zijn goede percelen landbouwgrond, gelegen aan de openbare verharde weg “Beek” / openbare zandweg en goed ontsloten. De percelen zijn thans in gebruik als grasland.
KADASTRALE GEGEVENS:
Zie verder onze uitgebreide verkoopbrochure.
(Bron: Dienst voor het kadaster en de Openbare Registers).
BESTEMMING:
De percelen zijn gelegen in het omgevingsplan / bestemmingsplan “Landelijk gebied’ van de gemeente Schijndel, vastgesteld 27 juni 2013, deels onherroepelijk in werking.
Het huidige gebruik is toegestaan conform dit bestemmingsplan / omgevingsplan.
Krachtens dit bestemmingsplan / omgevingsplan zijn de percelen bestemd als:
Bestemmingsvlak:
Agrarisch met waarden – Natuur en landschap.
Waarde – Archeologie 6.
Waarde – Archeologie 4.
Waarde – Attentiegebied ehs.
Functieaanduiding:
Specifieke vorm van agrarisch – boomkwekerij.
Gebiedsaanduidingen:
Reconstructiewetzone – extensiveringsgebied.
WRO-zone – omgevingsvergunning historische verkavelingsstructuren.
WRO-zone – omgevingsvergunning groenblauwe mantel.
LANDBOUWGROND
Diverse percelen landbouwgrond, ter grootte van 01.96.10 hectare, 02.68.38 hectaren en 03.81.40 hectaren, derhalve een totale perceeloppervlakte van maar liefst 08.45.88 hectaren.
Het is zandgrond met een humushoudende deklaag van ca. 25-35 cm.
De percelen zijn recht van vorm verkaveld.
Het perceel is driemaal ontsloten aan de voorzijde langs de openbare verharde weg “Beek” en perceel landbouwgrond, ter grootte van 03.81.40 hectaren, is ontsloten aan een openbare zandweg.
Indien koop 3 apart gegund wordt is het perceel ontsloten en bereikbaar via de openbare zandweg.
Het gehele perceel is thans in gebruik als grasland.
Beregening van het perceel is niet mogelijk; er is geen beregeningsput met vergunning aanwezig.
Het perceel is niet gedraineerd.
Het perceel wordt geleverd vrij van huur, pacht en/of enig ander gebruiksrecht.
Het perceel wordt leeg en ontruimd afgeleverd en zal ter beschikking zijn van de koper, uiterlijk datum notariële eigendomsoverdracht.
Alle baten en lasten komen voor rekening van koper met ingang van datum notariële eigendomsoverdracht.
Er rust wel jachtrecht op het verkochte.
Verkoper is niet bekend met bodemverontreiniging.
LEVERING:
De akte van levering dient voor rekening van koper te worden gepasseerd uiterlijk woensdag 18 maart 2026 bij Van Kruijsdijk Notarissen, gevestigd te Schijndel en kantoorhoudende aldaar aan de Sint Jorisplein 1 (5481 AS); telefoonnummer (073) – 549 25 70.
De feitelijke levering (aflevering) van het verkochte vindt plaats leeg en ontruimd, vrij van huur en/of pacht.
Koper heeft een eigen informatieplicht ter zake van alle onderwerpen die voor hem van belang kunnen zijn. Dat geldt zeker voor bestemmingen, bestemmingsplannen / omgevingsplannen, verordeningen, e.d.
VERKOOP BIJ INSCHRIJVING:
Verkoop geschiedt door middel van inschrijving. Inschrijving vindt uitsluitend plaats door het tijdig indienen van een geldig ingevuld en ondertekend inschrijfformulier. Onvolledige en niet ondertekende inschrijfformulieren zijn ongeldig.
Inschrijven is mogelijk tot en met dinsdag 03 februari 2026 tot 12.00 uur.
Het inschrijfformulier dient dan in een gesloten enveloppe samen met een kopie van een geldig legitimatiebewijs en een verklaring van een erkende bankinstelling waaruit blijkt dat de bieder financieel in staat is de koopprijs met de kosten en belastingen te betalen, op het kantoor van de notaris aanwezig te zijn, zijnde: Van Kruijsdijk Notarissen, gevestigd te Schijndel en kantoorhoudende aldaar aan de Sint Jorisplein 1 (5481 AS); telefoonnummer (073) – 549 25 70 met vermelding van: “Inschrijving SCHIJNDEL, BEEK”.
De notaris opent slechts de enveloppen en noteert alle bieders, maar heeft verder geen bemoeienis met en aanvaardt geen aansprakelijkheid voor deze inschrijving.
OMSCHRIJVING VAN DE KOOP / KOPEN / MASSA:
KOOP 1: Perceel landbouwgrond, ter grootte van 01.96.10 hectaren, gelegen te SCHIJNDEL aan de Beek.
KOOP 2: Perceel landbouwgrond, ter grootte van 02.68.38 hectaren, gelegen te SCHIJNDEL aan de Beek.
KOOP 3: Perceel landbouwgrond, ter grootte van 03.81.40 hectaren, gelegen te SCHIJNDEL aan en nabij de Beek.
KOOP 4: Massa van koop 1 en koop 2:
Perceel landbouwgrond, ter grootte van 04.64.48 hectaren, gelegen te SCHIJNDEL aan de Beek.
KOOP 5: Massa van koop 1, koop 2 en koop 3:
Perceel landbouwgrond, ter grootte van 08.45.88 hectaren, gelegen te SCHIJNDEL aan de Beek.
Opmerking:
Kandidaat-koper kan op meerdere kopen inschrijven en aangeven op het inschrijfformulier hoeveel kopen maximaal gegund te krijgen.
AANTAL VOORWAARDEN (zie verder onze uitgebreide verkoopbrochure)
- Inschrijven dient te geschieden door volledige invulling en ondertekening van het inschrijfformulier, in volle nominale bedragen, in euro’s uitgedrukt en niet mede in goederen e.d. Iedere inschrijver moet zijn bod gestand doen tot aan het einde van de termijn van beraad.
- Verkoper behoudt zich het recht voor om zonder opgaaf van reden niet te gunnen of te gunnen aan een ander dan degene die het hoogste bod heeft gedaan.
- Indien de verkoper tot gunning overgaat zal de makelaar de inschrijver / koper uiterlijk voor Donderdag 05 februari 2026 voor 17.00 uur hiervan telefonisch op de hoogte brengen.
- De inschrijving is onvoorwaardelijk en met financiële garantie.
- De koopprijs is kosten koper, dat wil zeggen dat de kosten van de overdracht van de eigendom voor rekening van koper komen.
- Onder- of overmaat is niet van toepassing.
- Op het verkochte rust wel jachtrecht.
BEZICHTIGING / VRAGEN:
U kunt de percelen op eigen gelegenheid bezichtigen.
Voor vragen of uw wenst onze uitgebreide verkoopbrochure met verkoopvoorwaarden en inschrijfformulier te ontvangen, dan kunt u contact opnemen met Arvalis, telefoon 073 – 217 35 80 of u kunt rechtstreeks bellen met de heer Ing. J.M.J.M. (Jos) van den Heuvel, te bereiken onder mobiele nummer: 06 – 53 39 76 30.
Kenmerken
| Overdracht | |
|---|---|
| Referentienummer | VGP3900722 |
| Prijs | Prijs op aanvraag |
| Status | Verkocht |
| Aanvaarding | Per woensdag 18 maart 2026 |
| Laatste wijziging | Dinsdag 10 februari 2026 |
| Bouw | |
|---|---|
| Type object | Losse grond |
| Grondsoort | Zand |
| Soort bouw | Bestaande bouw |
| Oppervlaktes en inhoud | |
|---|---|
| Perceeloppervlakte | 8 ha 45 a 88 ca |
| Locatie | |
|---|---|
| Ligging | Buiten bebouwde kom |
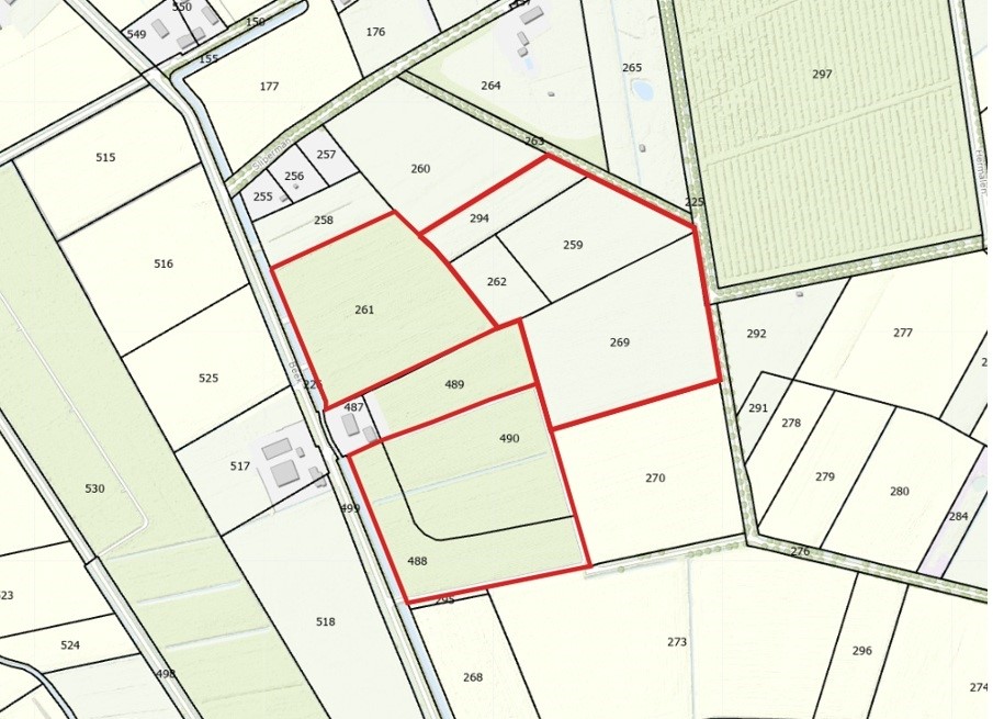
| Kadastrale gegevens | |
|---|---|
| Kadastrale aanduiding | Schijndel L 490 |
| Perceeloppervlakte | 15.650 m² |
| Omvang | Geheel perceel |
| Eigendomsituatie | Eigen grond |
| Kadastrale aanduiding | Meierijstad L 269 |
| Perceeloppervlakte | 19.065 m² |
| Omvang | Geheel perceel |
| Eigendomsituatie | Eigen grond |
| Kadastrale aanduiding | Schijndel L 488 |
| Perceeloppervlakte | 11.188 m² |
| Omvang | Geheel perceel |
| Eigendomsituatie | Eigen grond |
| Kadastrale aanduiding | Schijndel L 261 |
| Perceeloppervlakte | 19.610 m² |
| Omvang | Geheel perceel |
| Eigendomsituatie | Eigen grond |
| Kadastrale aanduiding | Schijndel L 259 |
| Perceeloppervlakte | 10.235 m² |
| Omvang | Geheel perceel |
| Eigendomsituatie | Eigen grond |
| Kadastrale aanduiding | Schijndel L 262 |
| Perceeloppervlakte | 3.825 m² |
| Omvang | Geheel perceel |
| Eigendomsituatie | Eigen grond |
| Kadastrale aanduiding | Schijndel L 294 |
| Perceeloppervlakte | 5.015 m² |
| Omvang | Geheel perceel |
| Eigendomsituatie | Eigen grond |