Verkocht onder voorbehoud: Grote Dries 27, 6123 BX Holtum
€ 765.000,- k.k.
| Type object | ALV overig |
|---|---|
| Status | Verkocht onder voorbehoud |
| Perceeloppervlakte | 9.735 m² |
|---|
Beschrijving
Landelijk wonen en ondernemen!
Deze landelijk gelegen (bedrijfs-)woning met bedrijfsgebouwen waarvan één gebouw is ingericht als gastenverblijf en momenteel dienst doet als zorgboerderij voor ouderen is gelegen in het buitengebied van Holtum. Het gastenverblijf is mooi ingericht en van alle benodigde voorzieningen voorzien. De woning met bedrijfsgebouwen is gelegen op een perceel van maar liefst ca. 9.735 m² en biedt voldoende plek voor parkeergelegenheid, een hobbyweide of moestuin.
De locatie biedt een unieke kans voor de liefhebber van landelijk wonen in combinatie met een zorgboerderij aan huis en enige agrarische activiteiten zoals bijvoorbeeld een vorm van grondgebonden landbouw (boomteelt, tuinbouw, akkerbouw) of het hobbymatig houden van dieren. Daarnaast zijn er voldoende mogelijkheden voor uitbreiding binnen de aanwezige bedrijfsgebouwen op locatie, bijvoorbeeld kleinschalige opslag voor een zelfstandig ondernemer.
- Ruime woning met mogelijkheid tot inpandige mantelzorgwoning
- Ruim perceel met multifunctionele bedrijfsgebouwen
- Veel gebruiksmogelijkheden: wonen en werken, gastenverblijf met dagbesteding en hobbyruimtes of B&B
- Grote moestuin om in eigen groente en fruit te voorzien
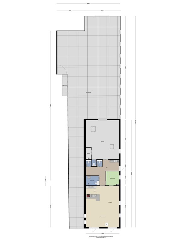
Via de voordeur van de woning komt u binnen in de ruime hal, ingericht met een vloertegel van zwart marmer natuursteen en schoonmetselwerk wanden. In de hal is een garderobenis verwerkt en is de meterkast gesitueerd. Vanuit hier is de keuken en woonkamer bereikbaar en is er een doorgang naar een tweede hal met toegang tot twee slaapkamers begane grond, een toilet, een tweede keuken en de badkamer.
De ruime L-vormige woonkamer is afgewerkt met een donkere eiken parketvloer en deels schoonmetselwerkwanden wat tezamen met de houthaard met schouw zorgt voor een landelijke sfeer. De woonkamer heeft een aangename lichtinval door de grote raampartijen met zicht op de voor- en zijtuin. Bovendien zorgt de glazen pui met loopdeur aan de voorzijde en achterzijde van de woonkamer voor extra natuurlijk licht en brengt de woonkamer in verbinding met de voortuin en serre.
De landelijke leefkeuken in L-opstelling is van diverse inbouwapparatuur voorzien, o.a. een 6-pits gasfornuis met afzuigkap, combi oven/magnetron, koelkast en wasbak. De keuken is afgewerkt met half betegelde wanden en een tegelvloer. De keuken biedt voldoende ruimte voor een gezellige eettafel. Vanuit de keuken is er toegang naar de eerste verdieping en de ruime kelder waar zich de c.v.-ketel bevindt. Een tussenportaal biedt toegang tot een toilet met half betegelde wanden en zwevend closet en een tweede keuken. In het tussenportaal zijn bovendien muurkasten verwerkt voor extra opbergruimte.
Zowel de keuken als de woonkamer staan in verbinding met de serre. Deze lichte tuinkamer met tegelvloer geeft middels een aluminium pui met loopdeur toegang tot de achtertuin. Deze doorgang kan tevens als achterom worden gebruikt.
De tweede keuken in rechte opstelling is tevens van de benodigde inbouwapparatuur voorzien o.a. een inductie kookplaat met afzuigkap, combi oven/magnetron, vaatwasser, koelkast en wasbak. Een portaal geeft bovendien toegang tot twee slaapkamers. De linkerkamer is afgewerkt met stucwerkwanden en een novilon vloer. De rechterkamer doet momenteel dienst als zitkamer maar kan ook als slaapkamer worden ingericht. De kamer is voorzien van een parketvloer en behangwanden. Een muurkast zorgt voor extra opbergruimte.
De badkamer op de begane grond heeft een tegeltjesvloer en half betegelde wanden en is voorzien van een douchecabine, staand toilet en wastafel. Een raam zorgt bovendien voor natuurlijke ventilatie.
De ruime overloop is bereikbaar middels de vaste trap vanuit de keuken. Door een lichtkoepel voorziet de overloop van veel natuurlijk lichtinval. Vanuit hier is er toegang tot drie slaapkamers, een badkamer en twee bergruimtes onder de knieschotten van het dak. De gehele overloop is afgewerkt met een
doorlopende parketvloer, schrootjes wanden en behangwanden. De geheel betegelde badkamer is voorzien van een velux dakraam, ligbad, staand toilet, douchecabine en een wastafel.
De slaapkamer aan de voorzijde van de woning is ruim van opzet en is voorzien van een dakkapel. De kamer is afgewerkt met behangwanden, betimmering met schrootjes en beschikt bovendien over een muurkast. De tweede slaapkamer aan de voorzijde en linkerzijde van de woning is eveneens ruim van opzet en is bovendien voorzien van twee dakkapellen. Een lichtkoepel in het dak zorgt daarnaast voor extra prettig lichtinval. Deze slaapkamer geeft toegang tot een ruime inloopkast. De derde slaapkamer aan de achterzijde van het woonhuis is afgewerkt met behangwanden, betimmering met schrootjes en voorzien van een Velux dakraam.
De tuinkamer/serre geeft toegang tot de achtertuin met een verhard terras met grindtegels, gazon en diverse plantenborders. De voor- en zijtuin zijn omzoomd met een haag. De notenboom in het midden van het erf biedt bovendien een fijne schaduwplek op een zomerse dag. Tevens is er aan beide zijdes van het woonhuis een eigen verharde oprit tot de achterom. De achterom is middels een eigen tuinpoort bij de oprit af te sluiten van de openbare weg.
Bedrijfsgebouwen
Een van de bedrijfsgebouwen is ingericht als gastenverblijf en doet dienst als zorgboerderij met dagbesteding voor maximaal 16 personen per dag. Het gebouw is ingericht met een open verblijfsruimte voorzien van een tegelvloer. Hier bevindt zich een keukenopstelling met kookeiland voorzien van de benodigde inbouwapparatuur o.a. een oven, magnetron, inductiekookplaat, wasbak en een vaatwasser. Het gebouw is opgebouwd uit ijzeren spanten, spouw voorzien van isolatie, geïsoleerd dak en wordt verwarmd middels vloerverwarming, radiatoren en een openhaard. De raampartijen zijn voorzien van kunststof kozijnen met dubbel glas. Twee grote raampartijen zijn bovendien voorzien van een loopdeur. Achter het gemeenschappelijk verblijf bevindt zich een kantoor en een geheel betegeld invalide toilet met douche. In de achterentree bevinden zich ook 2 separate toiletten voor de gasten, deze zijn geheel betegeld en ingericht met een zwevend toilet en fonteintje. Tevens bevindt zich hier ook de aansluiting voor het witgoed en is er nog een extra wastafel gesitueerd. Via de achterentree is er toegang naar buiten en een stal voorzien van vier hobbyruimtes.
De achterentree biedt tevens toegang tot een ruime bergruimte wat dienst doet als opslag en waar een extra toilet voor personeel is gesitueerd, daarnaast bevindt zich hier ook c.v-ketel opstelling (Nefit 2009). Deze ruimte is voorzien van een gevlinderde betonvloer en kan ook worden ingezet voor vrijetijdsbestedingsruimte van de zorgboerderij. De aanwezige lichtstraten zorgen voor veel natuurlijk lichtinval in deze ruimte, dit een must is als het wordt ingezet als verblijfsruimte. Een sectionaaldeur (afm. ca. 2m x 2m) met loopdeur geeft toegang tot een ruime werktuigenberging. De werktuigenberging is voorzien van een ruwe betonvloer en is opgebouwd uit ijzeren spanten met een vrije overspanning en is bedekt met asbestvrije golfplaten dakbedekking (niet geïsoleerd). De gevens zijn deels gemetselde met een afhang met damwand zijgevel, voorzien van schuifdeuren. Aan de achterzijde bevindt zich tevens een sectionaaldeur (afm. 3m x 3m) welke handmatig is te bedienen.
De voormalige varkensstal bestaat uit een centrale gang met toegang tot diverse ruimtes (voormalige kraamafdelingen / biggenafdelingen) welke deels in gebruik zijn als opslag (inrichting geheel of deels verwijderd). Drie ruimtes zijn ingericht als hobbyruimte voor de dagbesteding van de zorgboerderij, er is één werkplaats voor timmerwerken ingericht, één ruimte voor vrijetijdsbesteding en één verblijfsruimte met open haard. De centrale gang is voorzien van dubbele houten toegangsdeuren en diverse loopdeuren naar buiten toe. In de voormalige hygiënesluis bevindt zich nog een doucheruimte met een separaat toilet. Ook bevindt zich hier een keukenblokje met spoelbak. Aan het eind van de centrale gang is een open ruimte in gebruik als werkplaats of opslagruimte. De ruimte is afgewerkt met een betonvloer, een verlaagd plafond geïsoleerd met glaswol en betonsteen binnenwanden met metselstenen buitenwanden voorzien van spouw en isolatie. Aan de onderzijde van het dak is tevens dupanel dakisolatie aanwezig. De spanten van deze stal hebben een geheel vrije overspanning. Indien men enkele voormalige kraam- biggenafdelingen zou verwijderen kan men hier ook een geheel openruimte van maken deze dienst kan doen voor uitbreiding van de zorgboerderij, als ruimte voor machineberging of voor een zelfstandig ondernemer met opslag aan huis. Het dak van deze loods is bedekt met asbestvrije golfplagen en voorzien van zonnepanelen. Deze zijn voor eigen gebruik om zo zelfvoorzienend te kunnen zijn bij de
zorgboerderij. De stal heeft een oppervlakte van ca. 1.144 m² met een nokhoogte van ca. 6,5m en een goothoogte van ca. 2,3m en geeft middels een doorloopgang toegang tot het naastgelegen gebouw.
De tweede voormalige varkensstal is op dit moment ingebruik als machineberging/werkplaats en is inpandig toegankelijk vanuit de eerste loods (gebouw C). De loods is gebouwd met betonstenen binnenmuren en metselstenen buitenmuren voorzien van spouw en isolatie, een gevlinderde betonvloer, stalen spanten en een vrije overspanning met dupanel isolatieplaten aan het onderzijde van het dak. In de loods is krachtstroom aanwezig met diverse water-voorzieningen. De loods is toegankelijk middels een elektrisch bedienbare sectionaaldeur (afm. ca. 4m x 2,4m). Aan deachterzijde van deze loods is nog een voormalige biggenafdeling aanwezig, deze is niet meer in gebruik en kan gesaneerd worden. De loods heeft een oppervlakte van ca. 252 m² met een nokhoogte van ca. 4,5m en een goothoogte van ca. 2,3m. Naast de loods is aan de rechterzijde een tunnelkas gelegen waar hobbymatig diverse groenten verbouwd kunnen worden.
Deze landelijk gelegen (bedrijfs-)woning met bedrijfsgebouwen waarvan één gebouw is ingericht als gastenverblijf en momenteel dienst doet als zorgboerderij voor ouderen is gelegen in het buitengebied van Holtum. Het gastenverblijf is mooi ingericht en van alle benodigde voorzieningen voorzien. De woning met bedrijfsgebouwen is gelegen op een perceel van maar liefst ca. 9.735 m² en biedt voldoende plek voor parkeergelegenheid, een hobbyweide of moestuin.
De locatie biedt een unieke kans voor de liefhebber van landelijk wonen in combinatie met een zorgboerderij aan huis en enige agrarische activiteiten zoals bijvoorbeeld een vorm van grondgebonden landbouw (boomteelt, tuinbouw, akkerbouw) of het hobbymatig houden van dieren. Daarnaast zijn er voldoende mogelijkheden voor uitbreiding binnen de aanwezige bedrijfsgebouwen op locatie, bijvoorbeeld kleinschalige opslag voor een zelfstandig ondernemer.
- Ruime woning met mogelijkheid tot inpandige mantelzorgwoning
- Ruim perceel met multifunctionele bedrijfsgebouwen
- Veel gebruiksmogelijkheden: wonen en werken, gastenverblijf met dagbesteding en hobbyruimtes of B&B
- Grote moestuin om in eigen groente en fruit te voorzien
Via de voordeur van de woning komt u binnen in de ruime hal, ingericht met een vloertegel van zwart marmer natuursteen en schoonmetselwerk wanden. In de hal is een garderobenis verwerkt en is de meterkast gesitueerd. Vanuit hier is de keuken en woonkamer bereikbaar en is er een doorgang naar een tweede hal met toegang tot twee slaapkamers begane grond, een toilet, een tweede keuken en de badkamer.
De ruime L-vormige woonkamer is afgewerkt met een donkere eiken parketvloer en deels schoonmetselwerkwanden wat tezamen met de houthaard met schouw zorgt voor een landelijke sfeer. De woonkamer heeft een aangename lichtinval door de grote raampartijen met zicht op de voor- en zijtuin. Bovendien zorgt de glazen pui met loopdeur aan de voorzijde en achterzijde van de woonkamer voor extra natuurlijk licht en brengt de woonkamer in verbinding met de voortuin en serre.
De landelijke leefkeuken in L-opstelling is van diverse inbouwapparatuur voorzien, o.a. een 6-pits gasfornuis met afzuigkap, combi oven/magnetron, koelkast en wasbak. De keuken is afgewerkt met half betegelde wanden en een tegelvloer. De keuken biedt voldoende ruimte voor een gezellige eettafel. Vanuit de keuken is er toegang naar de eerste verdieping en de ruime kelder waar zich de c.v.-ketel bevindt. Een tussenportaal biedt toegang tot een toilet met half betegelde wanden en zwevend closet en een tweede keuken. In het tussenportaal zijn bovendien muurkasten verwerkt voor extra opbergruimte.
Zowel de keuken als de woonkamer staan in verbinding met de serre. Deze lichte tuinkamer met tegelvloer geeft middels een aluminium pui met loopdeur toegang tot de achtertuin. Deze doorgang kan tevens als achterom worden gebruikt.
De tweede keuken in rechte opstelling is tevens van de benodigde inbouwapparatuur voorzien o.a. een inductie kookplaat met afzuigkap, combi oven/magnetron, vaatwasser, koelkast en wasbak. Een portaal geeft bovendien toegang tot twee slaapkamers. De linkerkamer is afgewerkt met stucwerkwanden en een novilon vloer. De rechterkamer doet momenteel dienst als zitkamer maar kan ook als slaapkamer worden ingericht. De kamer is voorzien van een parketvloer en behangwanden. Een muurkast zorgt voor extra opbergruimte.
De badkamer op de begane grond heeft een tegeltjesvloer en half betegelde wanden en is voorzien van een douchecabine, staand toilet en wastafel. Een raam zorgt bovendien voor natuurlijke ventilatie.
De ruime overloop is bereikbaar middels de vaste trap vanuit de keuken. Door een lichtkoepel voorziet de overloop van veel natuurlijk lichtinval. Vanuit hier is er toegang tot drie slaapkamers, een badkamer en twee bergruimtes onder de knieschotten van het dak. De gehele overloop is afgewerkt met een
doorlopende parketvloer, schrootjes wanden en behangwanden. De geheel betegelde badkamer is voorzien van een velux dakraam, ligbad, staand toilet, douchecabine en een wastafel.
De slaapkamer aan de voorzijde van de woning is ruim van opzet en is voorzien van een dakkapel. De kamer is afgewerkt met behangwanden, betimmering met schrootjes en beschikt bovendien over een muurkast. De tweede slaapkamer aan de voorzijde en linkerzijde van de woning is eveneens ruim van opzet en is bovendien voorzien van twee dakkapellen. Een lichtkoepel in het dak zorgt daarnaast voor extra prettig lichtinval. Deze slaapkamer geeft toegang tot een ruime inloopkast. De derde slaapkamer aan de achterzijde van het woonhuis is afgewerkt met behangwanden, betimmering met schrootjes en voorzien van een Velux dakraam.
De tuinkamer/serre geeft toegang tot de achtertuin met een verhard terras met grindtegels, gazon en diverse plantenborders. De voor- en zijtuin zijn omzoomd met een haag. De notenboom in het midden van het erf biedt bovendien een fijne schaduwplek op een zomerse dag. Tevens is er aan beide zijdes van het woonhuis een eigen verharde oprit tot de achterom. De achterom is middels een eigen tuinpoort bij de oprit af te sluiten van de openbare weg.
Bedrijfsgebouwen
Een van de bedrijfsgebouwen is ingericht als gastenverblijf en doet dienst als zorgboerderij met dagbesteding voor maximaal 16 personen per dag. Het gebouw is ingericht met een open verblijfsruimte voorzien van een tegelvloer. Hier bevindt zich een keukenopstelling met kookeiland voorzien van de benodigde inbouwapparatuur o.a. een oven, magnetron, inductiekookplaat, wasbak en een vaatwasser. Het gebouw is opgebouwd uit ijzeren spanten, spouw voorzien van isolatie, geïsoleerd dak en wordt verwarmd middels vloerverwarming, radiatoren en een openhaard. De raampartijen zijn voorzien van kunststof kozijnen met dubbel glas. Twee grote raampartijen zijn bovendien voorzien van een loopdeur. Achter het gemeenschappelijk verblijf bevindt zich een kantoor en een geheel betegeld invalide toilet met douche. In de achterentree bevinden zich ook 2 separate toiletten voor de gasten, deze zijn geheel betegeld en ingericht met een zwevend toilet en fonteintje. Tevens bevindt zich hier ook de aansluiting voor het witgoed en is er nog een extra wastafel gesitueerd. Via de achterentree is er toegang naar buiten en een stal voorzien van vier hobbyruimtes.
De achterentree biedt tevens toegang tot een ruime bergruimte wat dienst doet als opslag en waar een extra toilet voor personeel is gesitueerd, daarnaast bevindt zich hier ook c.v-ketel opstelling (Nefit 2009). Deze ruimte is voorzien van een gevlinderde betonvloer en kan ook worden ingezet voor vrijetijdsbestedingsruimte van de zorgboerderij. De aanwezige lichtstraten zorgen voor veel natuurlijk lichtinval in deze ruimte, dit een must is als het wordt ingezet als verblijfsruimte. Een sectionaaldeur (afm. ca. 2m x 2m) met loopdeur geeft toegang tot een ruime werktuigenberging. De werktuigenberging is voorzien van een ruwe betonvloer en is opgebouwd uit ijzeren spanten met een vrije overspanning en is bedekt met asbestvrije golfplaten dakbedekking (niet geïsoleerd). De gevens zijn deels gemetselde met een afhang met damwand zijgevel, voorzien van schuifdeuren. Aan de achterzijde bevindt zich tevens een sectionaaldeur (afm. 3m x 3m) welke handmatig is te bedienen.
De voormalige varkensstal bestaat uit een centrale gang met toegang tot diverse ruimtes (voormalige kraamafdelingen / biggenafdelingen) welke deels in gebruik zijn als opslag (inrichting geheel of deels verwijderd). Drie ruimtes zijn ingericht als hobbyruimte voor de dagbesteding van de zorgboerderij, er is één werkplaats voor timmerwerken ingericht, één ruimte voor vrijetijdsbesteding en één verblijfsruimte met open haard. De centrale gang is voorzien van dubbele houten toegangsdeuren en diverse loopdeuren naar buiten toe. In de voormalige hygiënesluis bevindt zich nog een doucheruimte met een separaat toilet. Ook bevindt zich hier een keukenblokje met spoelbak. Aan het eind van de centrale gang is een open ruimte in gebruik als werkplaats of opslagruimte. De ruimte is afgewerkt met een betonvloer, een verlaagd plafond geïsoleerd met glaswol en betonsteen binnenwanden met metselstenen buitenwanden voorzien van spouw en isolatie. Aan de onderzijde van het dak is tevens dupanel dakisolatie aanwezig. De spanten van deze stal hebben een geheel vrije overspanning. Indien men enkele voormalige kraam- biggenafdelingen zou verwijderen kan men hier ook een geheel openruimte van maken deze dienst kan doen voor uitbreiding van de zorgboerderij, als ruimte voor machineberging of voor een zelfstandig ondernemer met opslag aan huis. Het dak van deze loods is bedekt met asbestvrije golfplagen en voorzien van zonnepanelen. Deze zijn voor eigen gebruik om zo zelfvoorzienend te kunnen zijn bij de
zorgboerderij. De stal heeft een oppervlakte van ca. 1.144 m² met een nokhoogte van ca. 6,5m en een goothoogte van ca. 2,3m en geeft middels een doorloopgang toegang tot het naastgelegen gebouw.
De tweede voormalige varkensstal is op dit moment ingebruik als machineberging/werkplaats en is inpandig toegankelijk vanuit de eerste loods (gebouw C). De loods is gebouwd met betonstenen binnenmuren en metselstenen buitenmuren voorzien van spouw en isolatie, een gevlinderde betonvloer, stalen spanten en een vrije overspanning met dupanel isolatieplaten aan het onderzijde van het dak. In de loods is krachtstroom aanwezig met diverse water-voorzieningen. De loods is toegankelijk middels een elektrisch bedienbare sectionaaldeur (afm. ca. 4m x 2,4m). Aan deachterzijde van deze loods is nog een voormalige biggenafdeling aanwezig, deze is niet meer in gebruik en kan gesaneerd worden. De loods heeft een oppervlakte van ca. 252 m² met een nokhoogte van ca. 4,5m en een goothoogte van ca. 2,3m. Naast de loods is aan de rechterzijde een tunnelkas gelegen waar hobbymatig diverse groenten verbouwd kunnen worden.
Kenmerken
| Overdracht | |
|---|---|
| Referentienummer | 68059/35191 |
| Vraagprijs | € 765.000,- k.k. |
| Status | Verkocht onder voorbehoud |
| Laatste wijziging | Woensdag 1 oktober 2025 |
| Bouw | |
|---|---|
| Type object | ALV overig |
| Soort bouw | Bestaande bouw |
| Oppervlaktes en inhoud | |
|---|---|
| Perceeloppervlakte | 97 a 35 ca |