Verkocht: Hunnissenstraat, 6011 RG Ell
€ 30.000,- k.k.
| Type object | Losse grond |
|---|
| Status | Verkocht |
|---|
Beschrijving
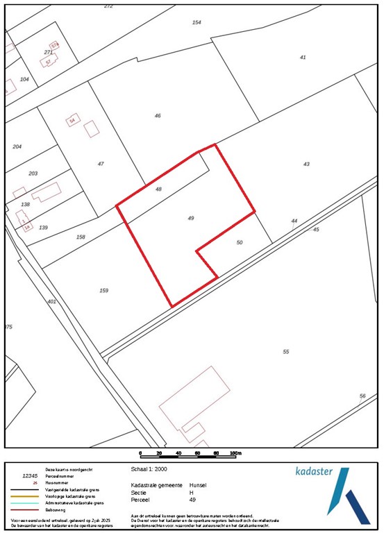
Bent u op zoek naar uw eigen stukje natuur? Bij deze bieden wij u een perceel bos aan, groot ca. 01.23.35 ha, gelegen in een natuurrijke/agrarische omgeving aan de rand van Hunsel. Het perceel is toegankelijk vanuit de Hunnissenstraat. Het perceel is omringd door landbouwgrond met aangrenzend een perceeltje met een fruitgaard met peren.
Het perceel is rechthoekig van vorm en biedt volop kansen voor mensen die opzoek zijn naar een bos voor recreatie, houtwinning, vogelspotten, natuurbeleving of als belegging. Mogelijkheden genoeg met uw eigen stukje natuur.
Kadastrale gegevens
Hunsel, sectie H, nummer 48 en 49, tezamen groot ca. 01.23.35 ha
Bodem en gebruik
Het perceel is bebost met onder andere volwassen eiken met een stamdikte van veelal tussen 25-40 cm. De grondsoort betreft zandgrond. Het perceel is als agrarisch aangemerkt, maar als natuur (bos) in gebruik.
Bijzonderheden
- Er rust geen jachtrecht op het perceel.
- Op het perceel rust een zakelijk recht ten behoeve van Gasunie Transport Services (gasleiding).
Aanvaarding
In overleg
Vraagprijs
€ 30.000,- k.k.
Voor meer informatie kunt u contact opnemen met:
Nard Driessen (makelaar)
t: 06 4859 2874
e: ndriessen@arvalis.nl
Arvalis kantoor Roermond
Steegstraat 5
6041 EA ROERMOND
t: 0475 355 700
Het perceel is rechthoekig van vorm en biedt volop kansen voor mensen die opzoek zijn naar een bos voor recreatie, houtwinning, vogelspotten, natuurbeleving of als belegging. Mogelijkheden genoeg met uw eigen stukje natuur.
Kadastrale gegevens
Hunsel, sectie H, nummer 48 en 49, tezamen groot ca. 01.23.35 ha
Bodem en gebruik
Het perceel is bebost met onder andere volwassen eiken met een stamdikte van veelal tussen 25-40 cm. De grondsoort betreft zandgrond. Het perceel is als agrarisch aangemerkt, maar als natuur (bos) in gebruik.
Bijzonderheden
- Er rust geen jachtrecht op het perceel.
- Op het perceel rust een zakelijk recht ten behoeve van Gasunie Transport Services (gasleiding).
Aanvaarding
In overleg
Vraagprijs
€ 30.000,- k.k.
Voor meer informatie kunt u contact opnemen met:
Nard Driessen (makelaar)
t: 06 4859 2874
e: ndriessen@arvalis.nl
Arvalis kantoor Roermond
Steegstraat 5
6041 EA ROERMOND
t: 0475 355 700
Kenmerken
| Overdracht | |
|---|---|
| Referentienummer | 68059/37872 |
| Vraagprijs | € 30.000,- k.k. |
| Status | Verkocht |
| Laatste wijziging | Zondag 10 augustus 2025 |
| Bouw | |
|---|---|
| Type object | Losse grond |
| Soort bouw | Bestaande bouw |