Beschrijving

(English text below)
In het pittoreske Uitgeest, met strand op fiets afstand, heeft u nu de mogelijkheid om uw droomhuis te laten bouwen op een unieke plek in Noord Holland. Vrij uitzicht en toch in de dorpskern, met alle faciliteiten op loopafstand, zorgvoorzieningen, openbaar vervoer, winkels en natuurlijk het strand.
Direct beschikbaar perceel van 531 M2 met mogelijkheid tot bouw van een villa met een vloer oppervlak van 206 M2, welke reeds is goedgekeurd door de Gemeente en intussen al in het bestemmingsplan is opgenomen.
Eventuele toegestane uitbreidingen zoals uitbouw, balkon c.q. terras zijn nog mogelijk.
Vanuit de villa is er vrij uitzicht en de dorpskern met winkels is enige minuten lopen.
Parkeren op eigen terrein of openbare parkeerplaatsen voor de percelen. Uitvalswegen zowel richting het Noorden, als naar  het Zuiden (Alkmaar, Haarlem, Amsterdam, Schiphol. Utrecht) op nog geen 5 minuten rijden.
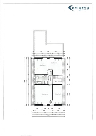
U ziet een tekening van een mogelijk huis, maar de bouwfirma Groothuis te Emmeloord heeft een site waar men precies het soort huis en alle materialen kan invullen om tot een keuze van uw droomhuis te komen.

Grondonderzoek en historisch onderzoek zijn beschikbaar.
Vastlegging perceelgrens is aangevraagd bij het kadaster, zodat er op dit moment nog extra meters bespreekbaar zijn, zolang het kadaster deze nog niet heeft vastgelegd.
Op dit moment is er nog een grote schuur op het erf beschikbaar, welke nog niet is verwijderd t.b.v. de voorkeur van de koper. 
Kom kijken en u heeft uw (t)huis gevonden!

Deze informatie is door ons met de nodige zorgvuldigheid samengesteld. Onzerzijds wordt echter geen enkele aansprakelijkheid aanvaard voor enige onvolledigheid, onjuistheid of anderszins, dan wel de gevolgen daarvan. Alle opgegeven maten en oppervlakten zijn indicatief. Geïnteresseerde heeft zijn/haar eigen onderzoek plicht naar alle zaken die voor hem of haar van belang zijn. Met betrekking tot deze woning is de makelaar adviseur van verkoper. Wij adviseren u een deskundige makelaar in te schakelen die u begeleidt bij het aankoopproces. Indien u specifieke wensen heeft omtrent de woning, adviseren wij u deze tijdig kenbaar te maken aan uw aankopend makelaar en hiernaar zelfstandig onderzoek te (laten) doen. Indien u geen deskundige vertegenwoordiger inschakelt, acht u zich volgens de wet deskundige genoeg om alle zaken die van belang zijn te kunnen overzien. Koopcontract wordt bij de Notaris opgemaakt, onderdeel van de kosten koper.


In this pittoresque Dutch village Uitgeest, with the beach on a bike ride distance and the main highways (Amsterdam, Schiphol Airport, Utrecht, Haalrlem, Alkmaar) on a 5 minute drive, there is a possibility to build your dream house of 206 M2 (legal enlargement still possible) on a lot of 531 M2.
The Lot is available directly, research available and the right to build the villa is already approved and adopted in the development plan of the Municipality. 
The free view facing the old Dutch houses is a gem and shops, care supplies, public transport are all on a few minutes walk, which makes this spot a catch in the area.
Parking on own ground and/or in front of the villa, free of charge.
The drawing of the house on the picture is an example, the building company Groothuis in Emmeloord has a site where one can pick and choose the kind of house one likes and even with all kinds of materials or colores.

Historical research and soil investigation are done and are available. 
There is a large barn still on the grounds, for te buyer to decide to keep it or not, because if it is taken away, a new one of this proportion will not be possible anymore.
Come and have a look and you have found yourself a(t) home!

This information has been compiled by us with the necessary care. On our part, however, no liability is accepted for any incompleteness, inaccuracy or otherwise, or the consequences thereof. All specified sizes and surfaces are indicative. The interested party has his own duty to investigate all matters that are important to him or her. With regard to this property the agent is advisor to lessor. We advise you to engage an expert agent who will guide you through the rental process. If you have specific wishes regarding the property, we advise you to make this known to your real estate agent or relocator in time and to have an independent investigation done. If you do not engage an expert representative, you consider yourself expert enough according to the law to be able to oversee all matters that are important.
Buying contract will be done at Notary of choice, in buyers costs.

Kenmerken