Beschrijving
Goed onderhouden gezinswoning met 4 slaapkamers in Hengelo
Deze goed onderhouden woning heeft alles in huis voor comfortabel wonen! De sfeervolle uitgebouwde woonkamer met lichtkoepel zorgt voor veel licht en ruimte. Met in totaal 4 slaapkamers, een complete keuken en een moderne badkamer is dit een ideale gezinswoning. Daarnaast is er een multifunctionele berging met airco, die voorheen in gebruik is geweest als salon – ideaal voor werken aan huis, hobby of praktijkruimte.
De woning is merendeel voorzien van kunststof kozijnen en beschikt over een eigen oprit en een aangebouwde overkapping in de tuin, waar je het hele jaar door beschut kunt genieten.
Indeling
Begane grond
Via de entree kom je in de hal met trapkast, meterkast en trapopgang naar de eerste verdieping. Ook bevindt zich hier een eenvoudige toiletruimte. De sfeervolle uitgebouwde woonkamer is voorzien van een lichtkoepel en schuifpui naar de tuin. De dichte keuken is uitgerust met diverse inbouwapparatuur, waaronder een 5-pits gaskookplaat, combi-magnetron, koelkast, vaatwasser en afzuigkap. Aansluitend vind je de bijkeuken met wastafel, wasmachineaansluiting en opstelplaats voor de HR combi-ketel.
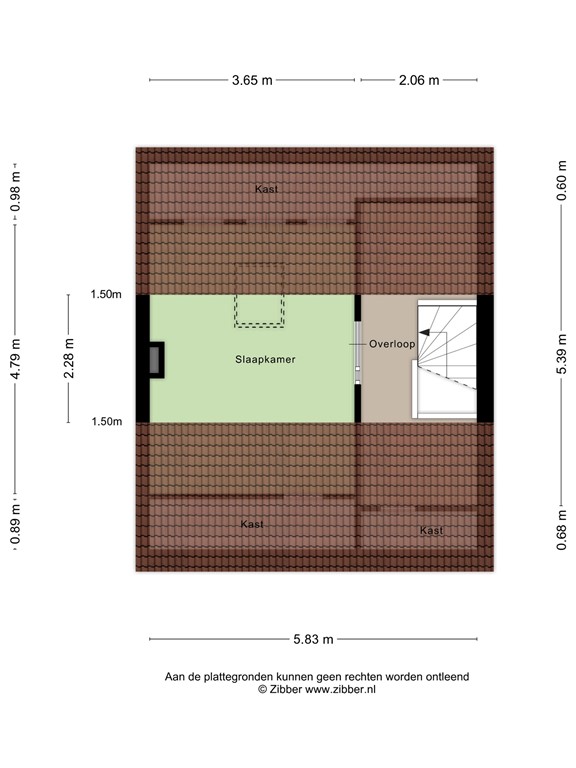
Eerste verdieping
De overloop biedt toegang tot drie slaapkamers en een moderne badkamer, voorzien van douchecabine, hangend toilet en wastafelmeubel.
Tweede verdieping
Via een vaste trap bereik je de tweede verdieping. Hier bevindt zich de vierde slaapkamer, voorzien van een dakraam.
Pluspunten van deze woning:
• Sfeervolle uitgebouwde woonkamer met lichtkoepel en schuifpui
• 4 slaapkamers
• Moderne badkamer
• Multifunctionele berging met airco (voorheen salon)
• Goed onderhouden en merendeel voorzien van kunststof kozijnen
• Eigen oprit
• Aangebouwde overkapping in de tuin
Een ruime en complete woning met veel mogelijkheden!
Overige informatie:
• In de koopakte zal een 10% waarborgsom of bankgarantie worden opgenomen.
• Er wordt een ouderdoms- en een asbestclausule in de te sluiten koopovereenkomst opgenomen.
• De koop is pas definitief wanneer beide partijen de koopovereenkomst getekend hebben.
• Aanvaarding: in overleg.
Deze presentatie is informatief en geheel vrijblijvend. Aan eventuele onjuistheden kunnen geen rechten worden ontleend.
Plattegronden
176919262_1579699_casto_begane_grond_first_design_20250917_865032.jpg
176919262_1579699_casto_eerste_verdiepi_first_design_20250917_696ed4.jpg
176919262_1579699_casto_tweede_verdiepi_first_design_20250917_7ab70f.jpg
176919262_1579699_casto_tuinhuis_first_design_20250917_a5ffd3.jpg