| Prijs | € 1.150.000,- k.k. |
| Type object | Woonhuis, bungalow, vrijstaande woning |
| Perceeloppervlakte | 3.345 m² |
| Woonoppervlakte | 115 m² |
| Aanvaarding | In overleg |
| Status | Nieuw in verkoop |
Wonen op de Veluwe – Jouw unieke vrijstaande bungalow met volop mogelijkheden! Heb je altijd al gedroomd van een huis midden in de natuur, waar bosrijke rust en veelzijdige mogelijkheden samenkomen? Stel je eens voor: Wakker worden met het gefluit van vogels en regelmatig een glimp opvangen van herten die zich tussen de bomen wagen. De Garderenseweg 421 in Ermelo, net buiten Garderen, biedt precies dat plaatje, én nog veel meer! Een paradijs in het groen Deze vrijstaande bungalow ademt natuur, ruimte en vrijheid. Gelegen aan de rand van de prachtige Veluwse bossen, vind je hier letterlijk rust en reuring tegelijk. Je loopt zo het bos in voor een ochtendwandeling, hardloopsessie of gewoon een frisse neus. Vanuit de tuin zie je eekhoorntjes scharrelen en spot je zomaar een ree. Hoe bijzonder is dat! Ruimte voor alles wat je wilt doen Met het complete woonprogramma op de begane grond is dit huis ideaal voor iedereen: jonge gezinnen die kinderen graag buiten laten spelen, doorstromers die toe zijn aan meer comfort, en ouderen die gelijkvloers willen wonen maar wél actief en betrokken willen blijven. Er is genoeg plek voor iedereen; binnen én buiten. Op het ruime perceel heb je letterlijk de ruimte. Aan schuren geen gebrek! Wat je hobby ook is, van klussen tot tuinieren of het houden van kleine dieren – er zijn mogelijkheden te over. Droom jij van kippen, konijntjes of misschien zelfs een paard aan huis? Alles kan! Je hoeft alleen je plannen nog uit te voeren. Vakantiehuisje als extraatje Hebben we trouwens al verteld dat er naast het woonhuis een extra huisje staat? Dit tweede huisje biedt een zee aan gebruiksmogelijkheden. Gebruik het als knusse vakantiewoning, verhuur het als B&B, of stel opa en oma in de gelegenheid dichtbij te vertoeven – zonder in te leveren op privacy. Hoe handig is dat? Centraal gelegen met de natuur als buur Ja, je woont hier écht midden in het groen, maar toch ben je nooit ver weg van alles wat je nodig hebt. De dorpjes Garderen, Uddel, Speuld en Ermelo liggen verrassend dichtbij. Dus even boodschappen doen, even gezellig koffie drinken of de kinderen naar school brengen? Dat is allemaal zo gepiept. Til het leven naar een hoger plan met een dagelijkse portie natuur en gemak! Ben jij klaar om hier thuis te komen? Dit is niet zomaar een woning, maar een kans om écht anders te gaan wonen. Of je nu jong bent en ruimte zoekt voor groei en avontuur; of juist wat ouder en verlangt naar comfort zonder concessies – op Garderenseweg 421 zit je goed. Nieuwsgierig geworden? Laat dan snel van je horen, want deze unieke plek op de Veluwe vindt niet elke dag een nieuwe eigenaar. Jouw nieuwe leven in het groen begint misschien wel hier! Wil je langskomen? Kom vooral sfeer proeven – wij laten je met alle plezier de mogelijkheden zien!
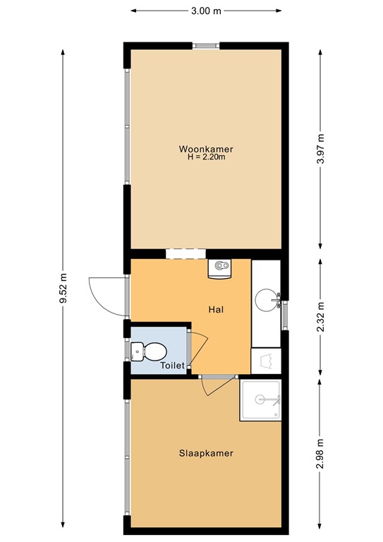
Via de voorentree komt men in de hal. Hier treft men de garderobe en toegang tot het toilet, berging/meterkast en toegang tot de woonkamer. Bij binnenkomst van de gezellige L vormige woonkamer overvalt het weidse uitzicht je meteen. Zowel voor als achter. De woonkamer is voorzien van een fijne houtkachel haard. Vanuit de woonkamer heeft men ook toegang tot een slaapkamer. Vanuit de hal heeft men tevens toegang tot de woonkeuken. De keuken is voorzien van een rechte keukenopstelling met de benodigde inbouw keukenapparatuur. ook hier weer het weidse uitzicht. De keuken geeft tevens toegang tot de bijkeuken/centrale hal met achter entree. De bijkeuken is voorzien van vaste kast en heeft toegang tot de badkamer. Badkamer is voorzien van wastafel inloopdouche en hier bevinden de witgoedaansluitingen van wasmachine en droger. Vanuit de centrale hal heeft men toegang tot een tweetal ruime slaapkamers. Eén slaapkamer is voorzien van terras deur. De vakantie woning betreed je via de voordeur en komt men in de hal met keukenopstelling en toegang tot het toilet. Tevens vanuit de hal toegang tot woonkamer met veel daglicht toetreding en ook een weids uitzicht. Vanuit de hal treft men de slaapkamer en douche.
De zolder is te bereiken met een vlizotrap.
De tuin is rondom de woning zeer royaal en fraai aangelegd. Door het ruime gazon is het ook nog eens een onderhoudsvriendelijke tuin. Bij de vakantie woning is ook een vijverpartij aangelegd. In de tuin rondom zijn diverse terrassen gerealiseerd om in de zon of schaduw te zitten. De ruime oprit is voorzien van afsluitbare inrijpoort en bedekt met grind wat het plaatje wel compleet maakt.
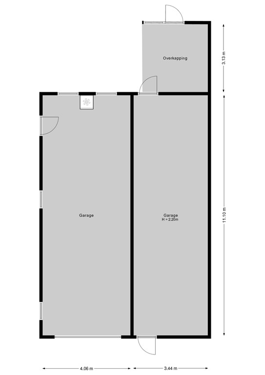
Gezien de situering van de gebouwen op het midden van het perceel heeft men een grote tuin rondom en een groot achter erf. Op het erf staan diversen gebouwen die gebruikt worden als garages, werkplaats, dieren verblijven, machinebergingen en ook een ruim grasveld voor hobbydieren of een paard . Het gehele object is omringd door mooie oude eikenbomenbos met voor gelegen weids uitzicht over de landerijen. Dit gelegen net buiten het pittoreske dorp Garderen in het buurtschap Houtdorp en in de nabijheid van de dorpen Speuld, Ermelo, Voorthuizen, Putten en Harderwijk. Een greep uit de pluspunten: - Vrijstaande bungalow - Woonprogramma volledig op de begane grond - Ruim perceel met volop privacy - Diverse schuren voor hobby, werkplaats, dieren of opslag - Extra huisje: perfect als vakantieverblijf, gastenverblijf of verhuur - Midden in de natuur, direct aan de Veluwse bossen - Gezellige dorpen op korte afstand - Geschikt voor alle leeftijden en woonwensen
| Referentienummer | VGP2300187 |
| Vraagprijs | € 1.150.000,- k.k. |
| Elektra | € 70,- |
| Gas | € 196,- |
| Water | € 33,- |
| Inrichting | Niet gestoffeerd |
| Inrichting | Niet gemeubileerd |
| Status | Nieuw in verkoop |
| Aanvaarding | In overleg |
| Type object | Woonhuis, bungalow, vrijstaande woning |
| Soort bouw | Bestaande bouw |
| Toegankelijkheid | Senioren |
| Bouwperiode | 1960 |
| Dakbedekking | Dakpannen |
| Type dak | Zadeldak |
| Isolatievormen | Gedeeltelijk dubbel glas Muurisolatie Spouwmuren |
| Perceeloppervlakte | 3.345 m² |
| Woonoppervlakte | 115 m² |
| Inhoud | 520 m³ |
| Oppervlakte overige inpandige ruimten | 23 m² |
| Oppervlakte externe bergruimte | 200 m² |
| Oppervlakte gebouwgebonden buitenruimte | 2 m² |
| Aantal bouwlagen | 2 |
| Aantal kamers | 4 (waarvan 3 slaapkamers) |
| Aantal badkamers | 1 (en 1 apart toilet) |
| Ligging | Aan bosrand Beschutte ligging Buiten bebouwde kom Dichtbij openbaar vervoer In bosrijke omgeving Nabij school Vrij uitzicht Zelfstandig |
| Type | Tuin rondom |
| Hoofdtuin | Ja |
| Oriëntering | Zuid-west |
| Staat | Prachtig aangelegd |
| Energielabel | E |
| CV ketel | Combi ketel |
| Warmtebron | Gas |
| Bouwjaar | 2016 |
| Combiketel | Ja |
| Eigendom | Eigendom |
| Aantal parkeerplaatsen | 6 |
| Aantal overdekte parkeerplaatsen | 2 |
| Warm water | CV-ketel |
| Verwarmingssysteem | Centrale verwarming Houtkachel |
| Badkamervoorzieningen | Douche Wasmachineaansluiting Wastafel |
| Parkeergelegenheid | Vrijstaande stenen garage |
| Tuin aanwezig | Ja |
| Heeft een garage | Ja |
| Beschikt over een internetverbinding | Ja |
| Kadastrale aanduiding | Ermelo C 768 |
| Perceeloppervlakte | 3.345 m² |
| Omvang | Geheel perceel |
| Eigendomsituatie | Eigen grond |