| Prijs | € 679.000,- k.k. |
| Type object | Woonhuis, eengezinswoning, twee onder een kap woning |
| Perceeloppervlakte | 1.020 m² |
| Woonoppervlakte | 125 m² |
| Aanvaarding | In overleg |
| Status | Onder bod |
Wonen nabij het mooiste natuurgebied van Nederland Ben je op zoek naar een plek waar rust, ruimte en natuur samenkomen? Stop dan met zoeken en laat je verrassen door De Beek 77-2 in Ermelo. Hier krijg je letterlijk het gevoel ‘buiten te wonen’, zonder concessies te doen aan comfort of bereikbaarheid. Unieke locatie: jouw tuin grenst aan landgoed Staverden Het is moeilijk te geloven, maar dit droomhuis ligt met de achtertuin pal aan het uitgestrekte Landgoed Staverden. Wandel na een drukke werkdag zo het bos in, voel ’s ochtends de dauw onder je voeten tijdens je eerste kop koffie. En alsof dat nog niet genoeg is, heb je aan de voorkant de prachtige Garderens heide, waar je eindeloos kunt struinen. Puur natuur waar je kijkt: rustzoekers, avontuurlijke gezinnen en natuurgenieters halen hier hun hart op. Ruimte om te leven (én dromen) – 1.020 m² groot perceel Met een perceel van 1.020 vierkante meter is er alle ruimte voor tuinplannen. Zie je het al voor je? Een trampoline voor de kinderen, een moestuin of juist een stijlvolle loungehoek. De tuin mag jij nog helemaal zelf aanleggen. Liever alles strak en onderhoudsvriendelijk of juist weelderig en groen? Je bepaalt het helemaal zelf, welk idee je ook hebt. Casco opgeleverd: creëer je eigen thuis Deze twee-onder-één-kap woning wordt casco opgeleverd. Dat betekent dat je vrij bent om de indeling en afwerking volledig naar eigen smaak en wensen in te richten. Heb je altijd al een grote leefkeuken gewild of een luxe inloopkast? Hier kan het allemaal! Of je nu juist een knusse sfeer wilt creëren voor je gezin, een levensloopbestendig huis zoekt of midden in de natuur wilt genieten van je pensioen: het kan hier allemaal. Waar wacht je nog op? Twee-onder-één-kapper met het energiezuinige label A+ Een duurzaam huis is inmiddels eerder regel dan uitzondering, maar deze woning gaat nét een stapje verder. Met energielabel A+ ben je verzekerd van een comfortabel en toekomstbestendig thuis. Goed voor het milieu én voor je portemonnee. Dankzij uitstekende isolatie en moderne technieken houd je de energierekening lekker laag. Voor wie is dit unieke huis? Misschien ben je starter en droomt je van je eerste échte gezinswoning, met ruimte om op te groeien. Of misschien wil je doorstromen naar een grotere, comfortabelere plek zonder in te boeten op omgeving. Ook voor senioren die houden van rust en natuur, is dit huis perfect. Vrijstaand wonen, zonder directe buren aan de achterkant – het geeft een gevoel van vrijheid dat je zelden vindt. Goed bereikbaar, voorzieningen dichtbij Hoewel je hier heerlijk midden in het groen zit, zijn de dagelijkse voorzieningen nooit ver weg. Op enkele fietsminuten vind je supermarkten, scholen, sportclubs en andere voorzieningen die het dagelijkse leven prettig maken. Pak de fiets naar het centrum van Ermelo, Uddel of Garderen, of ga lekker op ontdekkingstocht in de omliggende natuurgebieden. De laatste kans – nog maar één te koop! Deze nieuwbouwwoning is onderdeel van een fraaie ontwikkeling. Belangrijk om te weten: er is nog maar één woning beschikbaar! Mis je kans niet om de trotse eigenaar te worden van deze unieke plek. Samengevat: waarom De Beek 77-2 jouw nieuwe thuis wordt - Twee-onder-één-kap woning (nog 1 te koop!) - Casco opgeleverd: inrichten naar eigen wens - Perceel van maar liefst 1.020 m² - Achtertuin aan Landgoed Staverden, voortuin bij de Garderense Heide - Energiezuinig met label A+ - Dichtbij alle voorzieningen, maar midden in de natuur Kortom, dit is dé kans om je woondromen waar te maken. Maak vandaag nog een afspraak om de mogelijkheden samen te bespreken. Twijfel niet te lang, want deze unieke kans zal snel voorbij zijn! Bel of mail ons gerust voor meer informatie of om een bezichtiging te plannen. We laten je deze bijzondere plek graag zien!
Achter entree: royale hal die toegang geeft tot meterkast bijkeuken/wasruimte, kantoor toilet, woonkamer en woonkeuken. En vaste trapopgang naar eerste verdieping. Door de situering van de raampartijen heeft men in alle ruimtes veel daglichttoetreding.
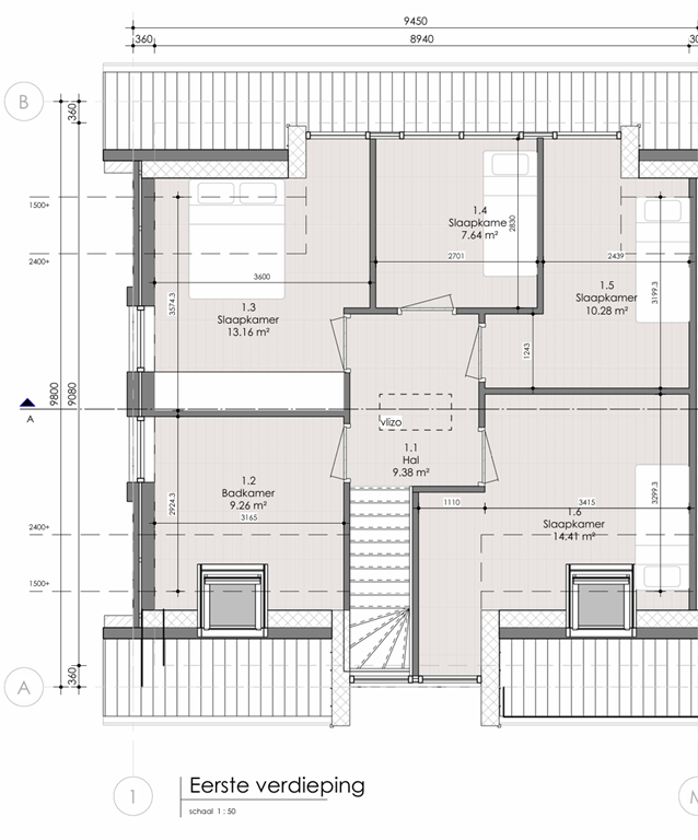
Met vaste trapopgang komt men op de eerste verdieping met betonnen verdiepingsvloer komt men in de royale en centrale overloop. Op de overloop treft men een vijftal deuren aan die toegang bieden tot vier slaapkamers en badkamer.
Veelzijdige tuin rondom Stel je eens voor: lange zomeravonden op het terras, een spelende hond op het gras, moes-tuinieren wanneer het jou uitkomt of je eigen stukje paradijs creëren met bloemen, struiken en bomen. Dankzij de tuin rondom krijg je hier alle gelegenheid voor.
Statige traditionele bouw en betrouwbare woningkeur De architectuur straalt tijdloze rust en kwaliteit uit. Stevig gebouwd in 2025, voorzien van een 'algemene woningkeur' en aangemerkt als 'normaal', zodat je weet dat alles naar behoren is geregeld. Hier woon je veilig en verantwoord, zonder je ergens zorgen over te hoeven maken De opzet van het gehele plan is om drie nieuwe woningen in te passen in het bestaande karakter van het woongebied. Het betreft een uitstekende plek om uw woning naar eigen wensen af te bouwen. De parkeergelegenheid is volledig op eigen grond en deze zijn bereikbaar vanaf de Flevoweg met toegangsweg. De toegangsweg naar het achterste perceel achter de woningen langs wordt mandelig geregeld. De aanleg en het onderhoud van dit gedeelte dient gezamenlijk door de woningeigenaren te geschieden. Het plan is omzoomd met fraai groen met de toegangsweg er heen. Hierdoor ontstaat het gevoel dat u op een buitenplaats woont met veel rust en groen in het landelijk natuurgebied. Alle specifieke regels omtrent de bouwregels zijn vastgelegd in het geldende bestemmingsplan. Kopers dienen de kavel in te richten conform het inrichtingsplan van de gemeente. Deze documenten zullen een bijlage vormen bij de koopovereenkomst. Omgeving: De woning is gelegen op een fraaie, centraal gelegen locatie in Ermelo op redelijke afstand van de Koninklijke Nederlandse Hippische Sportfederatie. Op korte afstand zijn de dorpscentrums van zowel Harderwijk, Ermelo, Garderen, Putten en Uddel bereikbaar met een diversiteit aan winkels, supermarkten en diverse scholen. De snelwegen zijn binnen No-Time bereikbaar. Geniet u liever van de prachtige Veluwse Bossen, de Ermelose Heide, Uddelermeer of kroondomeinen ? Ook deze mooie hoogwaardige natuurgebieden liggen zelfs op korte loopafstand tegenover deze locatie. Algemeen: De verkoopprijs is gebaseerd op levering van casco gebouwde woning en exclusief bijkomende kosten zoals, keuken, badkamer, elektra, verwarming, kosten beplantingsplan, verharding uitrit en nutsaansluitingskosten. - Koopsom: € 679.000,- K.K. - Kavelgrootte: 1.020 m². - Toegangsweg is mandelig terrein voor achter gelegen woning. - Volgens de bestemmingsplanvoorschriften mag de inhoud van één woonhuis maximaal 550 m³ bedragen, met een maximale goothoogte van 4 meter en een maximale bouwhoogte van 8 meter. - Vergunningsvrij kan er een groot bijgebouw worden gerealiseerd van ruim 100 m². - Kleinschalig beroep aan huis is mogelijk. - Het mandelig terrein en nutsvoorzieningen dienen door koper te worden aangelegd in overleg met de andere kopers i.v.m. besparing kosten. Kom bezichtigen en laat je verrassen Samengevat: De Beek 77-2 is de uitgelezen kans voor wie uniek, duurzaam en royaal wil wonen in een prachtige omgeving. Trek de laarzen maar aan, neem je verbeeldingskracht mee en ontdek hoe veelzijdig en verrassend deze plek kan zijn. Klaar om de volgende stap te zetten? Neem gerust contact met ons op. Wie weet loop jij straks over jouw eigen erf, terwijl het ochtendlicht met dansende herten schittert over Staverden in jou ( uit )zicht.
| Referentienummer | VGP2300185 |
| Vraagprijs | € 679.000,- k.k. |
| Inrichting | Niet gestoffeerd |
| Inrichting | Niet gemeubileerd |
| Status | Onder bod |
| Aanvaarding | In overleg |
| Laatste wijziging | Zaterdag 1 november 2025 |
| Type object | Woonhuis, eengezinswoning, twee onder een kap woning |
| Soort bouw | Nieuwbouw |
| Toegankelijkheid | Senioren |
| Bouwperiode | 2025 |
| Dakbedekking | Dakpannen |
| Type dak | Zadeldak |
| Keurmerken | Algemene woning keur |
| Isolatievormen | Dakisolatie Dubbel glas Muurisolatie Spouwmuren Vloerisolatie Volledig geïsoleerd |
| Perceeloppervlakte | 1.020 m² |
| Woonoppervlakte | 125 m² |
| Inhoud | 550 m³ |
| Oppervlakte externe bergruimte | 30 m² |
| Aantal bouwlagen | 2 |
| Aantal kamers | 5 (waarvan 4 slaapkamers) |
| Aantal badkamers | 1 (en 1 apart toilet) |
| Ligging | Aan bosrand Aan drukke weg Beschutte ligging Buiten bebouwde kom In bosrijke omgeving Nabij snelweg Open ligging Platteland Vrij uitzicht Zelfstandig |
| Type | Tuin rondom |
| Hoofdtuin | Ja |
| Oriëntering | Zuid-west |
| Staat | Dient nog te worden aangelegd. |
| Energielabel | A+ |
| Aantal parkeerplaatsen | 3 |
| Verwarmingssysteem | Warmtepomp |
| Parkeergelegenheid | Vrijstaande stenen garage |
| Tuin aanwezig | Ja |
| Heeft een garage | Ja |
| Kadastrale aanduiding | Ermelo C 1201 |
| Perceeloppervlakte | 1.020 m² |
| Omvang | Geheel perceel |
| Eigendomsituatie | Eigen grond |