Beschrijving
De in onze brochure vermelde gegevens zijn met nauwkeurigheid samengesteld. Desondanks kunnen er onjuistheden vermeld zijn. Hieraan kunnen geen rechten worden ontleend.
1. ALGEMEEN
Deze vrijstaande woonboerderij met veel authentieke kenmerken is gesticht tussen 1700 en
1800 als een klassieke kop hals romp. Met haar diverse bijgebouwen was het tot voor kort in
gebruik als melkveehouderij.
Het geheel is prachtig gesitueerd dicht bij de Waddenzee en biedt een unieke combinatie
van 2 werelden: enerzijds de rust en weidsheid van het Friese platteland en het Lauwersmeergebied recht achter de dijk en anderzijds Dokkum met haar karakteristieke uitstraling en voorzieningen.
Met een totale oppervlakte van 03.19.05 hectare, inclusief de ondergrond van de gebouwen, biedt dit object volop mogelijkheden voor uiteenlopende invullingen zoals paardenhouderij, horeca (aanduiding horeca 1 of horeca 2, maatschappelijk en agrarische dienstverlening. Het geheel bestaat daarnaast uit een perceel grasland van 00.54.05 hectare en een dijkperceel van 01.02.55 hectare.
Op het geheel rust een erfdienstbaarheid zijnde een recht van weg ten behoeve van de percelen Anjum, Sectie F nummers 739, 735 en 738.
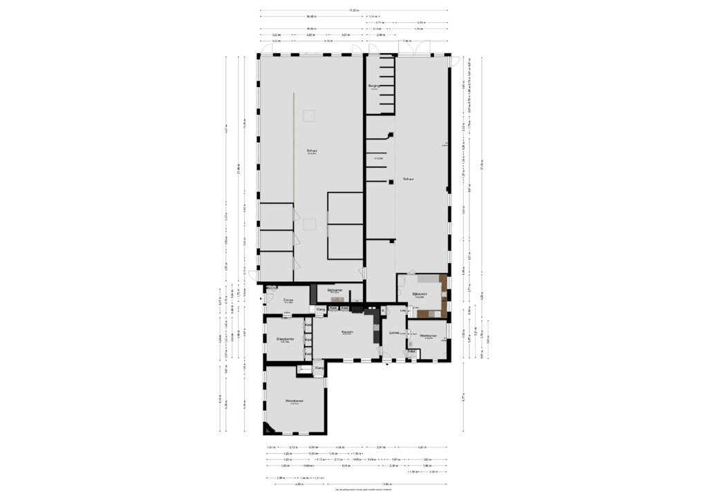
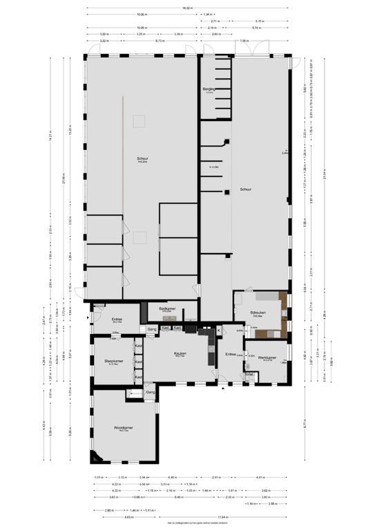
Indeling
Begane grond:
hal/entree, slaapkamer, een comfortabele badkamer (2023) met elektrische vloerverwarming, voorzien van een douche en 2 wastafels. De ruime keuken, gesitueerd in de romp ligt centraal in de woning. De keuken heeft een landelijke stijl en is voorzien van een AGA cooker. De keuken is sfeervol ingericht met een balken plafond en een houten vloer (op beton), een bijkeuken, toilet (2013), een woonkamer met een parketvloer, een pelletkachel (2018) geplaatst voor een prachtige authentieke schouw.
Eerste verdieping
Overloop met 3 slaapkamers.
Bijzonderheden
Achterhuis (Romp)
Dit deel van de woonboerderij is het oudste voormalige bedrijfsgedeelte van het object en is opgetrokken met houten gebinten de houten kapconstructie is gedekt met riet onderschoten asbestvrije golfplaten en is grotendeels voorzien van betonnen vloeren biedt nu plaats aan vijf paardenboxen en stalling voor jongvee waarnaast er nog veel inpandige ruimte over is.
Ligboxenstal: De stal is van het bouwjaar 1973 en is op dit moment in gebruik als opslag en stalling van machines. De stal is opgetrokken uit stalen spanten met gemetselde muren en asbest houdende golfplaten. De zijkanten zijn voorzien van windbreekgaas. Er was ruimte voor 120 stuks melkvee. Onder de roostervloer is 400 m³ mestopslag. De stal was voorzien van een 2 keer 12 stands zij-aan-zij melkstal en een melktank van 12.500 kilo. Tevens waren er in deze stal een tweetal strohokken aanwezig.
Aanvullende informatie:
Op het geheel rust een agrarische bestemming. Dit is van invloed op de overdrachtsbelasting. Als de koper ervoor kiest de ligboxenstal en overige bedrijfsgebouwen te slopen in het kader van de “ruimte voor ruimte regeling” kan er 1 nieuwe bouwkavel worden gecreëerd.
Er is glasvezel aanwezig.
De aanwezige mestsilo heeft een inhoud van 2000 m³. Er zijn enkele investeringen nodig om deze goedgekeurd te krijgen.
Overdracht
Vraagprijs €1.000.000 k.k.
Aanvaarding In overleg
Bouw
Soort woonhuis Woonboerderij, vrijstaande woning
Soort bouw Bestaande bouw
Bouwjaar Tussen 1700 & 1800
Soort dak (woning) Deels pannen en deels met riet onderschoten asbestvrije betonplaten
Soort dak (ligboxenstal) Asbestbeton platen
Oppervlakte en Inhoud
Woonoppervlakte 190.9 m²
Externe Bergruimte carport
Overige inpandige ruimte 4655 m³
Perceeloppervlakte 04.10.45 hectare
Inhoud woning 741 m³
Indeling
Aantal kamers 7 (waarvan 4 slaapkamers)
Aantal badkamers 1
Badkamervoorzieningen Vloerverwarming, ruime douchehoek en een badkamermeubel met 2 wastafels
Aantal woonlagen 2 woonlagen
Voorzieningen 16 zonnepanelen, 2024 ( Jinko 430 wp full black)
Energie
Definitief energielabel
Isolatie ` Houten binnenklamp voorzien van isolatie en met uitzondering van 3 ramen is de gehele woning voorzien van dubbele beglazing
Verwarming Diverse gevelkachels en een pellet kachel
Warm water Geiser
Hoofdgebouw
Garage
Soort garage carport
Capaciteit twee auto’s
2. EIGENDOM
Kadastrale gegevens:
Gemeente Sectie Nummer Grootte
Anjum F 1118 01.62.45
Anjum F 1027 01.02.55
Anjum F 1056 00.54.05
totaal 03.19.05
Plattegronden
184237987_308_os_skn_begane_grond_bg_20260414_8cdfd6.jpg
184237987_308_os_skn_begane_grond_bg_20260414_46239c.jpg
184237987_308_os_skn_eerste_verdiepi_ev_20260414_71a317.jpg
184237987_308_os_skn_eerste_verdiepi_ev_20260414_90dec2.jpg
184237987_308_os_skn_schuur_sch_20260414_53a2f7.jpg
184237987_308_os_skn_schuur_sch_20260414_a875fa.jpg