Beschrijving

Ben jij op zoek naar een heerlijk huis met vrij uitzicht voor jezelf en je gezin, of misschien wel je eerste eigen plek? Dan is Papenakker 15 in Alphen absoluut het bekijken waard! Deze verrassend ruime en goed onderhouden tussenwoning in een rustige straat biedt alles wat je nodig hebt om thuis te komen en direct te genieten.  De woning beschikt over een ruime berging met overkapping /carport en een heerlijke zonnige tuin op het westen. Dankzij de gunstige ligging zijn het dorpscentrum en de prachtige natuurgebieden op loop- of fietsafstand te bereiken. 

Alphen staat bekend als een fijne, groene en vooral veilige woonomgeving. In de wijk vind je volop speelgelegenheden en voorzieningen liggen op loopafstand. De groene bosrijke omgeving rondom Alphen kenmerkt zich door de vele recreatiemogelijkheden en diverse prachtige fiets- en wandelroutes.

Indeling

Entree via een ruime hal voorzien van een meterkast, een trapkast, een vaste trap naar de eerste verdieping en een deels betegelde toiletruimte voorzien van zwevend toilet en fonteintje. Vanuit de hal zijn de keuken en de woonkamer te bereiken. 

Zodra je binnenstapt, valt het meteen op hoe licht en ruim de woonkamer aanvoelt. De woonkamer biedt een gezellige plek waar je je na een drukke dag lekker kunt ontspannen. Dankzij de praktische indeling is er genoeg ruimte voor een comfortabele zithoek én een grote eettafel waar je samen met familie en vrienden kunt tafelen, spelletjes spelen of gewoon lekker lang natafelen. Vanuit de woonkamer heb je aan de voorzijde zicht op een groen plantsoen en aan de achterzijde zicht op de tuin.

De open keuken is in 2019 volledig vernieuwd en voorzien van een keukenblok met inductiekookplaat, afzuigkap, vaatwasser (juli 2025), oven, koelkast en vriezer. Het lichte werkblad in combinatie met de zwarte deurgrepen en apparatuur zorgt voor een stijlvolle uitstraling.

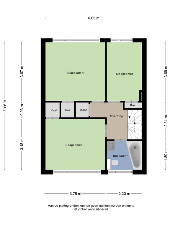
Eerste verdieping

Middels een vaste trap te bereiken overloop waaraan drie slaapkamers, een vaste kast, badkamer en een vaste trap naar de tweede verdieping.  

Alle slaapkamers beschikken over vaste kasten en grote raampartijen. 

De volledig betegelde badkamer is in 2019 vernieuwd en voorzien van een ligbad met ruim douchegedeelte, een  wastafelmeubel met spiegelkast en een zwevend toilet. Door de praktische indeling en het grote raam is dit echt een pareltje om heerlijk te ontspannen.

Tweede verdieping

De voorzolder is te bereiken via een vaste trap en voorzien van een praktische bergruimte, een dakraam en een aansluitpunt voor de wasmachine en droger. Hier bevindt zich ook een opstelling van de cv-combiketel (Intergas HReco 36 uit 2022, welke geleased wordt voor een bedrag van € 33,33 per maand).

Aansluitend bevindt zich de vierde ruime slaapkamer voorzien van 2 dakvensters, waardoor de ruimte baadt in het daglicht.

Tuin

Met een perceel van maar liefst 146 m² en een achtertuin van ca. 83 m² is er meer dan genoeg plek om buiten flinke plannen te maken. Denk aan lange zomeravonden met vrienden, kinderen die vrijuit kunnen spelen of lekker tuinieren in de zon—hier kan het allemaal. Ook de voortuin zorgt voor een prettige eerste indruk en door het plantsoen voor de deur heb je een heerlijk vrij uitzicht . 

Aan de achtergevel hangt een elektrisch bedienbaar zonnescherm, waarmee je op warme dagen voor de nodige schaduw zorgt.  

Achter in de tuin staat een berging ideaal voor fietsen, tuingereedschap of opslag. Hier bevindt zich ook de omvormer voor de 8 zonnepanelen (2021).  Aan de berging grenst een overkapping/carport, een fijne plek om beschut buiten te zitten of om een zwembad te plaatsen.

Bijzonderheden

- De woning is voorzien van 8 zonnepanelen; 
- Energielabel C (opgemaakt voor het plaatsen van de zonnepanelen)
- CV-ketel wordt op dit moment geleased € 33,33 per maand, echter is eventueel af te kopen. 
- Woning is voorzien van een domoticasysteem.
- De woning is in 2019 grondig gemoderniseerd.
- Gelegen op een rustige locatie, tegenover een plantsoen met vrij uitzicht; 
- Voor de afmetingen van de diverse ruimtes verwijzen wij u naar de plattegronden.

Papenakker 15 is een woning die je gezien móét hebben. Benieuwd geworden naar de mogelijkheden? Kom snel langs en laat je verrassen door de ruimte, de lichtinval en het heerlijke gevoel van thuiskomen. Wonen in Alphen, dat betekent gemak, comfort en bovenal heel veel woonplezier. Zien we je snel?

Opmerkingen
• In de koopakte zal, als zekerheid voor de nakoming van de verplichtingen van koper, een bankgarantie van 10% van de koopsom opgenomen worden; 
In de koopovereenkomst zullen de volgende artikelen worden opgenomen:
• Asbestclausule: in het object kunnen gezien het bouwjaar asbesthoudende stoffen aanwezig zijn. Bij eventuele verwijdering dienen op grond van de milieuwetgeving speciale voorzorgmaatregelen getroffen te worden. Koper verklaart hiermee bekend te zijn en vrijwaart verkoper voor eventuele aansprakelijkheid. 
• Ouderdomsclausule: het is aan koper bekend dat de onroerende zaak meer dan 52 jaar oud is, wat betekent dat de eisen die bij aan de bouwkwaliteit gesteld mogen worden aanzienlijk lager liggen dan bij nieuwe woningen. In afwijking van artikel 6.3 van deze koopakte en artikel 7:17 lid 1 en 2 BW komt het geheel of ten dele ontbreken van een of meer eigenschappen van de onroerende zaak voor normaal en bijzonder gebruik en het eventueel anderszins niet-beantwoorden van de zaak aan de overeenkomst voor rekening en risico van koper. 
•Toelichtingsclausule NEN2580: De woning is opgemeten met inachtneming van de meetinstructie welke is gebaseerd op de NEN 2580. De Meetinstructie is bedoeld om een meer eenduidige manier van meten toe te passen voor het geven van een indicatie van de gebruiksoppervlakte. Maatvoeringen t.a.v. plattegronden inhouds- en oppervlaktematen zijn bij benadering vastgesteld in een meetrapport. De meetinstructie sluit verschillen in de meetuitkomsten niet volledig uit door bijvoorbeeld interpretatieverschillen, afrondingen of beperkingen bij het uitvoeren van de meting. Uitgangspunt blijft altijd: "wat u ziet is wat u koopt" en de objectinformatie is van lagere prioriteit. Koper is in gelegenheid gesteld om deze maten op of na te meten en vrijwaart verkoper en diens makelaar van elke aansprakelijkheid wanneer hier toch afwijkingen in zouden voorkomen.
• Deze informatie is door ons met de nodige zorgvuldigheid samengesteld. Onzerzijds wordt echter geen enkele aansprakelijkheid aanvaard voor enige onvolledigheid, onjuistheid of anderszins, dan wel de gevolgen daarvan. Alle opgegeven maten en oppervlakten zijn indicatief.

Kenmerken