Te koop: Het Landgoed Schokland, 11.150 m2, ligt midden in ‘UNESCO‑werelderfgoed Schokland’, op 10 autominuten van de A6 en 5 minuten van Ens. Monumentale polderarchitectuur in combinatie met dagbesteding.
Oud Emmeloorderweg 24, 8319 AE Schokland
€ 1.595.000,- k.k.
| Type object | Maatschappelijk vastgoed, Zorginstelling |
|---|---|
| Aanvaarding | In overleg |
| Totale VVO | 11.150 m² |
|---|
Beschrijving
LANDGOED SCHOKLAND
wonen, zorgen & ondernemen op één plek
www.hofvanschokland.nl
OUD EMMELOORDERWEG 24, 8319 AE SCHOKLAND (NOORDOOSTPOLDER), OP EEN KAVEL VAN 11.150 m2.
Vraagprijs €1.595.000 k.k.
KIJKMOMENT
Op zaterdag 13 september a.s. van 10:00 UUR - 15:00 UUR.
Het Landgoed omvat:
• Woonhuis met 5 slaapkamers en een ruime tuin,
• Paardenstallen en paddock,
• Horeca en ontvangstruimte,
• Creatieve werkplaatsen en vergaderruimtes.
Het Landgoed Schokland ligt midden in ‘UNESCO‑werelderfgoed Schokland’, slechts 10 minuten van de A6 en 5 minuten van Ens. Het 11.150 m2 tellende erf combineert monumentale polderarchitectuur met een splinternieuwe (2022) dagbestedingslocatie inclusief horecavoorziening alsmede nieuwe paardenstallen. De rustige, groene omgeving, goede bereikbaarheid en royale parkeerruimte maken het object bijzonder geschikt voor zorg- en welzijnsorganisaties die beschutte dagbesteding willen bieden met horeca beleving voor bezoekers.
VOOR WIE DEZE UNIEKE PLEK WILT VOORTZETTEN
• Zorgondernemer met uitbreidingsplannen of behoefte aan een nieuwe locatie,
• Dagbestedingsbedrijf dat wil doorgroeien of integreren met dieren, horeca of creatief werk,
• Gezin dat wil wonen in rust, met ruimte voor dieren, moestuin of creatieve projecten,
• Ondernemer met plannen voor een kinderboerderij, camperplaats of camping,
• Catering- of horeca professionals die een buitenlocatie zoeken voor een unieke eetbeleving,
• Coach, therapeut of retreat-host die werken met mens & dier wil combineren,
• Creatieve ondernemer met ambities voor workshops, educatie of exposities,
• Combinatieprojecten: wonen én werken, zorg én recreatie, natuur én beleving,
• De bestaande dagbestedingsfaciliteit heeft een vaste cliëntenbasis. Voor zorgorganisaties is dit een unieke kans om een lopend concept direct voort te zetten en verder uit te bouwen.
DAGBESTEDINGSLOCATIE
Het betreft een ideaal object voor dagbesteding, leerwerktrajecten of een community-driven lunchplek. Het in 2022 op palen gefundeerde zorggebouw (beganegrond ± 495 m² + kantoorverdieping) is volledig rolstoeltoegankelijk en voorzien van:
• Warmtepomp + vloerverwarming in alle ruimten,
• Restaurant (70 couverts) met aparte voorraadruimte,
• Kantine/atelier (85 m²) met industriële was‑/spoelzone,
• Werkplaats (65 m²) met krachtstroom,
• Genderneutrale toiletten + aparte zorgtoilet ruimte,
• Glasvezel, noodverlichting en brandmeldcentrale (EI60),
• Mogelijkheid tot uitbreiden kantooroppervlak op vide,
• Nieuwe septic tank (wordt nog geplaatst).
Bonusideeën:
De kas op het terrein kan gebruikt worden voor seizoensgroenten, direct te serveren in het restaurant als "farm-to-table fine dining". Eieren, geitenmelk of zelfgemaakte kaas van eigen dieren maken het verhaal compleet.
Het terrein biedt voldoende ruimte om extra kassen, een proeftuin of een stretchtent te plaatsen voor events, diners, of markten.
PAARDEN- ANNEX KLEINVEESTAL MET OPSLAG
Op het bestaande fundament van een voormalige jongveestal is in 2024 een volledig nieuwe en functionele bovenbouw gerealiseerd. Deze moderne stal wordt momenteel gebruikt als paardenstalling, huisvesting voor kleinvee en opslagruimte voor hooi en stro.
• Oppervlakte: circa 230 m² (±13,40 m x ±17,17 m),
• Volledig onderkelderd – ideaal voor opslag of uitbreiding,
• Gevels: betonpanelen met damwandprofielplaten,
• Dak: geïsoleerd sandwichpanelen dak,
• Constructie: stalen spanten, houten gordingen,
• Goothoogte: ± 2,64 m, nokhoogte: ± 4,74 m.
Deze ruimte leent zich uitstekend voor:
• Paardentherapie voor kinderen, ouderen en mensen met een beperking,
• Rustgevende retreats & coaching met paarden,
• Educatieve zorgprogramma's met dieren,
• De omliggende paddocks, stallen en buitenruimte zijn ideaal voor beweging, verbinding en zingeving.
Bonusideeën:
• Persoonlijke & trouwreportages,
• Denk aan bruiloften in de boomgaard, familieshoots bij zonsondergang of zwangerschapsfotografie met paarden op de achtergrond,
• B2B samenwerkingen & merkshoots,
• Een rustige, natuurlijke setting voor bedrijven die authentieke fotoshoots zoeken voor branding, campagnes of productlanceringen.
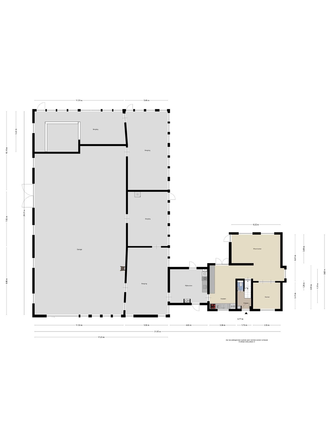
WERKTUIGENBERGING ANNEX GARAGE
Deze functionele werktuigenberging annex garage is oorspronkelijk gebouwd rond 1955 en heeft een open front-indeling. De ruimte is later gerenoveerd en is uitermate geschikt als opslag, werkruimte of praktische uitbreiding van het bestaande erf gebruik.
Dankzij de solide bouw en open karakter is deze ruimte ideaal voor gebruik als werkplaats, schuur, fietsenstalling, ambachtelijke ruimte of opslag voor machines en materialen.
Kenmerken:
• Oppervlakte: circa 120 m²,
• Gevels: halfsteens gemetseld,
• Dak: houten spanten & gordingen, met pannen gedekt,
• Indeling: open front, flexibel in te richten.
Bonusideeën:
• DIY-workshops (houtbewerking, technologie, knutselen),
• Werktherapie voor mensen met een beperking, waarbij het werken met hun handen rust en zelfvertrouwen geeft.
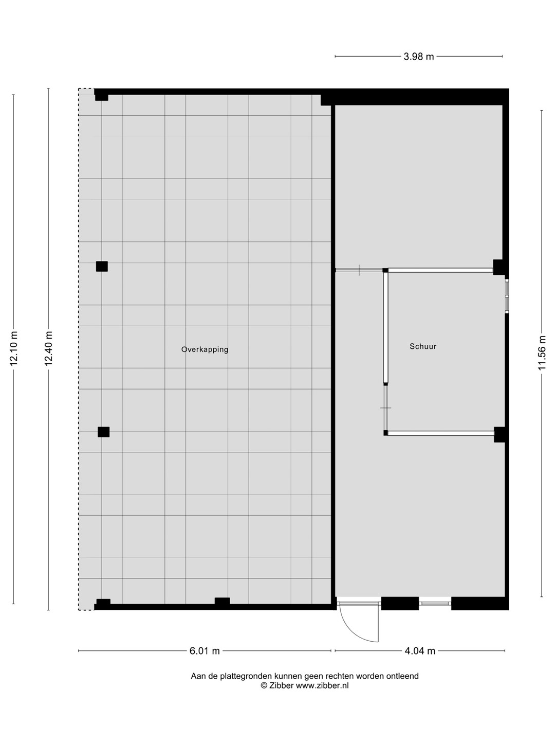
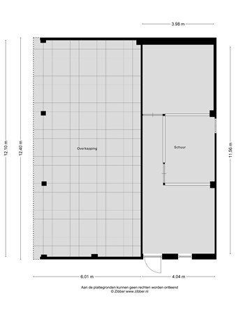
SCHOKBETONSCHUUR
Deze imposante en streek typische schokbetonschuur is gebouwd in 1955 en ademt historie en ambacht. Met een oppervlakte van circa 464 m² (±17,5 x ±26,5 meter) biedt dit gebouw een indrukwekkende ruimte met authentieke uitstraling. Oorspronkelijk in gebruik als aardappelopslag, bergruimte en werkplaats, nu deels gebruikt als opslag- en paardenstalling. Een zeldzaam gebouw met karakter, schaal en veelzijdigheid — multi-functioneel en stand-by voor al uw ideeën.
Constructie en afwerking:
• Originele schokbeton gevels,
• Houten topgevels, afgewerkt met ABC-golfplaten,
• Gelijmde houten boogspanten met vrije overspanning,
• Houten gordingen & tegelvloer,
Dakbedekking van riet met pannen.
BEDRIJFSWONING
De woning op Landgoed Schokland is een traditioneel gebouwde halfvrijstaande bedrijfswoning met een woonoppervlakte van circa 179 m² (BAG) en een inhoud van circa 710 m³. De woning is verbonden aan de naastgelegen schuur via een praktische tussenbouw.
Oorspronkelijk gebouwd in 1955, werd de woning in 2004 uitgebreid met een dwarskap en is sindsdien goed onderhouden en comfortabel gemoderniseerd.
Constructie en isolatie:
• Betonnen begane grondvloer met kruipruimte,
• Geïsoleerde gemetselde zijgevels,
• Geïsoleerd pannendak,
• Hardhouten kozijnen (begane grond) en kunststof kozijnen (verdieping),
• Volledig voorzien van HR++ glas.
Indeling begane grond:
• Entree met toilet, meterkast en trapopgang,
• L-vormige woonkamer met laminaatvloer en tuindeur,
• Woonkeuken met pvc-vloer, rechte keukenopstelling, combimagnetron, koelkast, afzuigkap en vaatwasser,
• Extra keukenblok (nu in gebruik als bergruimte),
• Tuindeuren naar buiten,
• Kelder met water- en gasmeter,
• Kantoorruimte met houtkachel en laminaatvloer,
• Bijkeuken met betontegels, extra keukenblok, Cv-combiketel en eigen meterkast voor het bedrijfsgedeelte.
Verdieping & zolder:
• 5 ruime slaapkamers,
• Geheel betegelde badkamer met ligbad, toilet, badmeubel en vloerverwarming,
• Geheel beloopbare zolder, bereikbaar via vaste houten trap – naar eigen wens in te delen.
Voorzieningen
• Aangesloten op gas, water, elektriciteit, IBA,
• Beschikt over glasvezel, telefoonverbinding en krachtstroom,
• Energielabel E, geldig tot 23 november 2033.
EXTRA VOORZIENINGEN OP HET ERF
Naast de hoofdgebouwen beschikt Landgoed Schokland over diverse praktische en ondersteunende faciliteiten die het terrein geschikt maken voor intensief en multifunctioneel gebruik:
• Erfverharding: circa 1.500 m² – klinkers & gestort beton,
• Parkeerterrein: circa 500 m² – betonklinkers,
• Vaste mestopslag: circa 85 m² – beton met gemetselde zijwanden,
• Tunnelkas: circa 100 m² – kunststof/polyester,
• Paddock – geschikt voor paarden of andere dieren.
CONTACT & INFORMATIE
Voor inlichtingen en het maken van een afspraak voor een kijkdag kunt u contact opnemen met:
LTM Vastgoed Meulenberg – de heer M. Meulenberg RT, +31655210005, Rmeulenberg@outlook.com of met de heer G. Wessels, +31683573603.
UITNODIGING
De informatie is te bezien als een uitnodiging tot overleg c.q. tot het doen van een financieel voorstel. Een aan- en verkoop komt niet eerder tot stand dan nadat niet alleen over de hoofdzaken (prijs, object) maar ook over details (zoals oplevering, roerende zaken enz.) overeenstemming is bereikt.
OVERNAME HUIDIGE EXPLOITATIE
Overname huidige exploitatie “Aventurijn Zorgboerderij” bespreekbaar. De verkoper staat open voor zowel voortzetting door koper als gedeeltelijke voortzetting door de huidige ondernemer. Details in overleg.
BROCHURE
De brochure is zo zorgvuldig mogelijk samengesteld en de gegevens zijn zo nauwkeurig en zorgvuldig mogelijk weergegeven. Benadrukt wordt dat de vermelde afmetingen zijn afgerond. Het kan zijn dat tijdens de bouw daarvan is afgeweken. Dat is niet gecontroleerd. Worden onjuistheden geconstateerd, dan kunnen daaraan geen rechten of aanspraken worden ontleend.
wonen, zorgen & ondernemen op één plek
www.hofvanschokland.nl
OUD EMMELOORDERWEG 24, 8319 AE SCHOKLAND (NOORDOOSTPOLDER), OP EEN KAVEL VAN 11.150 m2.
Vraagprijs €1.595.000 k.k.
KIJKMOMENT
Op zaterdag 13 september a.s. van 10:00 UUR - 15:00 UUR.
Het Landgoed omvat:
• Woonhuis met 5 slaapkamers en een ruime tuin,
• Paardenstallen en paddock,
• Horeca en ontvangstruimte,
• Creatieve werkplaatsen en vergaderruimtes.
Het Landgoed Schokland ligt midden in ‘UNESCO‑werelderfgoed Schokland’, slechts 10 minuten van de A6 en 5 minuten van Ens. Het 11.150 m2 tellende erf combineert monumentale polderarchitectuur met een splinternieuwe (2022) dagbestedingslocatie inclusief horecavoorziening alsmede nieuwe paardenstallen. De rustige, groene omgeving, goede bereikbaarheid en royale parkeerruimte maken het object bijzonder geschikt voor zorg- en welzijnsorganisaties die beschutte dagbesteding willen bieden met horeca beleving voor bezoekers.
VOOR WIE DEZE UNIEKE PLEK WILT VOORTZETTEN
• Zorgondernemer met uitbreidingsplannen of behoefte aan een nieuwe locatie,
• Dagbestedingsbedrijf dat wil doorgroeien of integreren met dieren, horeca of creatief werk,
• Gezin dat wil wonen in rust, met ruimte voor dieren, moestuin of creatieve projecten,
• Ondernemer met plannen voor een kinderboerderij, camperplaats of camping,
• Catering- of horeca professionals die een buitenlocatie zoeken voor een unieke eetbeleving,
• Coach, therapeut of retreat-host die werken met mens & dier wil combineren,
• Creatieve ondernemer met ambities voor workshops, educatie of exposities,
• Combinatieprojecten: wonen én werken, zorg én recreatie, natuur én beleving,
• De bestaande dagbestedingsfaciliteit heeft een vaste cliëntenbasis. Voor zorgorganisaties is dit een unieke kans om een lopend concept direct voort te zetten en verder uit te bouwen.
DAGBESTEDINGSLOCATIE
Het betreft een ideaal object voor dagbesteding, leerwerktrajecten of een community-driven lunchplek. Het in 2022 op palen gefundeerde zorggebouw (beganegrond ± 495 m² + kantoorverdieping) is volledig rolstoeltoegankelijk en voorzien van:
• Warmtepomp + vloerverwarming in alle ruimten,
• Restaurant (70 couverts) met aparte voorraadruimte,
• Kantine/atelier (85 m²) met industriële was‑/spoelzone,
• Werkplaats (65 m²) met krachtstroom,
• Genderneutrale toiletten + aparte zorgtoilet ruimte,
• Glasvezel, noodverlichting en brandmeldcentrale (EI60),
• Mogelijkheid tot uitbreiden kantooroppervlak op vide,
• Nieuwe septic tank (wordt nog geplaatst).
Bonusideeën:
De kas op het terrein kan gebruikt worden voor seizoensgroenten, direct te serveren in het restaurant als "farm-to-table fine dining". Eieren, geitenmelk of zelfgemaakte kaas van eigen dieren maken het verhaal compleet.
Het terrein biedt voldoende ruimte om extra kassen, een proeftuin of een stretchtent te plaatsen voor events, diners, of markten.
PAARDEN- ANNEX KLEINVEESTAL MET OPSLAG
Op het bestaande fundament van een voormalige jongveestal is in 2024 een volledig nieuwe en functionele bovenbouw gerealiseerd. Deze moderne stal wordt momenteel gebruikt als paardenstalling, huisvesting voor kleinvee en opslagruimte voor hooi en stro.
• Oppervlakte: circa 230 m² (±13,40 m x ±17,17 m),
• Volledig onderkelderd – ideaal voor opslag of uitbreiding,
• Gevels: betonpanelen met damwandprofielplaten,
• Dak: geïsoleerd sandwichpanelen dak,
• Constructie: stalen spanten, houten gordingen,
• Goothoogte: ± 2,64 m, nokhoogte: ± 4,74 m.
Deze ruimte leent zich uitstekend voor:
• Paardentherapie voor kinderen, ouderen en mensen met een beperking,
• Rustgevende retreats & coaching met paarden,
• Educatieve zorgprogramma's met dieren,
• De omliggende paddocks, stallen en buitenruimte zijn ideaal voor beweging, verbinding en zingeving.
Bonusideeën:
• Persoonlijke & trouwreportages,
• Denk aan bruiloften in de boomgaard, familieshoots bij zonsondergang of zwangerschapsfotografie met paarden op de achtergrond,
• B2B samenwerkingen & merkshoots,
• Een rustige, natuurlijke setting voor bedrijven die authentieke fotoshoots zoeken voor branding, campagnes of productlanceringen.
WERKTUIGENBERGING ANNEX GARAGE
Deze functionele werktuigenberging annex garage is oorspronkelijk gebouwd rond 1955 en heeft een open front-indeling. De ruimte is later gerenoveerd en is uitermate geschikt als opslag, werkruimte of praktische uitbreiding van het bestaande erf gebruik.
Dankzij de solide bouw en open karakter is deze ruimte ideaal voor gebruik als werkplaats, schuur, fietsenstalling, ambachtelijke ruimte of opslag voor machines en materialen.
Kenmerken:
• Oppervlakte: circa 120 m²,
• Gevels: halfsteens gemetseld,
• Dak: houten spanten & gordingen, met pannen gedekt,
• Indeling: open front, flexibel in te richten.
Bonusideeën:
• DIY-workshops (houtbewerking, technologie, knutselen),
• Werktherapie voor mensen met een beperking, waarbij het werken met hun handen rust en zelfvertrouwen geeft.
SCHOKBETONSCHUUR
Deze imposante en streek typische schokbetonschuur is gebouwd in 1955 en ademt historie en ambacht. Met een oppervlakte van circa 464 m² (±17,5 x ±26,5 meter) biedt dit gebouw een indrukwekkende ruimte met authentieke uitstraling. Oorspronkelijk in gebruik als aardappelopslag, bergruimte en werkplaats, nu deels gebruikt als opslag- en paardenstalling. Een zeldzaam gebouw met karakter, schaal en veelzijdigheid — multi-functioneel en stand-by voor al uw ideeën.
Constructie en afwerking:
• Originele schokbeton gevels,
• Houten topgevels, afgewerkt met ABC-golfplaten,
• Gelijmde houten boogspanten met vrije overspanning,
• Houten gordingen & tegelvloer,
Dakbedekking van riet met pannen.
BEDRIJFSWONING
De woning op Landgoed Schokland is een traditioneel gebouwde halfvrijstaande bedrijfswoning met een woonoppervlakte van circa 179 m² (BAG) en een inhoud van circa 710 m³. De woning is verbonden aan de naastgelegen schuur via een praktische tussenbouw.
Oorspronkelijk gebouwd in 1955, werd de woning in 2004 uitgebreid met een dwarskap en is sindsdien goed onderhouden en comfortabel gemoderniseerd.
Constructie en isolatie:
• Betonnen begane grondvloer met kruipruimte,
• Geïsoleerde gemetselde zijgevels,
• Geïsoleerd pannendak,
• Hardhouten kozijnen (begane grond) en kunststof kozijnen (verdieping),
• Volledig voorzien van HR++ glas.
Indeling begane grond:
• Entree met toilet, meterkast en trapopgang,
• L-vormige woonkamer met laminaatvloer en tuindeur,
• Woonkeuken met pvc-vloer, rechte keukenopstelling, combimagnetron, koelkast, afzuigkap en vaatwasser,
• Extra keukenblok (nu in gebruik als bergruimte),
• Tuindeuren naar buiten,
• Kelder met water- en gasmeter,
• Kantoorruimte met houtkachel en laminaatvloer,
• Bijkeuken met betontegels, extra keukenblok, Cv-combiketel en eigen meterkast voor het bedrijfsgedeelte.
Verdieping & zolder:
• 5 ruime slaapkamers,
• Geheel betegelde badkamer met ligbad, toilet, badmeubel en vloerverwarming,
• Geheel beloopbare zolder, bereikbaar via vaste houten trap – naar eigen wens in te delen.
Voorzieningen
• Aangesloten op gas, water, elektriciteit, IBA,
• Beschikt over glasvezel, telefoonverbinding en krachtstroom,
• Energielabel E, geldig tot 23 november 2033.
EXTRA VOORZIENINGEN OP HET ERF
Naast de hoofdgebouwen beschikt Landgoed Schokland over diverse praktische en ondersteunende faciliteiten die het terrein geschikt maken voor intensief en multifunctioneel gebruik:
• Erfverharding: circa 1.500 m² – klinkers & gestort beton,
• Parkeerterrein: circa 500 m² – betonklinkers,
• Vaste mestopslag: circa 85 m² – beton met gemetselde zijwanden,
• Tunnelkas: circa 100 m² – kunststof/polyester,
• Paddock – geschikt voor paarden of andere dieren.
CONTACT & INFORMATIE
Voor inlichtingen en het maken van een afspraak voor een kijkdag kunt u contact opnemen met:
LTM Vastgoed Meulenberg – de heer M. Meulenberg RT, +31655210005, Rmeulenberg@outlook.com of met de heer G. Wessels, +31683573603.
UITNODIGING
De informatie is te bezien als een uitnodiging tot overleg c.q. tot het doen van een financieel voorstel. Een aan- en verkoop komt niet eerder tot stand dan nadat niet alleen over de hoofdzaken (prijs, object) maar ook over details (zoals oplevering, roerende zaken enz.) overeenstemming is bereikt.
OVERNAME HUIDIGE EXPLOITATIE
Overname huidige exploitatie “Aventurijn Zorgboerderij” bespreekbaar. De verkoper staat open voor zowel voortzetting door koper als gedeeltelijke voortzetting door de huidige ondernemer. Details in overleg.
BROCHURE
De brochure is zo zorgvuldig mogelijk samengesteld en de gegevens zijn zo nauwkeurig en zorgvuldig mogelijk weergegeven. Benadrukt wordt dat de vermelde afmetingen zijn afgerond. Het kan zijn dat tijdens de bouw daarvan is afgeweken. Dat is niet gecontroleerd. Worden onjuistheden geconstateerd, dan kunnen daaraan geen rechten of aanspraken worden ontleend.
Kenmerken
| Overdracht | |
|---|---|
| Referentienummer | 00199 |
| Vraagprijs | € 1.595.000,- k.k. |
| Inrichting | Optioneel |
| Aanvaarding | In overleg |
| Laatste wijziging | Zondag 14 september 2025 |
| Bouw | |
|---|---|
| Type object | Maatschappelijk vastgoed, Zorginstelling |
| Soort bouw | Bestaande bouw |
| Oppervlaktes en inhoud | |
|---|---|
| VVO | 11.150 m² |
| Locatie | |
|---|---|
| Ligging | Aan rustige weg Afgelegen Beschutte ligging Buiten bebouwde kom In bosrijke omgeving Nabij snelweg Platteland Vrij uitzicht Zelfstandig |
| Lokale voorzieningen | Bank op 2000 meter tot 3000 meter Geldautomaat op 2000 meter tot 3000 meter Recreatie op 500 meter tot 1000 meter Restaurant binnen 500 meter Winkel op 2000 meter tot 3000 meter Supermarkt op 2000 meter tot 3000 meter |
| Bereikbaarheid | Bushalte op 2000 meter tot 3000 meter Busknooppunt op 2000 meter tot 3000 meter Treinstation op 5000 meter of meer Trein voorhalte op 5000 meter of meer Afrit van de snelweg op 1500 meter tot 2000 meter |
| Energieverbruik | |
|---|---|
| Energielabel | E |
| Uitrusting | |
|---|---|
| Aantal parkeerplaatsen | 40 |
| Kadastrale gegevens | |
|---|---|
| Kadastrale aanduiding | Noordoostpolder c 2506 |
| Perceeloppervlakte | 11.150 m² |
| Eigendomsituatie | Eigendom belast met beperkte rechten |
| Kadastrale aanduiding | Noordoostpolder |
| Perceeloppervlakte | 11.150 m² |
| Omvang | Geheel perceel |
| Eigendomsituatie | Eigendom belast met beperkte rechten |