Beschrijving

Perceel cultuurgrond in Glastuinbouwontwikkelingsgebied!

Wij bieden u een mooi vlak gelegen perceel cultuurgrond aan, gelegen aan de Bloemendaalseweg in Meijel. Het perceel is gelegen in het glastuinbouwontwikkelingsgebied, wat de mogelijkheid biedt om een zelfstandig glastuinbouwbedrijf te ontwikkelen. Het perceel is goed toegankelijk middels de verharde wegen de Bloemendaalseweg en de Vissersweg. Het perceel is geschikt voor de teelt van diverse soorten akkerbouw- en tuinbouwgewassen of voor de boomteelt.

Het perceel is gelegen in een glastuinbouwontwikkelingsgebied, concentratiegebied glastuinbouw 1, Buitengebied Peel en Maas.

In het perceel zijn in het verleden onderzoeken verricht omtrent archeologie en bodem, dit voor een mogelijke ontwikkeling van een nieuwvestiging van een bedrijf. De uitslagen hiervan zijn via ons kantoor beschikbaar.

Een mooie kans voor de agrariër of belegger om dit perceel in eigendom te verwerven en te ontwikkelen. Als u interesse heeft als belegger bieden wij de mogelijkheid om het perceel aan een agrariër te verpachten en dit geheel van verpachten voor u te verzorgen.

Kadastrale situatie
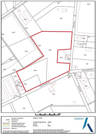
Gemeente Meijel, sectie D, nummer 1981, 2044 en 2302, tezamen groot ca. 03.13.00 ha

Bodem en gebruik
De grondsoort betreft zandgrond. Het perceel is de laatste jaren in gebruik geweest voor de teelt van maïs.

Bijzonderheden
- Op het perceel is een geregistreerde beregeningsput gelegen (PEM622)
- Er is een archeologisch rapport en een verkennend bodemonderzoek beschikbaar via ons kantoor.
- Het jachtrecht is verhuurd.
- Op een gedeelte van het perceel Meijel, sectie D, nummer 2302 rust in het Kadaster een opstalrecht nutsvoorzieningen ten behoeve van Enexis Netbeheer B.V. Echter dit is foutief geregistreerd en wordt doorgehaald in het Kadaster.

Bestemmingsplan
Het perceel is gelegen in het bestemmingsplan ‘Buitengebied Peel en Maas’, vastgesteld per 24-11-2009 en deels in '1e reparatieherziening bestemmingsplan buitengebied Peel en Maas', vastgesteld per 29-03-2017.

Het perceel heeft de bestemmingsvlakken:
‘Agrarisch’
‘Waarde – Archeologie 5'’
Gebiedsaanduidingen:
‘reconstructiewetzone - verwevingsgebied’ 'milieuzone - grondwaterbeschermingsgebied roerdalslenk zone 3'
'other: concentratiegebied glastuinbouw 1' 
'wro zone - wijzigingsgebied 4 go'

Aanvaarding
In overleg.

Vraagprijs
Op aanvraag.

Voor meer informatie kunt u contact opnemen met
Nard Driessen (makelaar)
t: 06 4859 2874

Arvalis kantoor Roermond
0475 355700
www.arvalismakelaars.nl

Kenmerken